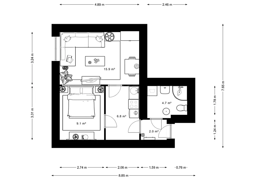
Pronájem bytu 2+kk, Praha - Strašnice, Za strašnickou vozovnou, 40 m2

Za Strašnickou vozovnou, Praha, Strašnice

17 000 Kč /za měsíc Získejte výhodnou HYPOTÉKU

(+ poplatky za služby a el. energii dle vlastní spotřeby v celkové výši cca 5.000 Kč)

Doporučené firmy v Praze 10

Stěhovací služby

Výkup a prodej starého nábytku

Informace k bytu

Ve výhradním zastoupení vlastníka nemovitosti vám nabízím k dlouhodobému pronájmu ateliér o dispozici 2+kk, který prošel kompletní rekonstrukcí. Plovoucí podlahy, velkoformátová dlažba, koupelna se sprchovým koutem, ústřední etážové topení, nové LED osvětlení, izolace, rozvody elektro a veškeré instalace, plastová okna atd. Přesto, že se jednotka nachází ve sníženém přízemí, je zde dostatek denního světla a je uzpůsobena k bydlení. Praktická dispozice - dvě samostatné (neprůchozí) místnosti, kuchyňský kout, koupelna se sprchovým koutem a WC. Ateliér se nachází v udržovaném funkcionalistickém činžovním domě na rozhraní Strašnic a Vinohrad, jen 2 min. od Vinohradské ul. a zastávky tramvaje a 5 min. od metra Strašnická. V případě, že hledáte prostory pro vlastní bydlení nebo podnikání, je pro vás tato nabídka ideální volbou. Jednotka je ideální pro 2 osoby a bude k nastěhování na konci února. Vratná jistota (kauce) 20.000 Kč, odměna RK měsíční nájemné + DPH. Neváhejte mě kontaktovat pro více informací či domluvení osobní prohlídky. Pro urychlení komunikace mi současně s vaší poptávkou zašlete i více informací o vás - počet osob, jaká je vaše profese, od kdy a na jak dlouho hledáte nájem, zda máte domácí mazlíčky apod. Děkuji vám za pochopení.

Parametry bytu

Cena
17 000 Kč /za měsíc
Poznámka k ceně
+ poplatky za služby a el. energii dle vlastní spotřeby v celkové výši cca 5.000 Kč
Aktualizováno
6. 2. 2026
Adresa
Za Strašnickou vozovnou, Praha, Strašnice
ID
N139988
Stavba
Cihlová
Stav objektu
Po rekonstrukci
Vybaveno
Částečně
Lokalita objektu
Klidná část obce
Vlastnictví
Osobní
Užitná plocha
40 m2
Podlahová plocha
40 m2
Třída energetické náročnosti
G - Mimořádně nehospodárná
Elektřina
230V
Topení
Ústřední elektrické
Telekomunikace
Telefon, Internet, Kabelová televize
Doprava
Silnice, MHD
Voda
Vodovod
Výtah

Kontaktovat makléře

Máte zájem o tento byt?

Tímto, v souladu s nařízením Evropského parlamentu a Rady (EU) 2016/679, v platném znění, prohlašuji, že mi je alespoň 16 let a uděluji tak svůj souhlas se zpracováním zadaných údajů (jméno, telefon, e-mail, ip adresa) společnosti B3 Technology, s.r.o., IČ: 07330600, se sídlem Novostavby 126/23, 435 11 Lom (správce dat), za účelem předání dotazu z tohoto formuláře Vámi vybranému inzerentovi a zpětného kontaktování mé osoby. Osobní údaje bude správce zpracovávat manuálně i automaticky přímo prostřednictvím svých zaměstnanců. Informace předané tímto formulářem budou uloženy v databázi správce maximálně po dobu 10 let. Odvolání souhlasu s uložením a zpracováním poskytnutých dat lze e-mailem na info@bydlisnami.cz. V případě podezření na neoprávněné použití Vámi poskytnutých údajů máte právo předat podnět k šetření Úřadu pro ochranu osobních údajů. Více informací
Chystáte se prodat nemovitost?
Pomůžeme Vám!

Inzerát si prohlédlo 1 lidí

Prodejce

Jan Kašpar

Jan Kašpar

Hlídací pes

Chcete dostávat emailem podobné nabídky pronájmu bytů 2+kk v Praze 10?

Podobné nemovitosti