Prodej rodinného domu, Chlum, 362 m2

Chlum, Drchlava

4 750 000 Kč /za nemovitost HYPOTÉKA od 21 230 Kč /za měsíc

(Současné měsíční náklady 3680,- Kč. Cena včetně provize RK a kompletního právního servisu.)

Doporučené firmy v Chlumu

Rekonstrukce

Úklidové služby

Informace k domu

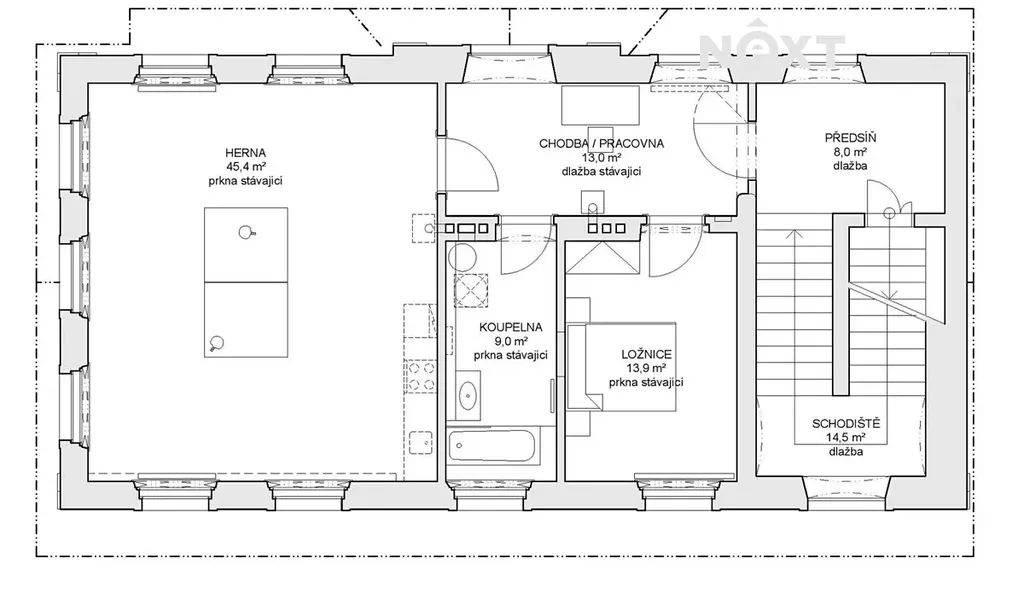
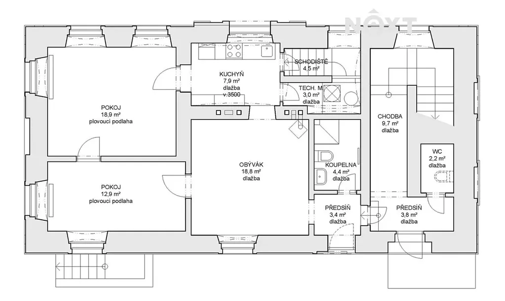
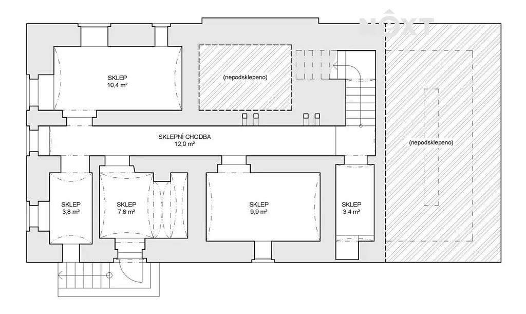
Prodej jedinečné nemovitosti se zahradou na hranici Máchova kraje a Kokořínska v klidné obci Drchlava. Budova staré školy z roku 1903 má svého ducha. Nyní je ve stavu po citlivé rekonstrukci interiéru a instalací, realizované architektem. V přízemí domu se nachází byt s dispozicí 3+1, v prvním patře pak po instalaci kuchyňské linky vznikne plnohodnotná jednotka 2+kk s pracovnou. Své kouzlo mají restaurované původní prvky v propojení s moderním funkčním designem, výhodou jsou samostatné vstupy do obou bytů – zejména při případném pronájmu jak pro turisty, tak k trvalému bydlení. Vytápění v obou jednotkách je řešeno krbovými kamny s výměníkem, napojenými na okruh ústředního topení, přitápět lze však i elektřinou. Vodu ohřívají bojlery. Nemovitost je skoro celá podsklepena. Posledním podlažím je půda. Na půdu je přivedena elektřina, voda a odpad. Pozornost vyžaduje jeden z trámů. Střešní krytinu tvoří bobrovky. Opravou krytiny bylo zabráněno zatékání, výhledově je ovšem třeba počítat s její kompletní rekonstrukcí. Ze sítí je k dispozici elektřina a veřejný vodovod, odpady jsou svedeny do jímky. Bezproblémový přístup z obecní asfaltové komunikace. Veškerá občanská vybavenost se nachází v nedaleké Dubé. Jednoznačná pozitiva – klidné prostředí malebné obce s krásnou okolní přírodou a dobrou dostupností do Prahy autem i hromadnou dopravou. Další informace v RK. Třída energetické náročnosti – G. Využijte možnost moderního financování až na 30 let bez ohledu na věk a prokazování příjmů, či nutnosti předkládat daňové přiznání (u podnikatelů). Zeptejte se u nás a bydlete chytře. Pro komunikaci uvádějte evidenční číslo zakázky N116160.

Parametry domu

Cena
4 750 000 Kč /za nemovitost Spočítat hypotéku
Poznámka k ceně
Současné měsíční náklady 3680,- Kč. Cena včetně provize RK a kompletního právního servisu.
Náklady na bydlení
3680
Aktualizováno
7. 2. 2026
Adresa
Chlum, Drchlava
ID
N116160
Stavba
Smíšená
Stav objektu
V rekonstrukci
Vybaveno
Částečně
Druh objektu
Samostatný
Lokalita objektu
Klidná část obce
Užitná plocha
362 m2
Zastavěná plocha
150 m2
Plocha pozemku
769 m2
Třída energetické náročnosti
G - Mimořádně nehospodárná
Elektřina
230V, 400V
Odpad
Jímka
Topení
Lokální tuhá paliva, Lokální elektrické
Komunikace
Asfaltová
Doprava
Silnice, Autobus
Voda
Vodovod
Topné těleso
Radiátory, Přímotop
Zdroj topení
Přímotop, Krbová kamna
Zdroj teplé vody
Bojler - elektro
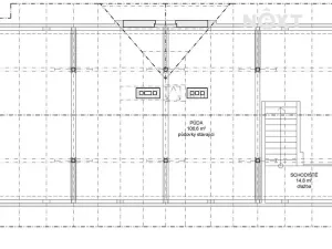
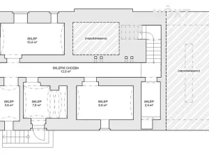
Sklep
Bezbarierový přístup

Kontaktovat makléře

Máte zájem o tento dům?

Tímto, v souladu s nařízením Evropského parlamentu a Rady (EU) 2016/679, v platném znění, prohlašuji, že mi je alespoň 16 let a uděluji tak svůj souhlas se zpracováním zadaných údajů (jméno, telefon, e-mail, ip adresa) společnosti B3 Technology, s.r.o., IČ: 07330600, se sídlem Novostavby 126/23, 435 11 Lom (správce dat), za účelem předání dotazu z tohoto formuláře Vámi vybranému inzerentovi a zpětného kontaktování mé osoby. Osobní údaje bude správce zpracovávat manuálně i automaticky přímo prostřednictvím svých zaměstnanců. Informace předané tímto formulářem budou uloženy v databázi správce maximálně po dobu 10 let. Odvolání souhlasu s uložením a zpracováním poskytnutých dat lze e-mailem na info@bydlisnami.cz. V případě podezření na neoprávněné použití Vámi poskytnutých údajů máte právo předat podnět k šetření Úřadu pro ochranu osobních údajů. Více informací
Chystáte se prodat nemovitost?
Pomůžeme Vám!

Inzerát si prohlédlo 5 lidí

Prodejce

Jan Čermák

Jan Čermák

Hlídací pes

Chcete dostávat emailem podobné nabídky prodeje rodinných domů v Chlumu (okr. Česká Lípa)?

Podobné nemovitosti