Pronájem bytu 1+kk, Želešice, 24. dubna, 36 m2

24. dubna, Želešice

16 000 Kč /za měsíc Získejte výhodnou HYPOTÉKU

(Elektřinu na sebe nájemce přepíše po podpisu smlouvy.)

Doporučené firmy v Želešicích

Informace k bytu

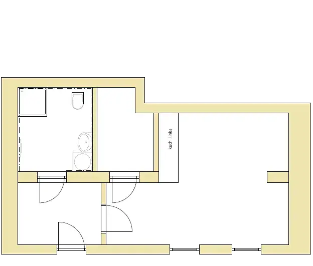
Nabízím k pronájmu moderní studio 1+kk o velikosti 36 m² v novostavbě bytového domu v obci Želešice. Jednotka je prakticky dispozičně řešená a je vhodná pro jednotlivce nebo pár.

Studio se pronajímá zařízené. V koupelně pračka, na chodbě botník i s věšákem. V obytné kuchyni rozkládací sedačka na každodenní spaní až po Smart TV na stěně.

Dostatek úložného prostoru zajišťuje šatna s komodami a věšákem. Součástí je moderní kuchyňská linka vybavená kombinovanou lednicí, mikrovlnnou troubou, el. troubou, digestoří a indukční varnou deskou. Koupelna má velký sprchový kout.

Velkou výhodou bydlení je možnost vlastního parkovací stání na zakladači ve dvoře. Součástí společných prostor je také uzamykatelná místnost, vhodná např. pro umístění kola či kočárku. Případně je uložení věcí možné také ve společném sklepě.

Novostavba se nachází v lokalitě s výbornou dostupností do Brna a dobrou občanskou vybaveností.

Bližší informace Vám velice ráda sdělím na kontaktech níže. Těším se na spolupráci.

Parametry bytu

Cena
16 000 Kč /za měsíc
Poznámka k ceně
Elektřinu na sebe nájemce přepíše po podpisu smlouvy.
Náklady na bydlení
2.300,-Kč, možnost parkování 2.000,-Kč/měsíčně
Aktualizováno
20. 2. 2026
Adresa
24. dubna, Želešice
ID
Zel0126
Stavba
Cihlová
Stav objektu
Novostavba
Patro
1. z 2
Vybaveno
Ano
Vlastnictví
Osobní
Užitná plocha
36 m2
Třída energetické náročnosti
C - Úsporná
Doprava
Silnice, Autobus
Topné těleso
Radiátory
Výtah
Bezbarierový přístup
Parkování

Kontaktovat makléře

Máte zájem o tento byt?

Tímto, v souladu s nařízením Evropského parlamentu a Rady (EU) 2016/679, v platném znění, prohlašuji, že mi je alespoň 16 let a uděluji tak svůj souhlas se zpracováním zadaných údajů (jméno, telefon, e-mail, ip adresa) společnosti B3 Technology, s.r.o., IČ: 07330600, se sídlem Novostavby 126/23, 435 11 Lom (správce dat), za účelem předání dotazu z tohoto formuláře Vámi vybranému inzerentovi a zpětného kontaktování mé osoby. Osobní údaje bude správce zpracovávat manuálně i automaticky přímo prostřednictvím svých zaměstnanců. Informace předané tímto formulářem budou uloženy v databázi správce maximálně po dobu 10 let. Odvolání souhlasu s uložením a zpracováním poskytnutých dat lze e-mailem na info@bydlisnami.cz. V případě podezření na neoprávněné použití Vámi poskytnutých údajů máte právo předat podnět k šetření Úřadu pro ochranu osobních údajů. Více informací
Chystáte se prodat nemovitost?
Pomůžeme Vám!

Inzerát si prohlédlo 9 lidí

Prodejce

Anna Čeketová

Anna Čeketová

Hlídací pes

Chcete dostávat emailem podobné nabídky pronájmu bytů 1+kk v Želešicích?

Podobné nemovitosti