Pronájem bytu 1+kk, Praha - Liboc, Jenečská, 27 m2 (ID: 2544867)

Jenečská, Praha, Liboc

17 900 Kč /za měsíc Získejte výhodnou HYPOTÉKU

(2850 poplatky za služby, včetně DPH, + provize RK, včetně právního servisu)

Doporučené firmy v Praze 6

Stěhovací služby

Výkup a prodej starého nábytku

Informace k bytu

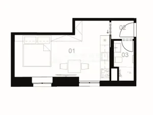
Nabízíme k pronájmu moderní a útulný byt 1+kk o podlahové ploše 28 m², který se nachází ve 2. nadzemním podlaží s orientací na západ. Mezi hlavní přednosti bytu patří prosvětlenost a příjemný výhled. Byt se nachází v klidné části Prahy s výbornou dostupností na MHD, případně i na dálnici. Hledáme zodpovědného nájemníka (nekuřák, bez exekucí).

K nastěhování ihned.

Vytápění je zajištěno radiátory ve všech obytných místnostech i koupelně. Byt bude dokončen s kvalitními vinylovými podlahami, elegantní koupelnou s keramickým obkladem a moderními interiérovými dveřmi. Byt disponuje kuchyňskou linkou s vestavěnými spotřebiči (varná deska, myčka nádobí, pračka, lednička s mrazákem), osvětlení a garnýže.

V okolí bytu je skvělá občanská vybavenost, školy, obchody a restaurace činí z Liboce atraktivní místo pro bydlení rodin i jednotlivců hledajících klidné prostředí blízko přírody. Pouhé 100m od bytu je nádherná přírodní rezervace Divoká Šárka.

1. Nájem 17.900,-Kč + 2.850,-Kč zálohy za služby (elektřina se převádí na nájemce)
2. Kauce 30.000,-Kč
3. Pojištění bytu 200,-Kč
4. Provize 10.000,-Kč včetně DPH včetně právního servisu

Těšíme se na osobní setkání s Vámi!

Parametry bytu

Cena
17 900 Kč /za měsíc
Poznámka k ceně
2850 poplatky za služby, včetně DPH, + provize RK, včetně právního servisu
Aktualizováno
10. 2. 2026
Adresa
Jenečská, Praha, Liboc
ID
RDS22
Stavba
Cihlová
Stav objektu
Po rekonstrukci
Patro
2. z 3
Vybaveno
Ne
Lokalita objektu
Klidná část obce
Vlastnictví
Osobní
Užitná plocha
27 m2
Podlahová plocha
27 m2
Třída energetické náročnosti
F - Velmi nehospodárná
Ukazatel energetické náročnosti
238 kWh/m2 za rok
Komunikace
Asfaltová
Doprava
Dálnice, Silnice, MHD, Autobus
Sklep
Výtah

Kontaktovat makléře

Máte zájem o tento byt?

Tímto, v souladu s nařízením Evropského parlamentu a Rady (EU) 2016/679, v platném znění, prohlašuji, že mi je alespoň 16 let a uděluji tak svůj souhlas se zpracováním zadaných údajů (jméno, telefon, e-mail, ip adresa) společnosti B3 Technology, s.r.o., IČ: 07330600, se sídlem Novostavby 126/23, 435 11 Lom (správce dat), za účelem předání dotazu z tohoto formuláře Vámi vybranému inzerentovi a zpětného kontaktování mé osoby. Osobní údaje bude správce zpracovávat manuálně i automaticky přímo prostřednictvím svých zaměstnanců. Informace předané tímto formulářem budou uloženy v databázi správce maximálně po dobu 10 let. Odvolání souhlasu s uložením a zpracováním poskytnutých dat lze e-mailem na info@bydlisnami.cz. V případě podezření na neoprávněné použití Vámi poskytnutých údajů máte právo předat podnět k šetření Úřadu pro ochranu osobních údajů. Více informací
Chystáte se prodat nemovitost?
Pomůžeme Vám!

Inzerát si prohlédlo 1 lidí

Prodejce

Roman Flaška

Roman Flaška

Hlídací pes

Chcete dostávat emailem podobné nabídky pronájmu bytů 1+kk v Praze 6?

Podobné nemovitosti