Pronájem bytu 1+kk, Chrudim, Podkopanický mlýn, 30 m2

Podkopanický mlýn, Chrudim II

12 000 Kč /za měsíc Získejte výhodnou HYPOTÉKU

(+ energie a služby (3.000,-Kč))

Doporučené firmy v Chrudimi

Informace k bytu

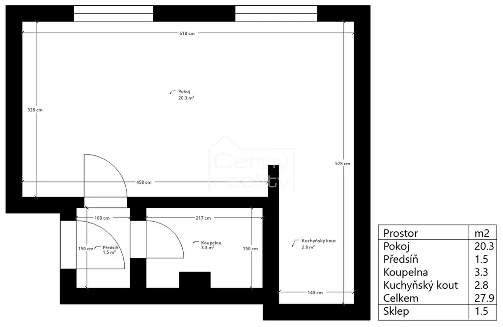
Pronájem bytu 1+kk (30,3m2) v rezidenci Podkopanický mlýn v Chrudimi. Byt se nachází ve 3.podlaží. Na adrese Podkopanický mlýn 1135, Chrudim. By se nachází v novostavbě z roku 2019, v pěkném místě, kousek od centra Města. Přístup do bytu je bezbariérový. V přízemí objektu jsou krytá parkovací stání. Byt má následující dispozici : předsíň, koupelna s vanou a toaletou, obývací pokoj s dvěma velkými francouzskými dřevěnými eurookny, v šedé barvě. Kuchyňský kout s vybavenou kuchyňskou linkou. V přízemí je k bytu sklep o ploše 1,5 m2. V domě je společná kolárna. Prohlídky jsou možné po dohodě s makléřem. ID 113526.

Parametry bytu

Cena
12 000 Kč /za měsíc
Poznámka k ceně
+ energie a služby (3.000,-Kč)
Náklady na bydlení
3000
Aktualizováno
11. 2. 2026
Adresa
Podkopanický mlýn, Chrudim II
ID
717
Stavba
Cihlová
Stav objektu
Velmi dobrý
Patro
3. z 7
Vybaveno
Ano
Lokalita objektu
Klidná část obce
Vlastnictví
Osobní
Užitná plocha
30 m2
Podlahová plocha
30 m2
Třída energetické náročnosti
B - Velmi úsporná
Ukazatel energetické náročnosti
79 kWh/m2 za rok
Elektřina
230V
Odpad
Veřejná kanalizace
Topení
Ústřední dálkové
Telekomunikace
Internet
Doprava
Vlak, Dálnice, MHD, Autobus
Voda
Vodovod
Sklep
Výtah
Bezbarierový přístup
Parkování

Kontaktovat makléře

Máte zájem o tento byt?

Tímto, v souladu s nařízením Evropského parlamentu a Rady (EU) 2016/679, v platném znění, prohlašuji, že mi je alespoň 16 let a uděluji tak svůj souhlas se zpracováním zadaných údajů (jméno, telefon, e-mail, ip adresa) společnosti B3 Technology, s.r.o., IČ: 07330600, se sídlem Novostavby 126/23, 435 11 Lom (správce dat), za účelem předání dotazu z tohoto formuláře Vámi vybranému inzerentovi a zpětného kontaktování mé osoby. Osobní údaje bude správce zpracovávat manuálně i automaticky přímo prostřednictvím svých zaměstnanců. Informace předané tímto formulářem budou uloženy v databázi správce maximálně po dobu 10 let. Odvolání souhlasu s uložením a zpracováním poskytnutých dat lze e-mailem na info@bydlisnami.cz. V případě podezření na neoprávněné použití Vámi poskytnutých údajů máte právo předat podnět k šetření Úřadu pro ochranu osobních údajů. Více informací
Chystáte se prodat nemovitost?
Pomůžeme Vám!

Inzerát si prohlédlo 31 lidí

Prodejce

Bc. Josef Černý

Bc. Josef Černý

Hlídací pes

Chcete dostávat emailem podobné nabídky pronájmu bytů 1+kk v Chrudimi?

Podobné nemovitosti