Pronájem skladu, Lelekovice, Hlavní, 540 m2

Hlavní, Lelekovice

120 000 Kč /za měsíc Získejte výhodnou HYPOTÉKU

(servisní náklady, energie a služby, bez DPH, včetně provize, včetně právního servisu)

Doporučené firmy v Lelekovicích

Informace k nemovitosti

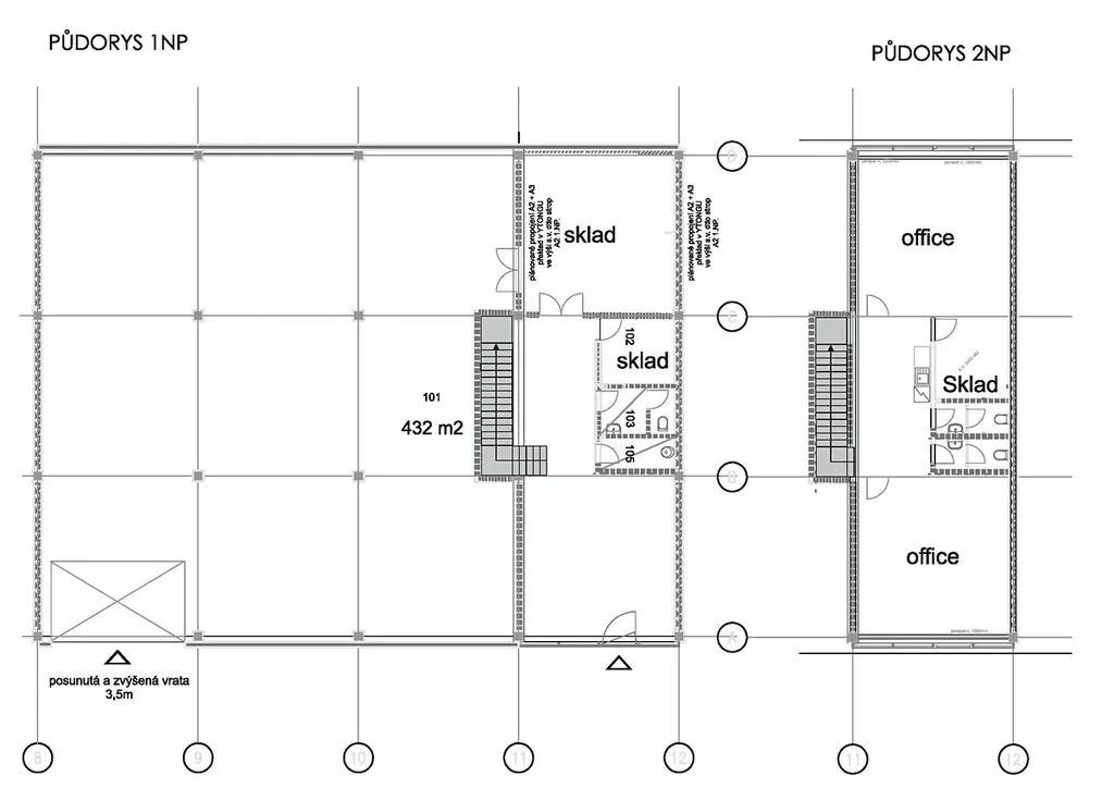
Nabízíme prostornou polyfunkční halu 540 m² v A1 Parku ideální pro showroom, kanceláře, sklad či výrobu.

Klíčové vlastnosti:
• Celková výměra: 540 m²
• Výška stropu: 7,5 m
• Nosnost podlahy skladu: 5t/m²
• Sekční vrata pro snadnou manipulaci
• Klimatizace a topení v administrativní části 216 m²
• LED osvětlení a plynové topidlo ve skladové části 324 m²
• Osm parkovací místa před jednotkou v ceně nájmu

K nájmu se připočítávají fixní servisní náklady do 6.000,- Kč/měsíc.

Prostor nabízí moderní vybavení a flexibilní uspořádání. V přízemí se nachází sklad s kancelářemi, technická místnost a showroom. V patře pak kanceláře se zázemím.

Perfektní volba pro podnikatele hledající komfortní a všestranné zázemí pro své podnikání. Výborná lokalita v A1 Parku s dobrou dostupností.

Pro více informací nebo prohlídku nás neváhejte kontaktovat.

Parametry nemovitosti

Cena
120 000 Kč /za měsíc
Poznámka k ceně
servisní náklady, energie a služby, bez DPH, včetně provize, včetně právního servisu
Aktualizováno
12. 2. 2026
Adresa
Hlavní, Lelekovice
ID
20321
Stavba
Skeletová
Stav objektu
Novostavba
Patro
1. z 2
Užitná plocha
540 m2
Třída energetické náročnosti
G - Mimořádně nehospodárná
Elektřina
230V, 400V
Komunikace
Dlážděná, Asfaltová
Telekomunikace
Internet, Kabelová televize, Kabelové rozvody
Doprava
Vlak, Dálnice, Autobus
Voda
Místní zdroj vody
Bezbarierový přístup
Parkování

Kontaktovat makléře

Máte zájem o tuto nemovistost?

Tímto, v souladu s nařízením Evropského parlamentu a Rady (EU) 2016/679, v platném znění, prohlašuji, že mi je alespoň 16 let a uděluji tak svůj souhlas se zpracováním zadaných údajů (jméno, telefon, e-mail, ip adresa) společnosti B3 Technology, s.r.o., IČ: 07330600, se sídlem Novostavby 126/23, 435 11 Lom (správce dat), za účelem předání dotazu z tohoto formuláře Vámi vybranému inzerentovi a zpětného kontaktování mé osoby. Osobní údaje bude správce zpracovávat manuálně i automaticky přímo prostřednictvím svých zaměstnanců. Informace předané tímto formulářem budou uloženy v databázi správce maximálně po dobu 10 let. Odvolání souhlasu s uložením a zpracováním poskytnutých dat lze e-mailem na info@bydlisnami.cz. V případě podezření na neoprávněné použití Vámi poskytnutých údajů máte právo předat podnět k šetření Úřadu pro ochranu osobních údajů. Více informací
Chystáte se prodat nemovitost?
Pomůžeme Vám!

Inzerát si prohlédlo 4 lidí

Prodejce

Bc. Milan Zmrzlý, MRE

Bc. Milan Zmrzlý, MRE

Hlídací pes

Chcete dostávat emailem podobné nabídky pronájmu skladů v Lelekovicích?

Podobné nemovitosti