Pronájem bytu 2+kk, Horšovský Týn - Malé Předměstí, Jana Littrowa, 40 m2

Jana Littrowa, Horšovský Týn, Malé Předměstí

7 400 Kč /za měsíc Získejte výhodnou HYPOTÉKU

(+ energie, provize RK)

Doporučené firmy v Horšovském Týně

Podlahy

Stěhovací služby

Informace k bytu

Hledáte pronájem bytu v Horšovském Týně? Naše společnost Vám nabízí pronájem bytu 2+kk v Horšovském Týně.
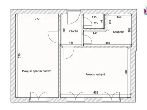
Byt o celkové výměře 40 m² se nachází ve druhém nadzemním podlaží cihlového domu.
V bytě se nachází předsíň, pokoj s kuchyňským koutem, samostatný pokoj, koupelna s vanou a samostatné WC.
Vytápění el.kotlem.
Majitel preferuje slušného a solventního nájemníka.
El. energie se přepíše na nájemce.
Vratná kauce dva nájmy.
Volné ihned.
Doporučuji prohlídku.

Parametry bytu

Cena
7 400 Kč /za měsíc
Poznámka k ceně
+ energie, provize RK
Náklady na bydlení
1200/1 osoba, 2000/2 osoby
Aktualizováno
12. 2. 2026
Adresa
Jana Littrowa, Horšovský Týn, Malé Předměstí
ID
5766
Stavba
Cihlová
Stav objektu
Dobrý
Patro
2. z 2
Lokalita objektu
Centrum obce
Vlastnictví
Osobní
Užitná plocha
40 m2
Podlahová plocha
40 m2
Třída energetické náročnosti
G - Mimořádně nehospodárná
Elektřina
230V
Odpad
Veřejná kanalizace
Voda
Vodovod

Kontaktovat makléře

Realitní kancelář

Logo Mixreality

Mixreality

Přemyslova 111/3, Plzeň

Chystáte se prodat nemovitost?
Pomůžeme Vám!

Máte zájem o tento byt?

Tímto, v souladu s nařízením Evropského parlamentu a Rady (EU) 2016/679, v platném znění, prohlašuji, že mi je alespoň 16 let a uděluji tak svůj souhlas se zpracováním zadaných údajů (jméno, telefon, e-mail, ip adresa) společnosti B3 Technology, s.r.o., IČ: 07330600, se sídlem Novostavby 126/23, 435 11 Lom (správce dat), za účelem předání dotazu z tohoto formuláře Vámi vybranému inzerentovi a zpětného kontaktování mé osoby. Osobní údaje bude správce zpracovávat manuálně i automaticky přímo prostřednictvím svých zaměstnanců. Informace předané tímto formulářem budou uloženy v databázi správce maximálně po dobu 10 let. Odvolání souhlasu s uložením a zpracováním poskytnutých dat lze e-mailem na info@bydlisnami.cz. V případě podezření na neoprávněné použití Vámi poskytnutých údajů máte právo předat podnět k šetření Úřadu pro ochranu osobních údajů. Více informací
Chystáte se prodat nemovitost?
Pomůžeme Vám!

Inzerát si prohlédlo 0 lidí

Prodejce

Lukáš Straka

Lukáš Straka

Hlídací pes

Chcete dostávat emailem podobné nabídky pronájmu bytů 2+kk v Horšovském Týně?

Podobné nemovitosti