Pronájem bytu 2+kk, Chrastava, 58 m2

Chrastava, Andělská Hora

12 100 Kč /za měsíc Získejte výhodnou HYPOTÉKU

(+ poplatky 3.900,-Kč ( 2 osoby ) + kauce + provize)

Doporučené firmy v Chrastavě

Rekonstrukce

Úklidové služby

Informace k bytu

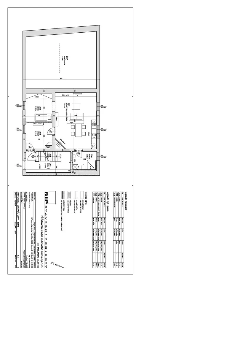
Nabízíme k pronájmu byt 2+kk o výměře 58,1 v rodinném domě v malebné vesničce Andělská Hora u Chrastavy.
Jedná se o bytovou jednotku v 1. patře a o obytné ploše 58,1m2. Po vstupu ze společné chodby se vchází do světlé a prostorné předsíně ( 9,2m2 ). V předsíni je velké okno a šatní skříň. Z předsíně se vstupuje do velké obytné místnosti ( 32,6m2 ) kde je kuchyň s jídelnou a obývací pokoj. V rohu je příprava na krbová kamna, lze tedy po dohodě topit dřevem. V kuchyni je kuchyňská linka, jídelní stůl se židlemi, lednice s mrazákem. Vedle kuchyně je vstup do koupelny, kde je sprchový kout, umyvadlo, WC, topný žebřík a místo na pračku i sušičku. Součástí vybavení je i koupelnový nábytek. I zde je okno a díky tomu je koupelna světlá. Na druhé straně obytné místnosti je vstup do menší ložnice. Obývací prostor s kuchyní má 2 okna.
Před domem je možnost posezení na zahradě a parkování .
Dům je po kompletní rekonstrukci, má dobrou izolaci a díky tomu jsou nízké náklady na topení. Dům je přímo v centru obce, dobrá dostupnost na rychlostní komunikace Liberec x Děčín. Občanská vybavenost v nedaleké Chrastavě. Nedaleko je zastávka autobusu i vlaku. Kolem obce je krásná krajina, cyklostezka, nedaleko malebná obec Kryštofovo údolí. V dosahu hory. Výhodou je klid , ale do centra města Liberec je to 15 minut autem.
Topení i ohřev vody je plynovým kombinovaným kotlem
Cena nájmu je 12.100,- Kč + poplatky ( 1500,-Kč plyn, 1500,-Kč elektřina a 900,-Kč voda – 2 osoby ) Byt má své měření a je k dispozici od 15.3.2026.
Vratná kauce ve výši 25.000,- Kč. Při podpisu smlouvy nájemné + služby na 1.měsíc nájmu, vratná kauce a dále provize realitní kanceláři je 13.000,- Kč. Byt je vhodný pro 2 osoby, pár, bez zvířat a nekuřáky.

Parametry bytu

Cena
12 100 Kč /za měsíc
Poznámka k ceně
+ poplatky 3.900,-Kč ( 2 osoby ) + kauce + provize
Aktualizováno
12. 2. 2026
Adresa
Chrastava, Andělská Hora
ID
777
Stavba
Cihlová
Stav objektu
Velmi dobrý
Patro
2.
Lokalita objektu
Klidná část obce
Vlastnictví
Osobní
Užitná plocha
58 m2
Podlahová plocha
58 m2
Třída energetické náročnosti
G - Mimořádně nehospodárná
Elektřina
230V
Plyn
Plynovod
Odpad
Veřejná kanalizace
Topení
Ústřední plynové
Doprava
Vlak, Silnice, MHD, Autobus
Voda
Vodovod
Topné těleso
Radiátory
Zdroj topení
Plynový kotel
Zdroj teplé vody
Plynový kotel
Výtah
Bezbarierový přístup
Parkování

Kontaktovat makléře

Realitní kancelář

PrimaReal

Rumjancevova 696/3, Liberec

Chystáte se prodat nemovitost?
Pomůžeme Vám!

Máte zájem o tento byt?

Tímto, v souladu s nařízením Evropského parlamentu a Rady (EU) 2016/679, v platném znění, prohlašuji, že mi je alespoň 16 let a uděluji tak svůj souhlas se zpracováním zadaných údajů (jméno, telefon, e-mail, ip adresa) společnosti B3 Technology, s.r.o., IČ: 07330600, se sídlem Novostavby 126/23, 435 11 Lom (správce dat), za účelem předání dotazu z tohoto formuláře Vámi vybranému inzerentovi a zpětného kontaktování mé osoby. Osobní údaje bude správce zpracovávat manuálně i automaticky přímo prostřednictvím svých zaměstnanců. Informace předané tímto formulářem budou uloženy v databázi správce maximálně po dobu 10 let. Odvolání souhlasu s uložením a zpracováním poskytnutých dat lze e-mailem na info@bydlisnami.cz. V případě podezření na neoprávněné použití Vámi poskytnutých údajů máte právo předat podnět k šetření Úřadu pro ochranu osobních údajů. Více informací
Chystáte se prodat nemovitost?
Pomůžeme Vám!

Inzerát si prohlédlo 4 lidí

Prodejce

Vanda Hrubešová

Vanda Hrubešová

Hlídací pes

Chcete dostávat emailem podobné nabídky pronájmu bytů 2+kk v Chrastavě?

Podobné nemovitosti