Pronájem bytu 2+kk, Praha - Holešovice, Komunardů, 60 m2

Komunardů, Praha, Holešovice

50 000 Kč /za měsíc Získejte výhodnou HYPOTÉKU
Doporučené firmy v Praze 7

Stěhovací služby

Výkup a prodej starého nábytku

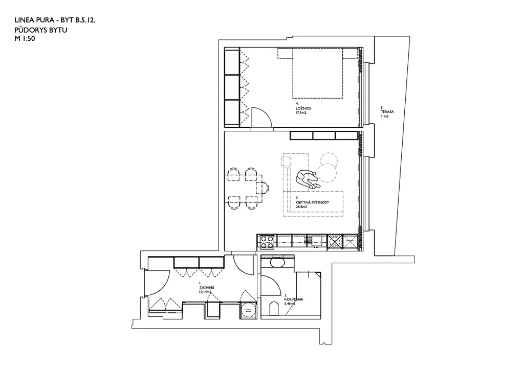
Informace k bytu

Nabízíme Vám k pronájmu luxusní byt 2+kk, situovaný v prestižním rezidenčním projektu Rezidence Linea Pura, v srdci Dolních Holešovic - mezi ulicemi Komunardů - Jateční – Tusarova.

Byt o užitné ploše 60,3 m² se nachází v 5. podlaží a tvoří jej otevřený
obytný prostor s kuchyní a obývacím pokojem a dále ložnice.
Z obytných částí je přímý vstup na prostornou terasu, která přirozeně rozšiřuje hlavní obytný prostor a plynule propojuje interiér s exteriérem.

• Luxusní novostavba v jedné z nejžádanějších a nejživějších čtvrtí v Praze
• Kompletně vybavená moderní kuchyňská linka
• Velkorysé úložné prostory
• Terasa 11 m2
• Prostorné garážové stání
• Velkoformátová hliníková posuvná francouzská okna
• Moderní systém stropního vytápění a chlazení
• Inteligentní ovládání bytu
• Zvýšené stropy v obytných místnostech se zabudovaným nepřímým LED osvětlením


Interiér bytu odpovídá vysokému standardu celého projektu. Velkoformátová hliníková okna s izolačními trojskly přivádějí do interiéru dostatek denního světla a podtrhují vzdušnost prostoru. Standard zahrnuje třívrstvé dřevěné podlahy, koupelny s obklady a sanitárními prvky značky Porcelanosa a zvýšené stropy s integrovaným nepřímým LED osvětlením.

O celoroční tepelný komfort se stará moderní systém stropního vytápění a chlazení napojený na geotermální zdroj, s možností individuální regulace v jednotlivých místnostech. Součástí standardu jsou rovněž venkovní screenové rolety a inteligentní ovládání vybraných funkcí bytu.

Vstup do Lidlu je přímo z podzemních garáží.

Holešovice patří k nejatraktivnějším pražským rezidenčním lokalitám.
Jsou gurmánským rájem s vysokou koncentrací výběrových kaváren, bister a restaurací.

Charakteristický jsou pro ně Industriální šmrnc a moderní architektura.
Čtvrť je dynamická, mladistvá a neformální, oblíbená u mladých profesionálů, umělců i rodin s dětmi.

Doprava a poloha
• Holešovice jsou velmi dobře napojeny na centrum. Funguje zde metro linky C (Nádraží Holešovice, Vltavská), tramvaje a vlakové nádraží. Snadné napojení na vnitřní městský okruh, metro i tramvaje doplní nově lávka přes volnočasový ostrov Štvanice přímo do Karlína
• Čtvrť je velmi přívětivá pro cyklisty, s cyklostezkami podél Vltavy.

Příroda a rekreace
• Stromovka: Královské obora; ideální místo pro běh, procházky a relaxaci.
• Letenské sady: Jsou hned vedle a nabízejí jedny z nejlepších výhledů na Prahu.
• Vltava: Oblíbené jsou náplavky a cyklostezky u řeky.

Byt je nabízen nezařízený.

Neváhejte si domluvit prohlídku bytu. Těšíme se na Vás!

Parametry bytu

Cena
50 000 Kč /za měsíc
Náklady na bydlení
4500
Aktualizováno
13. 2. 2026
Adresa
Komunardů, Praha, Holešovice
Stavba
Skeletová
Stav objektu
Novostavba
Patro
5. z 7
Vybaveno
Částečně
Lokalita objektu
Centrum obce
Vlastnictví
Osobní
Užitná plocha
60 m2
Podlahová plocha
86 m2
Třída energetické náročnosti
A - Mimořádně úsporná
Elektřina
230V
Odpad
Veřejná kanalizace
Komunikace
Dlážděná
Telekomunikace
Kabelové rozvody
Doprava
Vlak, Dálnice, Silnice, MHD, Autobus
Voda
Vodovod
Topné těleso
Podlahové vytápění, Jiné
Zdroj topení
Tepelné čerpadlo
Terasa
Výtah
Parkování

Kontaktovat makléře

Realitní kancelář

Monika Kritzner Reality s.r.o.

Leština u Světlé 29, Leština u Světlé

Chystáte se prodat nemovitost?
Pomůžeme Vám!

Máte zájem o tento byt?

Tímto, v souladu s nařízením Evropského parlamentu a Rady (EU) 2016/679, v platném znění, prohlašuji, že mi je alespoň 16 let a uděluji tak svůj souhlas se zpracováním zadaných údajů (jméno, telefon, e-mail, ip adresa) společnosti B3 Technology, s.r.o., IČ: 07330600, se sídlem Novostavby 126/23, 435 11 Lom (správce dat), za účelem předání dotazu z tohoto formuláře Vámi vybranému inzerentovi a zpětného kontaktování mé osoby. Osobní údaje bude správce zpracovávat manuálně i automaticky přímo prostřednictvím svých zaměstnanců. Informace předané tímto formulářem budou uloženy v databázi správce maximálně po dobu 10 let. Odvolání souhlasu s uložením a zpracováním poskytnutých dat lze e-mailem na info@bydlisnami.cz. V případě podezření na neoprávněné použití Vámi poskytnutých údajů máte právo předat podnět k šetření Úřadu pro ochranu osobních údajů. Více informací
Chystáte se prodat nemovitost?
Pomůžeme Vám!

Inzerát si prohlédlo 2 lidí

Prodejce

Monika Kritzner

Monika Kritzner

Hlídací pes

Chcete dostávat emailem podobné nabídky pronájmu bytů 2+kk v Praze 7?

Podobné nemovitosti