Prodej pozemku pro bydlení, Oslavany, 481 m2

Oslavany, Padochov

3 848 000 Kč /za nemovitost HYPOTÉKA od 17 198 Kč /za měsíc

(včetně DPH, včetně poplatků, včetně provize, včetně právního servisu)

Doporučené firmy v Oslavanech

Pojištění a finance

Informace k pozemku

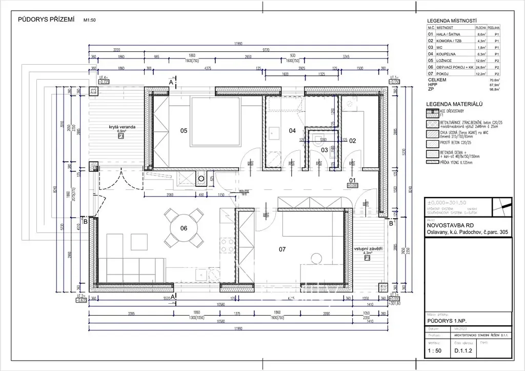
Nabízíme ke koupi stavební pozemek o výměře 481 m² se stavebním povolením na samostatně stojící rodinný dům o dispozici 3+kk. Projekt počítá s nepodsklepenou dřevostavbou se sedlovou střechou a zastavěnou plochou cca 100 m² o rozměrech cca 8,5 x 12 m. Užitná plocha domu tak dokonale splňuje požadavky na komfortního a úsporného bydlení. Jako bonus přivítáte terasu s jižní orientací, která zajistí prostor pro relaxaci v soukromí.

Dispozice domu:
• Vstupní závětří: 4,3 m2
• Vstupní hala: 8,6 m2
• Obývací pokoj s kk a krbovou vložkou: 24,8 m2
• Ložnice: 12,6 m2
• Pokoj: 12,2 m2
• Koupelna: 6,3 m2
• Komora/technická místnost: 4,3 m2
• Samostatné WC: 1,8 m2
• Krytá terasa: 6,9 m2

Popis pozemku
Téměř rovinatý pozemek obdélníkového tvaru výměře cca 29 x 17 m nabízí skvělou příležitost jak pro užitkovou zahradu, tak i pro relaxační prostor, který zajistí dokonalé soukromí a nerušený odpočinek v kontaktu s přírodou. Pozemek je kompletně oplocený s bránou pro vjezd.

Napojení na sítě
Elektřina je zavedena přímo na pozemek, další inženýrské sítě – plyn, voda a kanalizace se nacházejí na přilehlé komunikaci před plánovaným domem. Vytápění domu je navrženo jako ústřední, plynové s kondenzačním kotlem, který také zajišťuje ohřev teplé užitkové vody. Navrženo je komfortní podlahové vytápění. Obývací pokoj může dohřívat romantická krbová vložka.

Klidná lokalita
Pozemek se nachází v Padochově, klidné části oblíbených Oslavan, která na město plynule navazuje a nabízí ideální rovnováhu mezi soukromím a dostupností služeb. Jednou z hlavních předností je umístění na samém okraji obce – bezprostředně u polí s otevřeným výhledem do krajiny a do přilehlých rozsáhlých lesních porostů. Lokalita je ideální pro ty, kteří hledají klid, prostor a kontakt s přírodou, přesto však nechtějí rezignovat na pohodlné spojení s městem. Okolí nabízí typickou jihomoravskou krajinu, ideální pro procházky, cyklovýlety i aktivní odpočinek.

Občanská vybavenost
Obec Oslavany-Padochov najdeme přibližně 25 km na západ od Brna. Tento pozemek s projektem představuje ideální kombinaci klidného bydlení, prostorné zahrady a výborné dostupnosti cca 25 minut do brněnského kampusu. V dojezdové vzdálenosti jsou také cca 5 minut Oslavany a 8 minut Ivančice. V místě je k dispozici mateřská škola, dětské hřiště, hospůdka i tělovýchovná jednota Sokol, v Oslavanech pak kompletní občanská vybavenost včetně lékařů, restaurací, služeb i hromadná doprava.

Tato nabídka je ideální volbou pro ty, kteří hledají nové bydlení bez kompromisů – samostatný dům s vlastní zahradou s možností začít okamžitě stavět v tiché lokalitě, a zároveň s výbornou dostupností Brna i okolních obcí.

Vizualizace domu byly vytvořeny pomocí AI a mohou mít mírné odchylky od projektu domu.

Parametry pozemku

Cena
3 848 000 Kč /za nemovitost Spočítat hypotéku
Poznámka k ceně
včetně DPH, včetně poplatků, včetně provize, včetně právního servisu
Aktualizováno
14. 2. 2026
Adresa
Oslavany, Padochov
ID
00234
Plocha pozemku
481 m2
Plyn
Plynovod
Odpad
Veřejná kanalizace
Komunikace
Asfaltová
Doprava
Vlak, Silnice, Autobus
Zdroj topení
Plynový kondenzační kotel, Krbová kamna

Kontaktovat makléře

Máte zájem o tento pozemek?

Tímto, v souladu s nařízením Evropského parlamentu a Rady (EU) 2016/679, v platném znění, prohlašuji, že mi je alespoň 16 let a uděluji tak svůj souhlas se zpracováním zadaných údajů (jméno, telefon, e-mail, ip adresa) společnosti B3 Technology, s.r.o., IČ: 07330600, se sídlem Novostavby 126/23, 435 11 Lom (správce dat), za účelem předání dotazu z tohoto formuláře Vámi vybranému inzerentovi a zpětného kontaktování mé osoby. Osobní údaje bude správce zpracovávat manuálně i automaticky přímo prostřednictvím svých zaměstnanců. Informace předané tímto formulářem budou uloženy v databázi správce maximálně po dobu 10 let. Odvolání souhlasu s uložením a zpracováním poskytnutých dat lze e-mailem na info@bydlisnami.cz. V případě podezření na neoprávněné použití Vámi poskytnutých údajů máte právo předat podnět k šetření Úřadu pro ochranu osobních údajů. Více informací
Chystáte se prodat nemovitost?
Pomůžeme Vám!
Theleadway banner

Inzerát si prohlédlo 4 lidí

Prodejce

Infolinka Ravantino

Infolinka Ravantino

Hlídací pes

Chcete dostávat emailem podobné nabídky prodeje pozemků pro bydlení v Oslavanech?

Podobné nemovitosti