Pronájem bytu 2+kk, Praha - Vinohrady, Slezská, 57 m2 (ID: 2549581)

Slezská, Praha, Vinohrady

27 900 Kč /za měsíc Získejte výhodnou HYPOTÉKU

(Poplatky za služby a energie se hradí zvlášť.)

Doporučené firmy v Praze 3

Stěhovací služby

Výkup a prodej starého nábytku

Informace k bytu

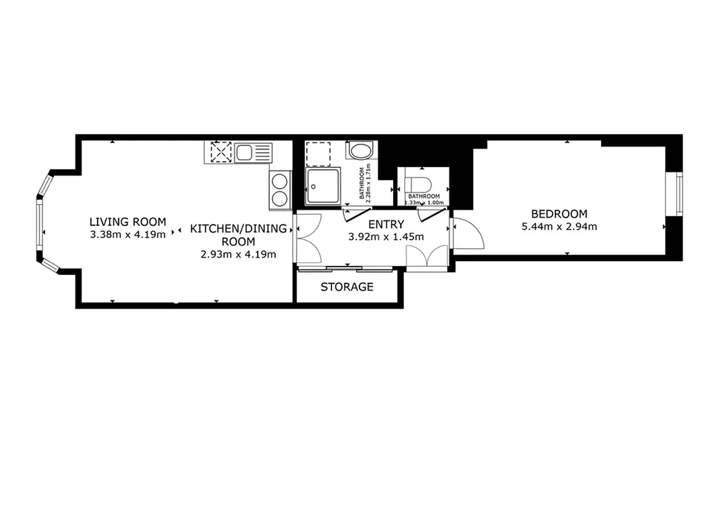
Zrekonstruovaný byt 2+kk (1 ložnice, 1 koupelna), s obytnou plochou 57m2, je situovaný ve 3.patře rezidenční budovy s výtahem, v oblíbené lokalitě Praha 3 Vinohrady, ulice Slezská.
Interiér bytu je nezařízený a dispozičně nabízí vstupní chodbu se samostatným vstupem do každé místnosti: obývací pokoj s kuchyní vybavenou spotřebiči (varná deska, trouba, mikrovlnná trouba, myčka, lednice s mrazákem), dále ložnici, moderní koupelnu vybavenou sprchovým koutem a pračkou se sušičkou, samostatnou toaletu a komoru.

Dům se nachází v oblíbené rezidenční čtvrti na Vinohradech. Vynikající občanská vybavenost poskytuje rezidentům komfortní bydlení (nákupní centrum Flora, farmářské trhy na Nám. Jiřího z Poděbrad, velký výběr různých kvalitních restaurací, bistra, kavárny, obchody s delikatesy i farmářské obchody, kino, skvělé butiky na Vinohradské nákupní ulici a mnoho dalšího). Výborná dopravní dostupnost, stanice metra Jiřího z Poděbrad (metro A) nebo tramvajová zastávka Perunova nebo Jiřího z Poděbrad jsou jenom pár minut chůze od domu.

Poplatky za služby spojené s užíváním bytu činí 1 250 Kč / měsíc/ osobu. Energie za byt (elektřina a plyn) hradí nájemce přímo dodavatelům služeb. Vratná kauce 2 měsíční nájmy. Provize RK.

K dispozici ihned.

Parametry bytu

Cena
27 900 Kč /za měsíc
Poznámka k ceně
Poplatky za služby a energie se hradí zvlášť.
Aktualizováno
16. 2. 2026
Adresa
Slezská, Praha, Vinohrady
ID
974562
Stavba
Cihlová
Stav objektu
Velmi dobrý
Patro
4.
Vybaveno
Ne
Vlastnictví
Osobní
Užitná plocha
57 m2
Podlahová plocha
57 m2
Třída energetické náročnosti
G - Mimořádně nehospodárná
Elektřina
230V
Plyn
Plynovod
Telekomunikace
Telefon
Doprava
Silnice, MHD
Voda
Vodovod
Výtah

Kontaktovat makléře

Máte zájem o tento byt?

Tímto, v souladu s nařízením Evropského parlamentu a Rady (EU) 2016/679, v platném znění, prohlašuji, že mi je alespoň 16 let a uděluji tak svůj souhlas se zpracováním zadaných údajů (jméno, telefon, e-mail, ip adresa) společnosti B3 Technology, s.r.o., IČ: 07330600, se sídlem Novostavby 126/23, 435 11 Lom (správce dat), za účelem předání dotazu z tohoto formuláře Vámi vybranému inzerentovi a zpětného kontaktování mé osoby. Osobní údaje bude správce zpracovávat manuálně i automaticky přímo prostřednictvím svých zaměstnanců. Informace předané tímto formulářem budou uloženy v databázi správce maximálně po dobu 10 let. Odvolání souhlasu s uložením a zpracováním poskytnutých dat lze e-mailem na info@bydlisnami.cz. V případě podezření na neoprávněné použití Vámi poskytnutých údajů máte právo předat podnět k šetření Úřadu pro ochranu osobních údajů. Více informací
Chystáte se prodat nemovitost?
Pomůžeme Vám!

Inzerát si prohlédlo 2 lidí

Prodejce

Eva Cinculová

Eva Cinculová

Hlídací pes

Chcete dostávat emailem podobné nabídky pronájmu bytů 2+kk v Praze 3?

Podobné nemovitosti