Pronájem bytu 2+kk, Praha - Michle, Magistrů, 65 m2

Magistrů, Praha, Michle

30 000 Kč /za měsíc Získejte výhodnou HYPOTÉKU

(+ 6 500 Kč, poplatky včetně elektřiny, včetně DPH, bez poplatků)

Doporučené firmy v Praze 4

Stěhovací služby

Výkup a prodej starého nábytku

Informace k bytu

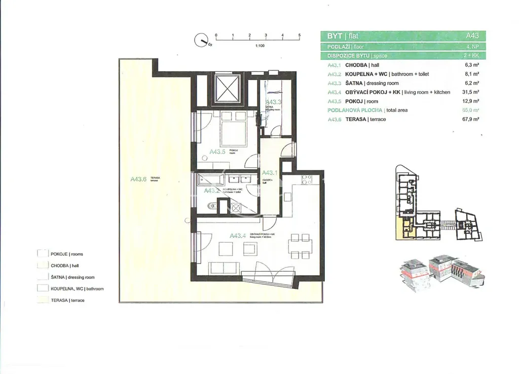
Nabízíme k pronájmu krásný a zařízený byt 2+kk o obytné ploše 65 m² v novostavbě Pod Tyršovým vrchem, Praha 4 – Michle. Byt je situován ve 4. podlaží bytového domu s výtahem, součástí je velká terasa o velikosti 67,9 m².

Dispozice zahrnují vstupní chodbu, prostornou šatnu s úložnými prostory, ložnici, obývací pokoj s kuchyňským koutem a jídelním stolem. Kuchyň je vybavena všemi spotřebiči – indukční varná deska, digestoř, kompaktní trouba včetně mikrovlnky, myčka a lednice s mrazákem. V koupelně je vana s toaletou, dvě umyvadla a pračka. Z obývacího pokoje i ložnice je vstup na terasu s posezením, která je orientována na jih. Dřevěná podlaha a dlažba, bezpečnostní dveře, kvalitní francouzská okna, televize. K dispozici je také sklep, v případě zájmu zajistíme pronájem parkovacího stání v garáži.

Standardní zařízení bytu odpovídá současným nárokům na komfortní a moderní bydlení. Komorní bytový dům disponuje nízkou energetickou náročností B, nabízí klidné bydlení na pomezí Nuslí, Vršovic a Michle. Lokalita s veškerou občanskou vybaveností, mnoho obchodů, restaurací, kaváren a škol. Možnost sportovního a kulturního vyžití. Dále je hned v bezprostřední blízkosti Park Kapitol s velkým krásným dětským hřištěm, tenisovými kurty a beach volejbalem, cyklostezka kolem Botiče. Skvělá dopravní dostupnost, zastávky Pod Jezerkou a Kloboučnická, nedaleko stanice metra C – Pankrác.

K dispozici od 1.5.2026.

Parametry bytu

Cena
30 000 Kč /za měsíc
Poznámka k ceně
+ 6 500 Kč, poplatky včetně elektřiny, včetně DPH, bez poplatků
Aktualizováno
16. 2. 2026
Adresa
Magistrů, Praha, Michle
ID
N7881
Stavba
Cihlová
Stav objektu
Velmi dobrý
Patro
4.
Vybaveno
Ano
Vlastnictví
Osobní
Užitná plocha
65 m2
Podlahová plocha
133 m2
Třída energetické náročnosti
G - Mimořádně nehospodárná
Sklep
Terasa
Výtah

Kontaktovat makléře

Máte zájem o tento byt?

Tímto, v souladu s nařízením Evropského parlamentu a Rady (EU) 2016/679, v platném znění, prohlašuji, že mi je alespoň 16 let a uděluji tak svůj souhlas se zpracováním zadaných údajů (jméno, telefon, e-mail, ip adresa) společnosti B3 Technology, s.r.o., IČ: 07330600, se sídlem Novostavby 126/23, 435 11 Lom (správce dat), za účelem předání dotazu z tohoto formuláře Vámi vybranému inzerentovi a zpětného kontaktování mé osoby. Osobní údaje bude správce zpracovávat manuálně i automaticky přímo prostřednictvím svých zaměstnanců. Informace předané tímto formulářem budou uloženy v databázi správce maximálně po dobu 10 let. Odvolání souhlasu s uložením a zpracováním poskytnutých dat lze e-mailem na info@bydlisnami.cz. V případě podezření na neoprávněné použití Vámi poskytnutých údajů máte právo předat podnět k šetření Úřadu pro ochranu osobních údajů. Více informací
Chystáte se prodat nemovitost?
Pomůžeme Vám!

Inzerát si prohlédlo 1 lidí

Prodejce

Ing. Zdeněk Jemelík

Ing. Zdeněk Jemelík

Hlídací pes

Chcete dostávat emailem podobné nabídky pronájmu bytů 2+kk v Praze 4?

Podobné nemovitosti