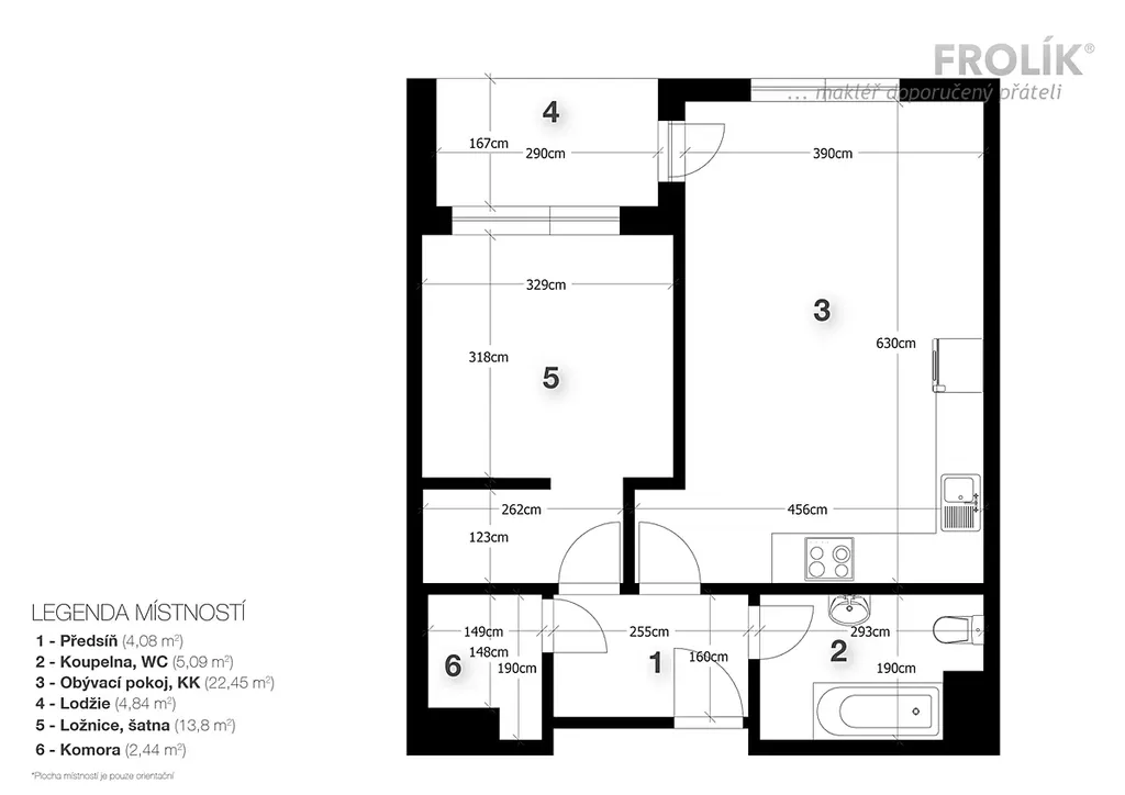
Pronájem bytu 2+kk, Praha - Ruzyně, Stočesova, 51 m2

Stočesova, Praha, Ruzyně

24 000 Kč /za měsíc Získejte výhodnou HYPOTÉKU

(+ poplatky)

Doporučené firmy v Praze 6

Stěhovací služby

Výkup a prodej starého nábytku

Informace k bytu

Bydlení v novém je vždycky fajn! Takže jestli si tu novotu chcete užít, přijďte se co nejdříve podívat na tento fajnový byt 2+kk s lodžií, garážovým stáním a sklepem, v projektu "Byty u Šárky", v ulici Stočesova, v Praze 6 - Ruzyni. Najdete ho ve 3. patře novostavby (s výtahem) z roku 2025.

Byt má výměru cca 51 m2 + cca 5 m2 lodžii. Je celý otočený na východní stranu, do areálu. Okna jsou plastová s trojskly, takže krásně zvukově těsní. Navíc mají i mikroventilaci a vnitřní žaluzie. Kuchyňská linka je vybavena vestavěnými spotřebiči - lednice s mrazákem, el. trouba, mikrovlnka, myčka, indukční varná deska, digestoř. V chodbě bytu je komora/šatna a v ložnici je oddělený šatní kout s vlastním světlem.

V domě je i společná kolárna a kočárkárna. Tu už budete mít v ceně. Kousek od domu je venkovní sportoviště, konečná tram, nedaleko je OC Šestka, o kousek níž do Prahy pak koupaliště Džbán a Divoká Šárka.

Garáž a sklep není podmínkou podnájmu, ale pokud si je vezmete, budou dohromady za 1.000 Kč/měs. + služby 136 Kč/měs.

Projekt je postaven jako družstevní bydlení, jedná se tedy o podnájem.

Kromě podnájemného budete platit zálohy na služby 4.736 Kč/měs.. Elektřina bude převedena na Vás. Podnájemné + služby se hradí na 1 měsíc dopředu, jistota je 2x podnájemné, provize 1x podnájemné.

Byt je ihned k dispozici.

PENB třída B.

Parametry bytu

Cena
24 000 Kč /za měsíc
Poznámka k ceně
+ poplatky
Náklady na bydlení
5 800
Aktualizováno
17. 2. 2026
Adresa
Stočesova, Praha, Ruzyně
ID
RF 0575
Stavba
Cihlová
Stav objektu
Novostavba
Patro
4. z 5
Vybaveno
Ne
Lokalita objektu
Okraj obce
Vlastnictví
Osobní
Užitná plocha
51 m2
Třída energetické náročnosti
B - Velmi úsporná
Ukazatel energetické náročnosti
70 kWh/m2 za rok
Elektřina
230V
Odpad
Veřejná kanalizace
Komunikace
Asfaltová
Telekomunikace
Telefon, Internet, Kabelová televize, Kabelové rozvody
Doprava
Vlak, Dálnice, Silnice, MHD, Autobus
Voda
Vodovod
Topné těleso
Radiátory
Zdroj topení
Centrální dálkové
Garáž
Sklep
Lodžie
Výtah

Kontaktovat makléře

Máte zájem o tento byt?

Tímto, v souladu s nařízením Evropského parlamentu a Rady (EU) 2016/679, v platném znění, prohlašuji, že mi je alespoň 16 let a uděluji tak svůj souhlas se zpracováním zadaných údajů (jméno, telefon, e-mail, ip adresa) společnosti B3 Technology, s.r.o., IČ: 07330600, se sídlem Novostavby 126/23, 435 11 Lom (správce dat), za účelem předání dotazu z tohoto formuláře Vámi vybranému inzerentovi a zpětného kontaktování mé osoby. Osobní údaje bude správce zpracovávat manuálně i automaticky přímo prostřednictvím svých zaměstnanců. Informace předané tímto formulářem budou uloženy v databázi správce maximálně po dobu 10 let. Odvolání souhlasu s uložením a zpracováním poskytnutých dat lze e-mailem na info@bydlisnami.cz. V případě podezření na neoprávněné použití Vámi poskytnutých údajů máte právo předat podnět k šetření Úřadu pro ochranu osobních údajů. Více informací
Chystáte se prodat nemovitost?
Pomůžeme Vám!

Inzerát si prohlédlo 1 lidí

Prodejce

Robert Frolík

Robert Frolík

Hlídací pes

Chcete dostávat emailem podobné nabídky pronájmu bytů 2+kk v Praze 6?

Podobné nemovitosti