Pronájem obchodního prostoru, Holešov, U Letiště, 55 m2

U Letiště, Holešov

12 000 Kč /za měsíc Získejte výhodnou HYPOTÉKU

(cena je konečná)

Doporučené firmy v Holešově

Informace k nemovitosti

Představuji vám obchodní prostor k pronájmu, který se nachází na ulici U Letiště v Holešově.

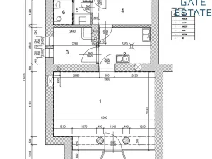
Jedná se o 55m2 podlahové plochy. Skládá se z hlavního obchodního prostoru, dále pak kuchyňky, malé kanceláře, malého skladu a WC. Byly zde nově udělány kompletní rozvody elektřiny a byl nainstalován nový elektro kotel, který zajišťuje vytápění prostoru. Vstup je z chodníku z ulice přímo do obchodního prostoru. Dále je přístup možný také ze zadní části, ideální pro zásobování. Prostor je nyní kompletně vystěhovaný, zajišťujeme nové fotografie.

Velkým plusem je nově vybudované parkoviště za domem, s dostatečnou kapacitou, které zajišťuje pohodlné parkování pro vás i vaše klienty. Samotný prostor je velmi variabilní a nabízí široké možnosti využití – ať už hledáte místo pro kancelář, obchod, salón, kontaktní místo či menší showroom.

Tato nabídka je skvělou příležitostí pro každého, kdo chce podnikat v příjemném prostředí s bezproblémovým parkováním. Tato lokalita je ideální nejen díky svému klidnému charakteru, ale i skvělé dostupnosti do centra města. V okolí najdete například pizzerii, dětské hřiště, sportovní centrum s bazénem, městský úřad, vlakové a autobusové nádraží, obchod a další.

Náklady na provoz jsou následující:
1.400,-Kč platba do SVJ (fond oprav, voda, pojištění domu)
3.500,-Kč (aktuálně vytápění, svícení, několik elektrospotřebičů a velký chladící box pro květiny). Záleží na provozu každého podnikání.

Nájem 12.000,-Kč. Vratná kauce jeden nájem, jednorázová provize jeden nájem + DPH.

V případě zájmu o prohlídku mi prosím zavolejte a rád si s Vámi domluvím termín.

Parametry nemovitosti

Cena
12 000 Kč /za měsíc
Poznámka k ceně
cena je konečná
Aktualizováno
18. 2. 2026
Adresa
U Letiště, Holešov
ID
01002
Stavba
Smíšená
Stav objektu
Velmi dobrý
Patro
1. z 3
Vybaveno
Částečně
Lokalita objektu
Klidná část obce
Užitná plocha
55 m2
Zastavěná plocha
529 m2
Podlahová plocha
55 m2
Třída energetické náročnosti
G - Mimořádně nehospodárná
Plyn
Plynovod
Odpad
Veřejná kanalizace
Komunikace
Dlážděná, Asfaltová
Doprava
Vlak, Dálnice
Voda
Vodovod
Topné těleso
Radiátory
Zdroj topení
Elektrokotel
Bezbarierový přístup

Kontaktovat makléře

Máte zájem o tuto nemovistost?

Tímto, v souladu s nařízením Evropského parlamentu a Rady (EU) 2016/679, v platném znění, prohlašuji, že mi je alespoň 16 let a uděluji tak svůj souhlas se zpracováním zadaných údajů (jméno, telefon, e-mail, ip adresa) společnosti B3 Technology, s.r.o., IČ: 07330600, se sídlem Novostavby 126/23, 435 11 Lom (správce dat), za účelem předání dotazu z tohoto formuláře Vámi vybranému inzerentovi a zpětného kontaktování mé osoby. Osobní údaje bude správce zpracovávat manuálně i automaticky přímo prostřednictvím svých zaměstnanců. Informace předané tímto formulářem budou uloženy v databázi správce maximálně po dobu 10 let. Odvolání souhlasu s uložením a zpracováním poskytnutých dat lze e-mailem na info@bydlisnami.cz. V případě podezření na neoprávněné použití Vámi poskytnutých údajů máte právo předat podnět k šetření Úřadu pro ochranu osobních údajů. Více informací
Chystáte se prodat nemovitost?
Pomůžeme Vám!

Inzerát si prohlédlo 0 lidí

Prodejce

Mgr. Jiří Kaňa, MBA

Mgr. Jiří Kaňa, MBA

Hlídací pes

Chcete dostávat emailem podobné nabídky pronájmu obchodních prostor v Holešově?

Podobné nemovitosti