Remax Monarcha

Pronájem obchodního prostoru, Šternberk, Nádražní, 726 m2

Nádražní, Šternberk

95 000 Kč /za měsíc Získejte výhodnou HYPOTÉKU
Doporučené firmy v Šternberku

Informace k nemovitosti

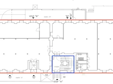
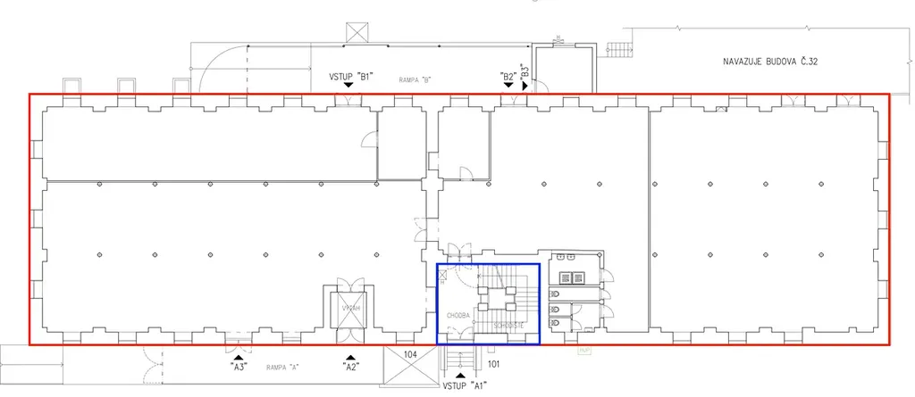
Nabízíme k pronájmu nebytové prostory v přízemí nemovitosti, přístupné z více stran. Prostory jsou vhodné pro obchod, servis, skladování, výrobu. Prostory jsou vybavené sociálním zázemím.

Inženýrské sítě - elektřina samostatné měření, vysoká kapacita.
Teplo - prostory jsou vytápěné.
Voda - Sociální zázemí je k dispozici.

Členění prostoru je znázorněno v dispozičním řešení u fotografií. Některé příčky jsou SDK. Dle potřeby je možné prostory i jinak členit. Přístup je přes rampy ze dvou stran. Jedna rampa je uzavřena a uzamykatelná, může být součástí pronájmu. V případě zájmu o bližší informace, případně o prohlídku kontaktujte makléře.

Parametry nemovitosti

Cena
95 000 Kč /za měsíc
Aktualizováno
20. 2. 2026
Adresa
Nádražní, Šternberk
Stavba
Cihlová
Stav objektu
Velmi dobrý
Patro
1.
Užitná plocha
726 m2
Parkování

Kontaktovat makléře

Máte zájem o tuto nemovistost?

Tímto, v souladu s nařízením Evropského parlamentu a Rady (EU) 2016/679, v platném znění, prohlašuji, že mi je alespoň 16 let a uděluji tak svůj souhlas se zpracováním zadaných údajů (jméno, telefon, e-mail, ip adresa) společnosti B3 Technology, s.r.o., IČ: 07330600, se sídlem Novostavby 126/23, 435 11 Lom (správce dat), za účelem předání dotazu z tohoto formuláře Vámi vybranému inzerentovi a zpětného kontaktování mé osoby. Osobní údaje bude správce zpracovávat manuálně i automaticky přímo prostřednictvím svých zaměstnanců. Informace předané tímto formulářem budou uloženy v databázi správce maximálně po dobu 10 let. Odvolání souhlasu s uložením a zpracováním poskytnutých dat lze e-mailem na info@bydlisnami.cz. V případě podezření na neoprávněné použití Vámi poskytnutých údajů máte právo předat podnět k šetření Úřadu pro ochranu osobních údajů. Více informací
Chystáte se prodat nemovitost?
Pomůžeme Vám!

Inzerát si prohlédlo 2 lidí

Prodejce

Petr Štolba

Petr Štolba

Hlídací pes

Chcete dostávat emailem podobné nabídky pronájmu obchodních prostor v Šternberku?

Podobné nemovitosti