Pronájem bytu 2+kk, Třemošná, Sídliště, 62 m2

Sídliště, Třemošná, okres plzeň-sever

16 000 Kč /za měsíc Získejte výhodnou HYPOTÉKU
Doporučené firmy v Třemošné

Podlahy

Stěhovací služby

Informace k bytu

BYT + GARÁŽ

Byt

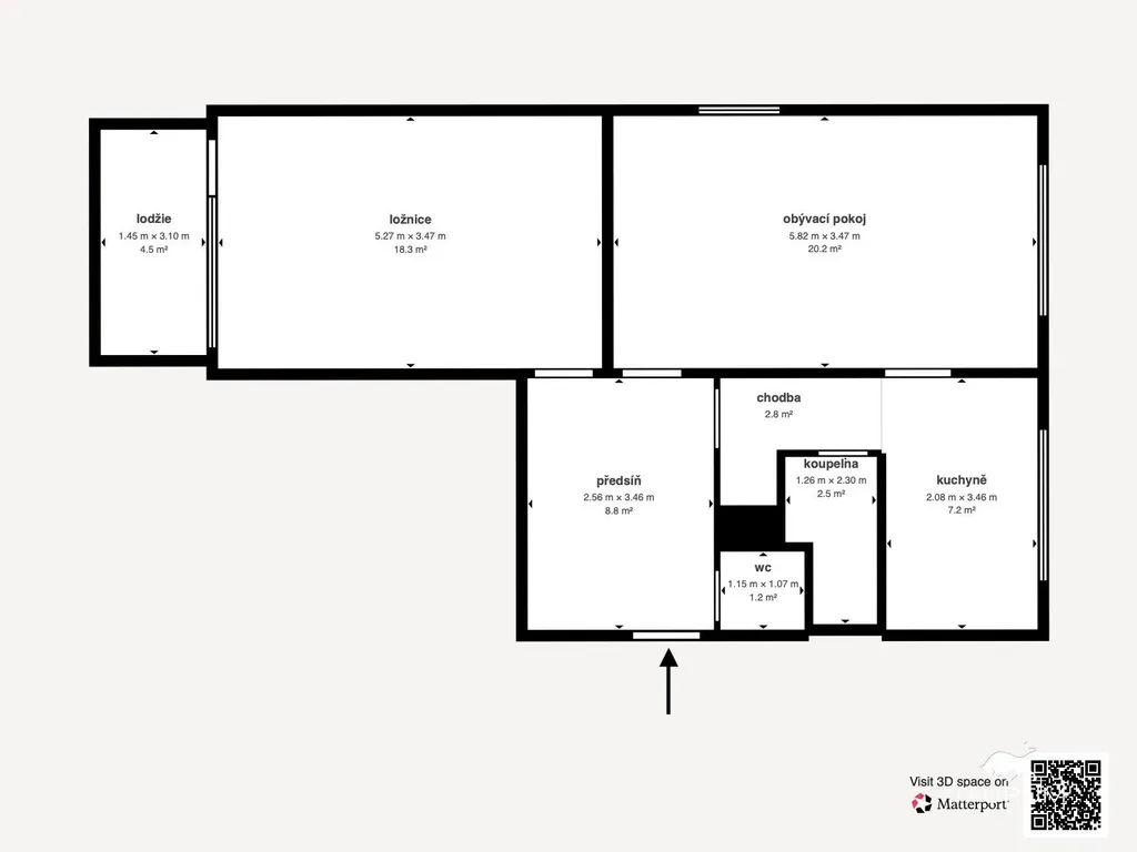
Nabízím k pronájmu moderně zrekonstruovaný byt o výměře 62 m² a dispozici 2+kk s lodžií o výměře 4.5 m² v Třemošné (ul. Sídliště 841).

Byt se nachází ve čtvrtém nadzemním podlaží klidného panelového domu s výtahem. Byt po kompletní rekonstrukci nabízí praktické uspořádání: prostornou vstupní chodbu, obývací místnost, (neprůchozí) ložnici s přístupem na lodžii, moderní a vybavenou kuchyni, koupelnu a samostatné WC. Na chodbě je k dispozici velká šatní skříň. Vytápění i ohřev vody je zajištěno ústřední plynovou kotelnou. K bytu náleží rovněž sklepní kóje.

Třemošná je lokalita s kompletní občanskou vybaveností. Najdete zde školu i školku, poštu, obchody, zastávky MHD i vlakové nádraží, to vše v pohodlné docházkové vzdálenosti od domu. Dostupnost do Plzně je autem 5 minut, vlakem nebo autobusem 15 minut.

Garáž

S bytem současně nabízím nájem garáže o výměře 16 m² se zavedenou elektřinou (podružný elektroměr). Garáž se nachází jen pár minut chůze od bytu.

NÁJEMNÉ
a) (BYT) 14 000 Kč + 3 200 Kč zálohy na služby pro 1 osobu (3 500 Kč pro 2 osoby), vratná kauce je ve výši 28 000 Kč. Elektřina se převádí na nájemce;
b) (GARÁŽ): 2 000 Kč + 100 Kč zálohy na elektřinu, vratná kauce je ve výši 4 000 Kč;
= celková výše nájemného (BYT + GARÁŽ) tedy činí částku měsíčně 16 000 Kč + 3 300 Kč (1 osoba), vratná kauce 32 000 Kč, provize RK je 1 celkové nájemné 16 000 Kč + DPH.

VOLNÉ IHNED

Parametry bytu

Cena
16 000 Kč /za měsíc
Aktualizováno
23. 2. 2026
Adresa
Sídliště, Třemošná, okres plzeň-sever
ID
260014
Stavba
Panelová
Stav objektu
Po rekonstrukci
Patro
4. z 7
Vlastnictví
Osobní
Užitná plocha
62 m2
Podlahová plocha
62 m2
Třída energetické náročnosti
G - Mimořádně nehospodárná
Elektřina
230V
Plyn
Plynovod
Voda
Vodovod
Garáž
Sklep
Lodžie
Výtah

Kontaktovat makléře

Realitní kancelář

TAURUM reality s.r.o.

Americká 1139/1, Plzeň, Jižní Předměstí

Chystáte se prodat nemovitost?
Pomůžeme Vám!

Máte zájem o tento byt?

Tímto, v souladu s nařízením Evropského parlamentu a Rady (EU) 2016/679, v platném znění, prohlašuji, že mi je alespoň 16 let a uděluji tak svůj souhlas se zpracováním zadaných údajů (jméno, telefon, e-mail, ip adresa) společnosti B3 Technology, s.r.o., IČ: 07330600, se sídlem Novostavby 126/23, 435 11 Lom (správce dat), za účelem předání dotazu z tohoto formuláře Vámi vybranému inzerentovi a zpětného kontaktování mé osoby. Osobní údaje bude správce zpracovávat manuálně i automaticky přímo prostřednictvím svých zaměstnanců. Informace předané tímto formulářem budou uloženy v databázi správce maximálně po dobu 10 let. Odvolání souhlasu s uložením a zpracováním poskytnutých dat lze e-mailem na info@bydlisnami.cz. V případě podezření na neoprávněné použití Vámi poskytnutých údajů máte právo předat podnět k šetření Úřadu pro ochranu osobních údajů. Více informací
Chystáte se prodat nemovitost?
Pomůžeme Vám!

Inzerát si prohlédlo 0 lidí

Prodejce

Mgr. Lukáš Pytlík

Mgr. Lukáš Pytlík

Hlídací pes

Chcete dostávat emailem podobné nabídky pronájmu bytů 2+kk v Třemošné?

Podobné nemovitosti