Prodej rodinného domu, Frymburk, 92 m2

Frymburk

6 400 000 Kč /za nemovitost HYPOTÉKA od 28 604 Kč /za měsíc

(Cena je včetně provize RK)

Doporučené firmy v Frymburku

Výkup a prodej starého nábytku

Informace k domu

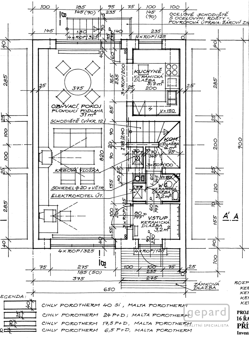
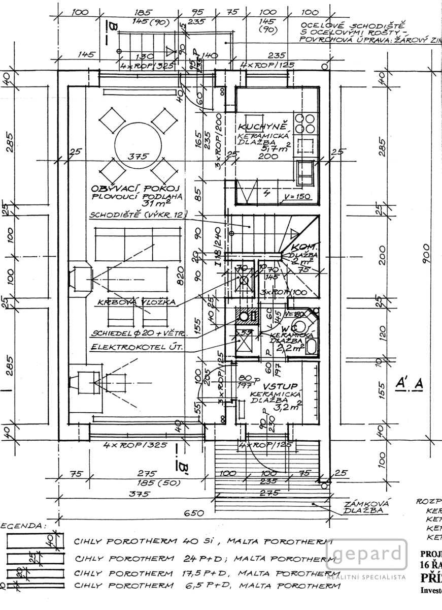
Prodáme výhradně RD – řadový dům ve velmi dobrém stavu ve Frymburku, 100 m od písčité pláže u Lipna, v lokalitě výstavby domů zvané „Sunny Hill“. Tiché, krásné, zdravé prostředí, velmi vhodné k rekreaci, léto – koupání, turistika, cyklostezky, kolečkové brusle, v zimě – lyžování, bruslení, atd.. Vedeno dispozičně jako 4+kk.
1/ Přízemí: zádveří, WC, obývací pokoj s jídelnou, kuchyně.
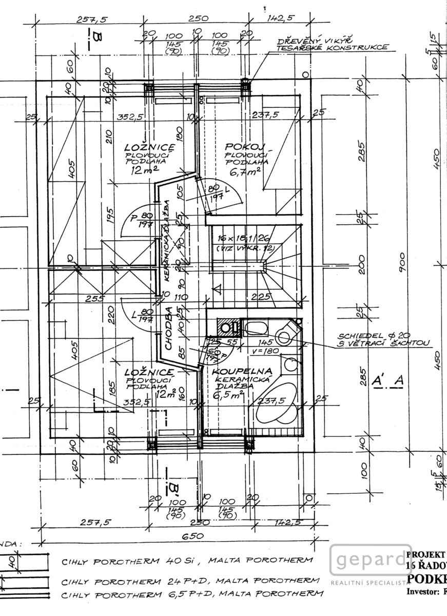
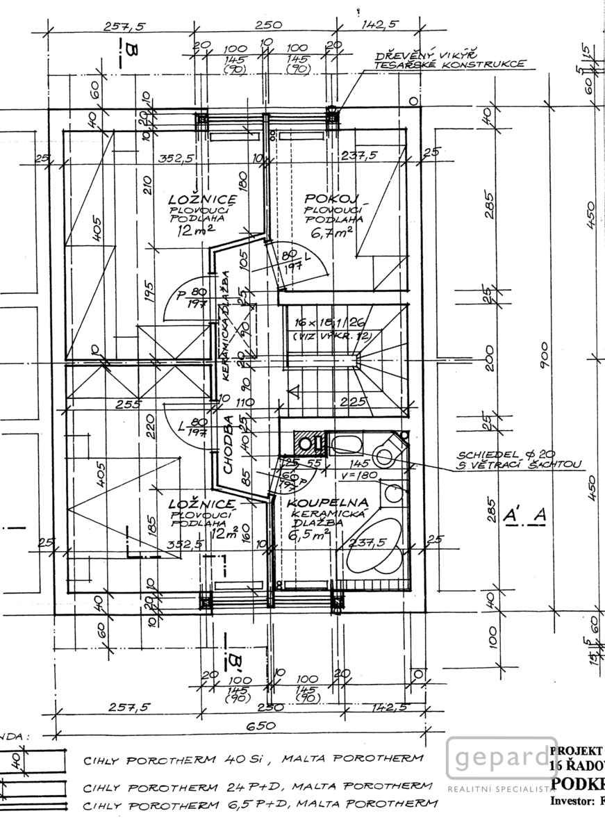
2/ Patro (obytné podkroví): chodba, 3x pokoj, koupelna+WC.
Zahrada: před domem a vzadu za domem.
Plochy:
- zastavěná plocha RD: 59 m2
- podlahová plocha: 92 m2
- obestavěný prostor: 430 m3
- celkem pozemky: 158 m2
Dále: moderní kuchyně komplet vybavená, plovoucí podlahy+dlažby, topení radiátory, regulace termostat, topení elektrokotel, ohřev TUV el.akum. zásobník, krbová kamna obývák, vest. skříně, obvodové zdi POROTRHERM 40 Si, dveře masiv+obložky, schodiště ve dřevě, přízemí 1x WC, patro 1x koupelna s WC a vana, krytina KM BETA, střešní okna, okna izolační plast, stínící žaluzie, závěsy sítě-voda, elektřina, kanalizace, strop nad podkrovím a krov je zateplen minerální vatou 16 cm, parkování na pozemku i v klidné ulici před domem.
IHNED K PŘEVZETÍ.
Městys Frymburk – veškeré občanská vybavenost, TOP rekreační a vyhledávaná oblast přímo u Lipenského jezera, nezátopová oblast, pohodlné spojení Český Krumlov, České Budějovice, atd..
Dobrý stav – můžeme doporučit – neváhejte, sezona se blíží a Lipno je Lipno …..
HYPO pomůžeme zajistit.
PROHLÍDKY domu možné v pátek dne 20.03.2026 v době od 14.00 – 17.00 hod., případně po individuální dohodě.

Parametry domu

Cena
6 400 000 Kč /za nemovitost Spočítat hypotéku
Poznámka k ceně
Cena je včetně provize RK
Aktualizováno
26. 2. 2026
Adresa
Frymburk
ID
12063
Stavba
Cihlová
Stav objektu
Velmi dobrý
Vybaveno
Ano
Typ objektu
Patrový
Druh objektu
Řadový
Lokalita objektu
Klidná část obce
Užitná plocha
92 m2
Zastavěná plocha
59 m2
Podlahová plocha
92 m2
Plocha pozemku
158 m2
Třída energetické náročnosti
G - Mimořádně nehospodárná
Elektřina
230V, 400V
Odpad
Veřejná kanalizace
Komunikace
Asfaltová
Doprava
Vlak, Silnice, Autobus
Voda
Vodovod
Převod do OV
Parkování

Kontaktovat makléře

Realitní kancelář

Logo GEPARD REALITY/Boars

GEPARD REALITY/Boars

Husova tř. 640/33, České Budějovice

Chystáte se prodat nemovitost?
Pomůžeme Vám!

Máte zájem o tento dům?

Tímto, v souladu s nařízením Evropského parlamentu a Rady (EU) 2016/679, v platném znění, prohlašuji, že mi je alespoň 16 let a uděluji tak svůj souhlas se zpracováním zadaných údajů (jméno, telefon, e-mail, ip adresa) společnosti B3 Technology, s.r.o., IČ: 07330600, se sídlem Novostavby 126/23, 435 11 Lom (správce dat), za účelem předání dotazu z tohoto formuláře Vámi vybranému inzerentovi a zpětného kontaktování mé osoby. Osobní údaje bude správce zpracovávat manuálně i automaticky přímo prostřednictvím svých zaměstnanců. Informace předané tímto formulářem budou uloženy v databázi správce maximálně po dobu 10 let. Odvolání souhlasu s uložením a zpracováním poskytnutých dat lze e-mailem na info@bydlisnami.cz. V případě podezření na neoprávněné použití Vámi poskytnutých údajů máte právo předat podnět k šetření Úřadu pro ochranu osobních údajů. Více informací
Chystáte se prodat nemovitost?
Pomůžeme Vám!

Inzerát si prohlédlo 1 lidí

Prodejce

Ing. Jiří Michal

Ing. Jiří Michal

Hlídací pes

Chcete dostávat emailem podobné nabídky prodeje rodinných domů v Frymburku (okr. Český Krumlov)?

Podobné nemovitosti