Prodej rodinného domu, Ludgeřovice, Na Kopaninách, 197 m2

Na Kopaninách, Ludgeřovice

Cena na vyžádání /za nemovitost Získejte výhodnou HYPOTÉKU

(Cena k jednání)

Doporučené firmy v Ludgeřovicích

Informace k domu

Nabízíme k prodeji rodinný dům s hospodářskou částí v klidné okrajové části obce Ludgeřovice.
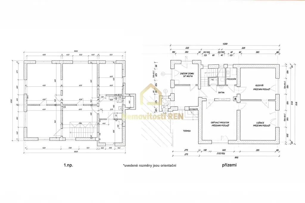
Dům je podsklepený a má dvě nadzemní podlaží. Dispozičně je řešen jako dvě samostatné bytové jednotky 3+1 , což umožňuje vícegenerační bydlení nebo kombinaci vlastního bydlení s pronájmem.
Dispozice:
1.PP – sklepní prostory
1.NP – byt 3+1 (83 m²)
2.NP – byt 3+1 (84 m²)
celková užitná plocha cca 197 m²

Dům je zděný, vytápění zajišťuje plynový kotel, ohřev vody bojlerem. Objekt je napojen na vodu, kanalizaci, plyn i elektřinu. Přístup je z veřejné komunikace.
Nemovitost je v původním, technicky zhoršeném stavu a je určena k rekonstrukci – ideální příležitost pro realizaci vlastních představ o bydlení.
Lokalita nabízí výbornou dostupnost do Ostravy, zastávka MHD cca 650 m, kompletní občanská vybavenost v docházkové vzdálenosti.
Pro více informací či sjednání prohlídky mě neváhejte kontaktovat.

Upozornění: Veškeré zveřejněné údaje obsažené v tomto inzerátu mají pouze informativní charakter a nepředstavují nabídku ve smyslu § 1731 nebo § 1732 občanského zákoníku ani veřejný příslib podle § 1733 občanského zákoníku.

Parametry domu

Cena
Cena na vyžádání Spočítat hypotéku
Poznámka k ceně
Cena k jednání
Aktualizováno
30. 4. 2026
Adresa
Na Kopaninách, Ludgeřovice
ID
0019
Stavba
Cihlová
Stav objektu
Velmi dobrý
Vybaveno
Ano
Druh objektu
Samostatný
Lokalita objektu
Klidná část obce
Užitná plocha
197 m2
Zastavěná plocha
251 m2
Plocha pozemku
395 m2
Plocha zahrady
144 m2
Třída energetické náročnosti
G - Mimořádně nehospodárná
Elektřina
230V
Plyn
Plynovod
Odpad
Veřejná kanalizace
Komunikace
Asfaltová
Doprava
Silnice, MHD, Autobus
Voda
Místní zdroj vody
Sklep

Kontaktovat makléře

Máte zájem o tento dům?

Tímto, v souladu s nařízením Evropského parlamentu a Rady (EU) 2016/679, v platném znění, prohlašuji, že mi je alespoň 16 let a uděluji tak svůj souhlas se zpracováním zadaných údajů (jméno, telefon, e-mail, ip adresa) společnosti B3 Technology, s.r.o., IČ: 07330600, se sídlem Novostavby 126/23, 435 11 Lom (správce dat), za účelem předání dotazu z tohoto formuláře Vámi vybranému inzerentovi a zpětného kontaktování mé osoby. Osobní údaje bude správce zpracovávat manuálně i automaticky přímo prostřednictvím svých zaměstnanců. Informace předané tímto formulářem budou uloženy v databázi správce maximálně po dobu 10 let. Odvolání souhlasu s uložením a zpracováním poskytnutých dat lze e-mailem na info@bydlisnami.cz. V případě podezření na neoprávněné použití Vámi poskytnutých údajů máte právo předat podnět k šetření Úřadu pro ochranu osobních údajů. Více informací
Chystáte se prodat nemovitost?
Pomůžeme Vám!

Inzerát si prohlédlo 4 lidí

Prodejce

Mgr. Bc. Renata Valicová

Mgr. Bc. Renata Valicová

Hlídací pes

Chcete dostávat emailem podobné nabídky prodeje rodinných domů v Ludgeřovicích?

Podobné nemovitosti