Prodej pozemku pro bydlení, Ostrava, Lyčkova, 643 m2

Lyčkova, Ostrava, Stará Bělá

2 890 000 Kč /za nemovitost HYPOTÉKA od 12 917 Kč /za měsíc
Doporučené firmy v Ostravě

Informace k pozemku

Prodej stavebního pozemku – Ostrava, Nová Bělá, ul.Lýčková
Naše společnost nabízí k prodeji atraktivní stavební pozemek určený k rezidenční výstavbě v klidné lokalitě Ostrava – Stará Bělá, ulice Lyčkova.
Pozemek má výměru cca 643 m² (rozměry přibližně 36 × 20 m) a je z poloviny oplocený. Přístup k pozemku je zajištěný podílem na cestě.
Inženýrské sítě:
voda na hranici pozemku
kanalizace se plánuje vybudovat v tuto chvíli čištička.
elektřina – přípojka již přivedena k pozemku
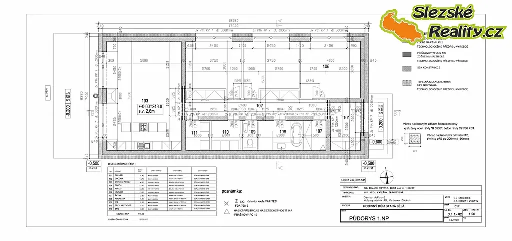
Ke stavbě rodinného domu je již vydané koordinační stanovisko.
V případě koupě pozemku nabízíme možnost výstavby rodinného domu dle individuálních představ klienta.
Fotografie domu v inzerci je pouze ilustrační.
Stará Bělá je vyhledávaná městská část Ostravy, která nabízí ideální kombinaci klidného venkovského prostředí a výborné dostupnosti do centra města. Nachází se v jižní části Ostravy a je oblíbená zejména pro rodinné bydlení díky své zeleni, prostoru a příjemné atmosféře.
Oblast je charakteristická převážně zástavbou rodinných domů, novostaveb i starších rekonstruovaných domů. Lokalita působí klidně a bezpečně, s minimálním průmyslovým ruchem, což ocení především rodiny s dětmi.
Ve Staré Bělé je k dispozici základní občanská vybavenost – mateřská a základní škola, obchody, restaurace, pošta, lékař i sportovní zázemí. Nechybí dětská hřiště, sportoviště ani možnosti pro volnočasové aktivity. V okolí se nachází dostatek zeleně, polí a lesíků, které jsou ideální pro procházky, běh nebo cyklovýlety.
Dopravní dostupnost je velmi dobrá – autem jste v centru Ostravy přibližně do 15 minut. Lokalita je napojena i na městskou hromadnou dopravu.
Stará Bělá je tak skvělou volbou pro ty, kteří chtějí bydlet v klidném prostředí s přírodou na dosah, ale zároveň mít město a veškeré služby rychle dostupné. GPS 49°45'31.86"N, 18°13'27.45"E


Parametry pozemku

Cena
2 890 000 Kč /za nemovitost Spočítat hypotéku
Aktualizováno
4. 3. 2026
Adresa
Lyčkova, Ostrava, Stará Bělá
Lokalita objektu
Klidná část obce
Plocha pozemku
643 m2
Elektřina
400V
Voda
Vodovod

Kontaktovat makléře

Realitní kancelář

Logo Slezské reality

Slezské reality

Vítkovická 3276/2a, Ostrava

Chystáte se prodat nemovitost?
Pomůžeme Vám!

Máte zájem o tento pozemek?

Tímto, v souladu s nařízením Evropského parlamentu a Rady (EU) 2016/679, v platném znění, prohlašuji, že mi je alespoň 16 let a uděluji tak svůj souhlas se zpracováním zadaných údajů (jméno, telefon, e-mail, ip adresa) společnosti B3 Technology, s.r.o., IČ: 07330600, se sídlem Novostavby 126/23, 435 11 Lom (správce dat), za účelem předání dotazu z tohoto formuláře Vámi vybranému inzerentovi a zpětného kontaktování mé osoby. Osobní údaje bude správce zpracovávat manuálně i automaticky přímo prostřednictvím svých zaměstnanců. Informace předané tímto formulářem budou uloženy v databázi správce maximálně po dobu 10 let. Odvolání souhlasu s uložením a zpracováním poskytnutých dat lze e-mailem na info@bydlisnami.cz. V případě podezření na neoprávněné použití Vámi poskytnutých údajů máte právo předat podnět k šetření Úřadu pro ochranu osobních údajů. Více informací
Chystáte se prodat nemovitost?
Pomůžeme Vám!

Inzerát si prohlédlo 5 lidí

Prodejce

Emil Koval

Emil Koval

Hlídací pes

Chcete dostávat emailem podobné nabídky prodeje pozemků pro bydlení v Ostravě?

Podobné nemovitosti