Prodej rodinného domu, Praha - Ďáblice, Květnová, 197 m2

Květnová, Praha, Ďáblice

15 995 900 Kč /za nemovitost HYPOTÉKA od 71 492 Kč /za měsíc
Doporučené firmy v Praze 8

Stěhovací služby

Výkup a prodej starého nábytku

Informace k domu

Rodinné bydlení, které spojuje prostor, soukromí a komfort městského života.

Dvoupodlažní dům o dispozici 5+kk s užitnou plochou 197 m2 na pozemku 261 m2 v klidné rezidenční části Prahy.

Velkým benefitem nemovitosti je terasa navazující na obytný prostor, garáž v domě a další parkovací stání na vlastním pozemku - prvek, který je v městské zástavbě stále cennější.

Dům nabízí praktickou dispozici, velkorysé místnosti a flexibilní využití pro rodinu i práci z domova. Díky dvěma koupelnám a možnosti plnohodnotného fungování již v přízemí je vhodný i pro vícegenerační bydlení.


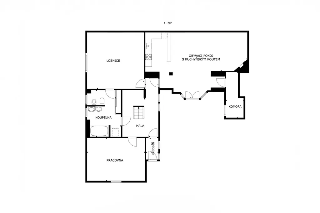
Dispozice

1. nadzemní podlaží
Obývací pokoj s kuchyňským koutem (45 m2) tvoří přirozené centrum domu. Přímý vstup na terasu rozšiřuje obytný prostor o venkovní zázemí pro relaxaci a setkávání.
Dále zde naleznete ložnici, pracovnu, koupelnu s WC, spíž a vstupní část s napojením na garáž.

2. nadzemní podlaží
Dvě prostorné místnosti, druhá koupelna a velká centrální chodba s možností dalšího využití (herna, pracovna, relaxační zóna).


Základní údaje

dispozice: 5+kk
užitná plocha: 197 m2
pozemek: 261 m2
terasa
garáž + další parkovací stání
2 koupelny
podlahové topení
obecní voda + studna na zalévání


Lokalita, která si drží hodnotu

Praha 8 - Ďáblice dlouhodobě patří mezi vyhledávané rezidenční části díky kombinaci klidného prostředí, zeleně a výborné dostupnosti do centra města. Kompletní občanská vybavenost je samozřejmostí.
Nemovitost představuje vyváženou kombinaci prostoru, parkování a venkovního zázemí v rámci hlavního města - což jsou parametry, které zásadně ovlivňují dlouhodobou hodnotu nemovitosti.

Ukazatel energetické náročnosti: G* (údaj PENB bude aktualizován).

Parametry domu

Cena
15 995 900 Kč /za nemovitost Spočítat hypotéku
Aktualizováno
4. 3. 2026
Adresa
Květnová, Praha, Ďáblice
ID
0426P
Stavba
Cihlová
Stav objektu
Velmi dobrý
Druh objektu
V bloku
Užitná plocha
197 m2
Zastavěná plocha
137 m2
Podlahová plocha
197 m2
Plocha pozemku
261 m2
Odpad
Veřejná kanalizace
Topení
Lokální plynové
Doprava
MHD
Topné těleso
Podlahové vytápění, Radiátory
Zdroj topení
Plynový kotel
Zdroj teplé vody
Plynový kotel
Garáž
Bezbarierový přístup
Parkování

Kontaktovat makléře

Realitní kancelář

Bohemia reality

Anny Letenské 34/7, Praha 2

Chystáte se prodat nemovitost?
Pomůžeme Vám!

Máte zájem o tento dům?

Tímto, v souladu s nařízením Evropského parlamentu a Rady (EU) 2016/679, v platném znění, prohlašuji, že mi je alespoň 16 let a uděluji tak svůj souhlas se zpracováním zadaných údajů (jméno, telefon, e-mail, ip adresa) společnosti B3 Technology, s.r.o., IČ: 07330600, se sídlem Novostavby 126/23, 435 11 Lom (správce dat), za účelem předání dotazu z tohoto formuláře Vámi vybranému inzerentovi a zpětného kontaktování mé osoby. Osobní údaje bude správce zpracovávat manuálně i automaticky přímo prostřednictvím svých zaměstnanců. Informace předané tímto formulářem budou uloženy v databázi správce maximálně po dobu 10 let. Odvolání souhlasu s uložením a zpracováním poskytnutých dat lze e-mailem na info@bydlisnami.cz. V případě podezření na neoprávněné použití Vámi poskytnutých údajů máte právo předat podnět k šetření Úřadu pro ochranu osobních údajů. Více informací
Chystáte se prodat nemovitost?
Pomůžeme Vám!

Inzerát si prohlédlo 0 lidí

Prodejce

Smetana Petr

Smetana Petr

Hlídací pes

Chcete dostávat emailem podobné nabídky prodeje rodinných domů v Praze 8?

Podobné nemovitosti