Pronájem obchodního prostoru, Vyškov - Brňany, Palánek, 252 m2

Palánek, Vyškov, Brňany

30 000 Kč /za měsíc Získejte výhodnou HYPOTÉKU
Doporučené firmy v Vyškově

Pojištění a finance

Informace k nemovitosti

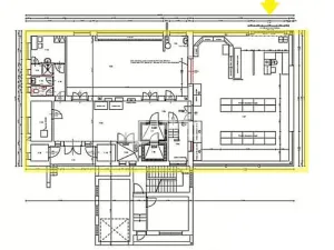
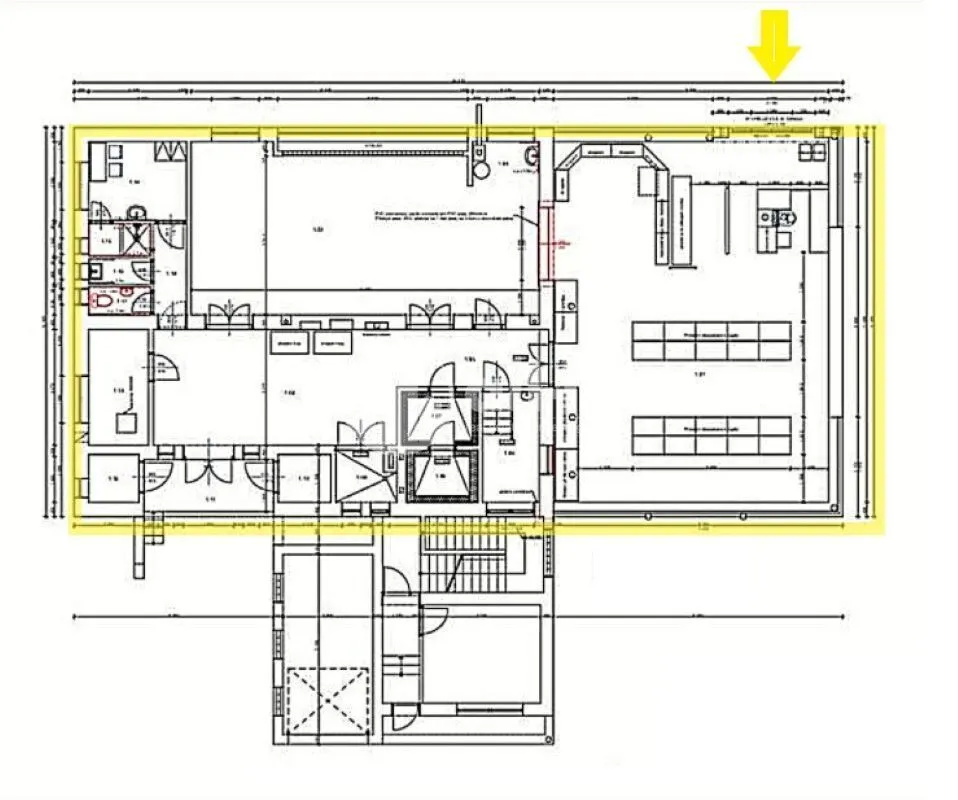
ALLIN-REALITY.CZ v exkluzivním zastoupení nabízí k pronájmu komerční prostor v 1.NP o velikosti 252 m2 ve Vyškove, na ulici Palánek.
Tento obchodí nebytový prostor dříve sloužil jako prodejna potravin, ale využití má široké spektrum dle předmětu podnikání nájemce.
Měsíční nájemné 30 000 Kč + platba za energie + provize RK 1 měsíční nájem.
Nabízený komerční prostor má zajištěné pohodlné zásobování, sociální zázemí, sklady.
Výborná je i poloha nemovitosti, pár minut od centra města v obytné zóně, která zajištuje dostatek případných zákazníků.
Parkování před domem na obecní komunikaci.
Nemovitost je ihned k dispozici.
Na prohlídku nemovitosti kontaktujte makléře zakázky.
PENB nebyl dodán, dočasně uvedena třída G.

Parametry nemovitosti

Cena
30 000 Kč /za měsíc
Aktualizováno
4. 5. 2026
Adresa
Palánek, Vyškov, Brňany
ID
2026-02-23
Stavba
Cihlová
Stav objektu
Dobrý
Patro
1. z 2
Typ objektu
Patrový
Lokalita objektu
Centrum obce
Užitná plocha
252 m2
Třída energetické náročnosti
G - Mimořádně nehospodárná
Elektřina
230V
Plyn
Plynovod
Odpad
Veřejná kanalizace
Topení
Lokální plynové
Komunikace
Asfaltová
Doprava
Dálnice, Silnice, MHD, Autobus
Voda
Vodovod
Výtah
Bezbarierový přístup

Kontaktovat makléře

Máte zájem o tuto nemovistost?

Tímto, v souladu s nařízením Evropského parlamentu a Rady (EU) 2016/679, v platném znění, prohlašuji, že mi je alespoň 16 let a uděluji tak svůj souhlas se zpracováním zadaných údajů (jméno, telefon, e-mail, ip adresa) společnosti B3 Technology, s.r.o., IČ: 07330600, se sídlem Novostavby 126/23, 435 11 Lom (správce dat), za účelem předání dotazu z tohoto formuláře Vámi vybranému inzerentovi a zpětného kontaktování mé osoby. Osobní údaje bude správce zpracovávat manuálně i automaticky přímo prostřednictvím svých zaměstnanců. Informace předané tímto formulářem budou uloženy v databázi správce maximálně po dobu 10 let. Odvolání souhlasu s uložením a zpracováním poskytnutých dat lze e-mailem na info@bydlisnami.cz. V případě podezření na neoprávněné použití Vámi poskytnutých údajů máte právo předat podnět k šetření Úřadu pro ochranu osobních údajů. Více informací
Chystáte se prodat nemovitost?
Pomůžeme Vám!
Theleadway banner

Inzerát si prohlédlo 8 lidí

Prodejce

Kateřina Sedláčková

Kateřina Sedláčková

Hlídací pes

Chcete dostávat emailem podobné nabídky pronájmu obchodních prostor v Vyškově?

Podobné nemovitosti