Soccer reality

Pronájem bytu 2+kk, Praha - Libeň, Českomoravská, 59 m2

Českomoravská, Praha 9

Rezervováno
22 500 Kč /za měsíc Získejte výhodnou HYPOTÉKU
Doporučené firmy v Praze 9

Stěhovací služby

Výkup a prodej starého nábytku

Informace k bytu

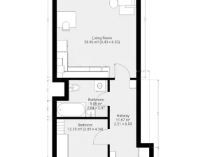
Exkluzivně nabízíme k dlouhodobému pronájmu velmi příjemný a slunný byt o dispozici 2+kk a celkové ploše 59 m² s terasou 6 m², který se nachází v 5. nadzemním podlaží moderního bytového domu s výtahem v ulici Českomoravská.
Byt je plně vybaven a díky promyšlenému dispozičnímu řešení nabízí komfortní bydlení s dostatkem úložných prostor.

DISPOZICE BYTU
Dominantou bytu je světlý obývací pokoj s kuchyňským koutem a jídelní částí o velikosti téměř 30 m², který poskytuje příjemný prostor pro každodenní život i setkávání s přáteli.
Z obývacího pokoje je vstup na terasu o velikosti 6 m², kde si můžete vychutnat ranní kávu nebo večerní odpočinek.
Samostatná ložnice je orientována do klidného vnitrobloku, což zajišťuje příjemné a ničím nerušené spaní.
Koupelna je vybavena vanou a pračkou.

VYBAVENÍ BYTU
Byt je plně vybaven a připraven k okamžitému nastěhování.
Součástí vybavení je zejména:
- vestavěná kuchyňská linka
- varná deska
- trouba
- lednice s mrazákem
- myčka nádobí
- pračka
- vestavěné skříně ve vstupní hale
- vestavěné skříně v ložnici

PARKOVÁNÍ
Parkování je možné na soukromém pozemku za bytovým domem. Parkovací místa nejsou vyhrazena a jsou k dispozici dle aktuální obsazenosti.

LOKALITA
Byt se nachází ve velmi dobře dostupné části Prahy – Libeň / Českomoravská, která nabízí výbornou občanskou vybavenost i dopravní dostupnost.

V docházkové vzdálenosti najdete:
- metro B – stanice Českomoravská
- tramvajové a autobusové zastávky
- Galerii Harfa – nákupní centrum s restauracemi a službami
- O2 arenu a O2 universum – sportovní a kulturní centrum
- fitness centra, kavárny a restaurace

V blízkosti bytu se nachází oblíbený Park Podviní, ideální místo pro procházky, sport i odpočinek v zeleni u říčky Rokytky.

PODMÍNKY NÁJEMNÍ SMLOUVY
Měsíční nájemné: 22.500,- Kč
Poplatky: 3.600,- Kč / měsíc
Elektřina: 800,- Kč / 1 osobu nebo 1.300, - Kč / 2 osoby
Internet: v ceně nájmu
Kauce: 36.000,- Kč
Provize RK: 1 měsíční nájem + DPH

Těšíme se na Vás na prohlídce. Pronajímající si vyhrazuje právo vybrat nájemce na základě jím zvolených kritérií.

Parametry bytu

Stav
Rezervováno
Cena
22 500 Kč /za měsíc
Aktualizováno
23. 4. 2026
Adresa
Českomoravská, Praha 9
ID
320-NP00270
Stavba
Smíšená
Stav objektu
Velmi dobrý
Patro
5. z 8
Vybaveno
Ano
Lokalita objektu
Centrum obce
Vlastnictví
Osobní
Užitná plocha
59 m2
Podlahová plocha
65 m2
Třída energetické náročnosti
G - Mimořádně nehospodárná
Plyn
Plynovod
Odpad
Veřejná kanalizace
Telekomunikace
Internet
Terasa
Výtah

Kontaktovat makléře

Máte zájem o tento byt?

Tímto, v souladu s nařízením Evropského parlamentu a Rady (EU) 2016/679, v platném znění, prohlašuji, že mi je alespoň 16 let a uděluji tak svůj souhlas se zpracováním zadaných údajů (jméno, telefon, e-mail, ip adresa) společnosti B3 Technology, s.r.o., IČ: 07330600, se sídlem Novostavby 126/23, 435 11 Lom (správce dat), za účelem předání dotazu z tohoto formuláře Vámi vybranému inzerentovi a zpětného kontaktování mé osoby. Osobní údaje bude správce zpracovávat manuálně i automaticky přímo prostřednictvím svých zaměstnanců. Informace předané tímto formulářem budou uloženy v databázi správce maximálně po dobu 10 let. Odvolání souhlasu s uložením a zpracováním poskytnutých dat lze e-mailem na info@bydlisnami.cz. V případě podezření na neoprávněné použití Vámi poskytnutých údajů máte právo předat podnět k šetření Úřadu pro ochranu osobních údajů. Více informací
Chystáte se prodat nemovitost?
Pomůžeme Vám!

Inzerát si prohlédlo 4 lidí

Prodejce

Mgr. Marie Gűtlová

Mgr. Marie Gűtlová

Hlídací pes

Chcete dostávat emailem podobné nabídky pronájmu bytů 2+kk v Praze 9?

Podobné nemovitosti