Pronájem garážového stání, Varnsdorf, Karlova, 120 m2 (ID: 2571349)

Karlova, Varnsdorf

4 000 Kč /za měsíc Získejte výhodnou HYPOTÉKU
Doporučené firmy v Varnsdorfu

Okna a dveře

Rekonstrukce

Informace k nemovitosti

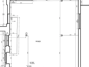
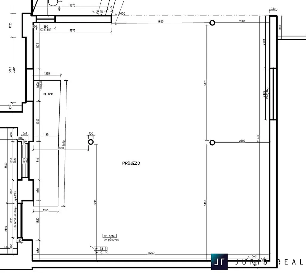
Nabízíme k dlouhodobému pronájmu kryté parkovací stání v ulici Karlova, Varnsdorf. Pod přístřešek se vejde až 6 aut. Zdi jsou cihlové, střecha plechová. Přesné rozměry a umístění sloupků viz. přiložený plánek s výměrou, výška cca 5 metrů. Parkovací stání je umístěno v oploceném areálu, kde se nacházejí výrobní a skladovací prostory.

Parametry nemovitosti

Cena
4 000 Kč /za měsíc
Aktualizováno
12. 3. 2026
Adresa
Karlova, Varnsdorf
ID
202056
Stavba
Cihlová
Stav objektu
Dobrý
Užitná plocha
120 m2

Kontaktovat makléře

Máte zájem o tuto nemovistost?

Tímto, v souladu s nařízením Evropského parlamentu a Rady (EU) 2016/679, v platném znění, prohlašuji, že mi je alespoň 16 let a uděluji tak svůj souhlas se zpracováním zadaných údajů (jméno, telefon, e-mail, ip adresa) společnosti B3 Technology, s.r.o., IČ: 07330600, se sídlem Novostavby 126/23, 435 11 Lom (správce dat), za účelem předání dotazu z tohoto formuláře Vámi vybranému inzerentovi a zpětného kontaktování mé osoby. Osobní údaje bude správce zpracovávat manuálně i automaticky přímo prostřednictvím svých zaměstnanců. Informace předané tímto formulářem budou uloženy v databázi správce maximálně po dobu 10 let. Odvolání souhlasu s uložením a zpracováním poskytnutých dat lze e-mailem na info@bydlisnami.cz. V případě podezření na neoprávněné použití Vámi poskytnutých údajů máte právo předat podnět k šetření Úřadu pro ochranu osobních údajů. Více informací
Chystáte se prodat nemovitost?
Pomůžeme Vám!

Inzerát si prohlédlo 0 lidí

Prodejce

Martin Vlček

Martin Vlček

Hlídací pes

Chcete dostávat emailem podobné nabídky pronájmu garážových stání v Varnsdorfu?

Podobné nemovitosti