Pronájem bytu 2+kk, Praha - Ďáblice, Oldřichovská, 49 m2

Oldřichovská, Praha 8

21 000 Kč /za měsíc Získejte výhodnou HYPOTÉKU

(+ energie)

Doporučené firmy v Praze 8

Stěhovací služby

Výkup a prodej starého nábytku

Informace k bytu

Nabízím k pronájmu byt 2+kk s balkonem a vnitřním parkovacím místem v lokalitě Oldřichovská, Praha – Ďáblice. Dům na klidném místě, volné od konce března.

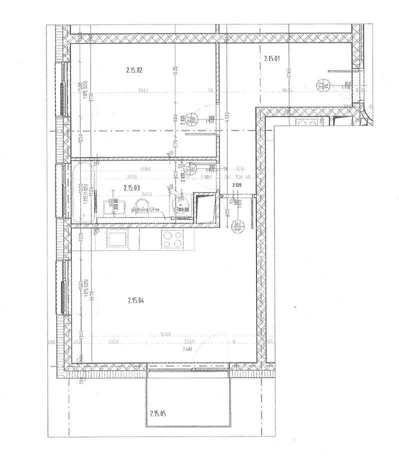
Dispozice bytu ve 2. NP: vstupní chodba se šatní skříní, koupelna s vanou, pračkou a WC, ložnice, obývací pokoj s kuchyňským koutem a vstupem na balkon. K bytu patří sklepní koje a vnitřní parkovací stání.

Nájemné 21.000,-Kč + zálohy na služby 3.900,-Kč (teplo, voda, úklid a elektřina na chodbě, výtah, odpadky, revize. Bude upřesněno podle počtu lidí). Vlastní spotřeba elektřiny, přepisuje se na nájemníka (předpoklad 1.000,-Kč). Vratná kauce 25.000,-Kč, poplatek RK 20.000,-Kč. Byt je určen pro nekuřáky, maximálně dva lidi (bez exekucí), ideálně dlouhodobě.

Kuchyňská linka včetně vestavných spotřebičů: el. trouba s varnou deskou, digestoř, myčka.

Lokalita má napojení na dálnici D8, která spojuje severní část Prahy Libereckou a Argentinskou ulicí s centrem města. Autobusem jste za 7 minut u metro C Ládví, dále na Kobylisy a pak do centra Prahy. Případně na druhou stranu, tedy metro Střížkov, Prosek nebo Letňany. Více informací na níže uvedeném telefonu.

Parametry bytu

Cena
21 000 Kč /za měsíc
Poznámka k ceně
+ energie
Aktualizováno
12. 3. 2026
Adresa
Oldřichovská, Praha 8
ID
19103
Stavba
Smíšená
Stav objektu
Velmi dobrý
Patro
2. z 5
Vybaveno
Ne
Lokalita objektu
Klidná část obce
Vlastnictví
Osobní
Užitná plocha
49 m2
Podlahová plocha
49 m2
Třída energetické náročnosti
C - Úsporná
Plyn
Plynovod
Odpad
Veřejná kanalizace
Voda
Vodovod
Balkon
Garáž
Výtah

Kontaktovat makléře

Realitní kancelář

Logo QARA, s.r.o.

QARA, s.r.o.

Šafaříkova 201/17, Praha

Chystáte se prodat nemovitost?
Pomůžeme Vám!

Máte zájem o tento byt?

Tímto, v souladu s nařízením Evropského parlamentu a Rady (EU) 2016/679, v platném znění, prohlašuji, že mi je alespoň 16 let a uděluji tak svůj souhlas se zpracováním zadaných údajů (jméno, telefon, e-mail, ip adresa) společnosti B3 Technology, s.r.o., IČ: 07330600, se sídlem Novostavby 126/23, 435 11 Lom (správce dat), za účelem předání dotazu z tohoto formuláře Vámi vybranému inzerentovi a zpětného kontaktování mé osoby. Osobní údaje bude správce zpracovávat manuálně i automaticky přímo prostřednictvím svých zaměstnanců. Informace předané tímto formulářem budou uloženy v databázi správce maximálně po dobu 10 let. Odvolání souhlasu s uložením a zpracováním poskytnutých dat lze e-mailem na info@bydlisnami.cz. V případě podezření na neoprávněné použití Vámi poskytnutých údajů máte právo předat podnět k šetření Úřadu pro ochranu osobních údajů. Více informací
Chystáte se prodat nemovitost?
Pomůžeme Vám!

Inzerát si prohlédlo 1 lidí

Prodejce

Jan Mistoler

Jan Mistoler

Hlídací pes

Chcete dostávat emailem podobné nabídky pronájmu bytů 2+kk v Praze 8?

Podobné nemovitosti