Pronájem bytu 3+1, Brno, Tůmova, 89 m2

Tůmova, Brno

29 500 Kč /za měsíc Získejte výhodnou HYPOTÉKU

(+ 3000,- služby / 1 osoba měsíčně)

Doporučené firmy v Brně

Informace k bytu

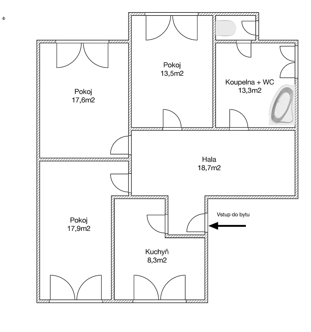
Nabízíme k pronájmu velmi prostorný a světlý byt s parkovacím místem v garáži. Dispozice bytu je 3+1 a celková plocha 89 m². Tento nádherný a prostorný byt se nachází ve 2. nadzemním podlaží bytového domu v jedné z nejvyhledávanějších brněnských lokalit – Masarykově čtvrti, na ulici Tůmova.

Byt zaujme především svou velkorysou dispozicí a příjemnou atmosférou. Dominantou bytu je prostorná a světlá kuchyně vybavená veškerými spotřebiči, která nabízí dostatek prostoru nejen pro vaření, ale i pro pohodlné stolování. Pokoje jsou aktuálně řešeny jako průchozí, nicméně po menší úpravě mohou být plně neprůchozí, což umožňuje flexibilní využití dispozice podle potřeb nájemníků.
Koupelna působí velmi útulně a nabízí příjemný výhled do okolní zeleně.

Velkou výhodou je možnost garážového stání a také možnost využívat zahradu u domu, která nabízí příjemné místo pro posezení, relaxaci či grilování.

Masarykova čtvrť patří mezi nejprestižnější a nejkrásnější rezidenční oblasti Brna. Lokalita je charakteristická množstvím zeleně, vilovou zástavbou a velmi klidnou atmosférou, přesto s výbornou dostupností do centra města. V bezprostřední blízkosti domu se nachází krásný park, hvězdárna, vnitřní i venkovní plavecký bazén a další sportovní i volnočasová zařízení.

V docházkové vzdálenosti najdete také kavárny, restaurace, školy, školky, poštu i další služby potřebné pro pohodlné městské bydlení. Zastávka MHD je vzdálena přibližně 4 minuty chůze. Parkování je bezproblémové také v okolí domu.

Tento byt doporučujeme všem, kteří hledají prostorné městské bydlení v jedinečné lokalitě s atmosférou klidné vilové čtvrti a zároveň s výbornou dostupností do centra.

Pro více informací nebo sjednání prohlídky nás neváhejte kontaktovat.

Parametry bytu

Cena
29 500 Kč /za měsíc
Poznámka k ceně
+ 3000,- služby / 1 osoba měsíčně
Aktualizováno
13. 3. 2026
Adresa
Tůmova, Brno
ID
26031201
Stavba
Cihlová
Stav objektu
Velmi dobrý
Patro
2.
Vlastnictví
Osobní
Užitná plocha
89 m2
Parkování

Kontaktovat makléře

Realitní kancelář

VIP reality

Červený kopec 824/24, Brno

Chystáte se prodat nemovitost?
Pomůžeme Vám!

Máte zájem o tento byt?

Tímto, v souladu s nařízením Evropského parlamentu a Rady (EU) 2016/679, v platném znění, prohlašuji, že mi je alespoň 16 let a uděluji tak svůj souhlas se zpracováním zadaných údajů (jméno, telefon, e-mail, ip adresa) společnosti B3 Technology, s.r.o., IČ: 07330600, se sídlem Novostavby 126/23, 435 11 Lom (správce dat), za účelem předání dotazu z tohoto formuláře Vámi vybranému inzerentovi a zpětného kontaktování mé osoby. Osobní údaje bude správce zpracovávat manuálně i automaticky přímo prostřednictvím svých zaměstnanců. Informace předané tímto formulářem budou uloženy v databázi správce maximálně po dobu 10 let. Odvolání souhlasu s uložením a zpracováním poskytnutých dat lze e-mailem na info@bydlisnami.cz. V případě podezření na neoprávněné použití Vámi poskytnutých údajů máte právo předat podnět k šetření Úřadu pro ochranu osobních údajů. Více informací
Chystáte se prodat nemovitost?
Pomůžeme Vám!

Inzerát si prohlédlo 1 lidí

Prodejce

Ilona Peňázová

Ilona Peňázová

Hlídací pes

Chcete dostávat emailem podobné nabídky pronájmu bytů 3+1 v Brně?

Podobné nemovitosti