Soccer reality

Pronájem bytu 2+kk, Praha - Horní Počernice, Pavlišovská, 56 m2 (ID: 2572669)

Pavlišovská, Praha, Horní Počernice

20 500 Kč /za měsíc Získejte výhodnou HYPOTÉKU
Doporučené firmy v Praze 9

Stěhovací služby

Výkup a prodej starého nábytku

Informace k bytu

Ihned k nastěhování. Nabízíme k pronájmu kompletně zrekonstruovaný byt 2+kk s nadstandardně velkou zasklenou lodžií (11 m²) a dechberoucím výhledem, situovaný v 8. patře (z 9) revitalizovaného panelového domu v klidné části Prahy 9 – Horní Počernice, ul. Pavlišovská.

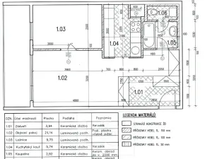
Byt o celkové ploše 45 m² prošel v posledních letech kompletní rekonstrukcí s důrazem na praktické řešení a dostatek úložných prostor. Dispozice bytu nabízí vstupní předsíň s vestavěnými skříněmi, koupelnu s vanou, samostatné WC s pračkou a světlý obývací pokoj s kuchyňským koutem. Kuchyň je vybavena myčkou na nádobí (60cm), pečicí a mikrovlnnou troubou a lednicí. Z obývací části je vstup do ložnice.

Velkou předností bytu je prostorná lodžie o hloubce 1,9 m, která se táhne podél obou obytných místností. Díky zasklení a zastínění je lodžie využitelná téměř po celý rok a nabízí široké možnosti relaxace i praktického využití. Zároveň je byt velmi energeticky nenáročný, i vzhledem k zateplení a kvalitním trojsklům.

Movité vybavení z fotografií může po dohodě zůstat.

Poplatky pro 2 osoby činí 3.500 Kč / měsíc (včetně internetu a pojištění) + spotřeba elektrické energie, která bude převedena na nájemce.

V domě je k dispozici společná sušárna a kočárkárna / kolárna.

Pozor, velkou výhodou pro potenciální nájemce je, že byt je v profesionální správě společnosti Bohemian Estates, jenž správu pro majitele tohoto bytu vykonává. Nájemci je k dispozici kontaktní osoba, která řeší veškeré záležitosti s nájmem spojené (údržba, platby nájemného, vyúčtování, dodatky, a pod.). Nájemci je tak zajištěno bezproblémové užívání bytu s kompletním servisem.

V případě zájmu o tuto nemovitost prosíme o uvedení základních informací (zda Vám vyhovuje počátek nájmu; počet osob, které by byt obývaly, zaměstnání, zda máte domácího mazlíčka).

Dle požadavků majitele musí mít nájemce trvalý pobyt v ČR a rejstřík exekucí/trestů/insolvencí bez záznamu. Dlouhodobý pronájem vítán.

Nechcete ztrácet čas? V případě zájmu Vám rád pošlu odkaz na virtuální prohlídku, abyste měli úplnou představu o nabízené nemovitosti (360° prohlídka s možností orientace ve videu dle vašich představ).

Parametry bytu

Cena
20 500 Kč /za měsíc
Aktualizováno
13. 3. 2026
Adresa
Pavlišovská, Praha, Horní Počernice
ID
N08965
Stavba
Panelová
Stav objektu
Velmi dobrý
Patro
8. z 9
Vlastnictví
Osobní
Užitná plocha
56 m2
Třída energetické náročnosti
B - Velmi úsporná
Ukazatel energetické náročnosti
95 kWh/m2 za rok
Lodžie

Kontaktovat makléře

Máte zájem o tento byt?

Tímto, v souladu s nařízením Evropského parlamentu a Rady (EU) 2016/679, v platném znění, prohlašuji, že mi je alespoň 16 let a uděluji tak svůj souhlas se zpracováním zadaných údajů (jméno, telefon, e-mail, ip adresa) společnosti B3 Technology, s.r.o., IČ: 07330600, se sídlem Novostavby 126/23, 435 11 Lom (správce dat), za účelem předání dotazu z tohoto formuláře Vámi vybranému inzerentovi a zpětného kontaktování mé osoby. Osobní údaje bude správce zpracovávat manuálně i automaticky přímo prostřednictvím svých zaměstnanců. Informace předané tímto formulářem budou uloženy v databázi správce maximálně po dobu 10 let. Odvolání souhlasu s uložením a zpracováním poskytnutých dat lze e-mailem na info@bydlisnami.cz. V případě podezření na neoprávněné použití Vámi poskytnutých údajů máte právo předat podnět k šetření Úřadu pro ochranu osobních údajů. Více informací
Chystáte se prodat nemovitost?
Pomůžeme Vám!

Inzerát si prohlédlo 0 lidí

Prodejce

Bc. Robert Poppl

Bc. Robert Poppl

Hlídací pes

Chcete dostávat emailem podobné nabídky pronájmu bytů 2+kk v Praze 9?

Podobné nemovitosti