Pronájem bytu 2+kk, Praha, Devonská, 44 m2

Devonská, Praha

20 000 Kč /za měsíc Získejte výhodnou HYPOTÉKU

(vratná jistota Kč, náklady na bydlení 5.850Kč, poplatek za podnájem)

Doporučené firmy v Praze

Stěhovací služby

Výkup a prodej starého nábytku

Informace k bytu

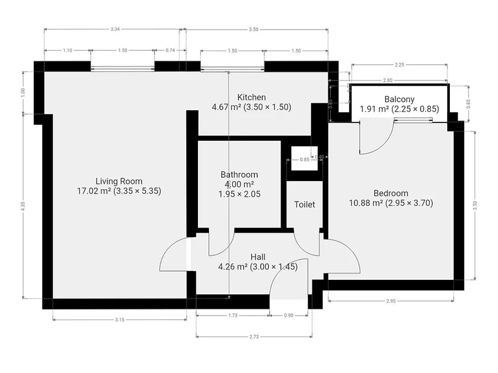
Nabízíme k podnájmu světlý a velmi příjemný byt o dispozici 2+kk, který se nachází ve 4. patře domu s výtahem. Byt je situován v klidné a vyhledávané lokalitě Barrandov, konkrétně v ulici Devonská, která nabízí dobré možnosti parkování.

Byt je částečně vybavený a připravený k nastěhování. Kuchyň je zařízena spotřebiči – k dispozici je lednice, myčka nádobí, elektrická trouba, elektrická varná deska s digestoří.
Oba pokoje jsou nevybavené a nabízí tak možnost si byt zařídit dle vlastního vkusu a uvážení. Přístup na balkon je z jednoho pokoje. Koupelna je vybavena vanou a koupelnovou skříňkou, umístěnou nad umyvadlem. Toaleta se nachází odděleně. Na chodbě bytu se nachází praktický úložný prostor, který ocení každý nájemce.


Byt je velmi světlý. Je umístěn v klidné lokalitě, která je ideální pro ty, kteří si chtějí po práci odpočinout. V okolí se nachází kompletní občanská vybavenost – supermarkety, restaurace, lékárna, školy a školky. Výhodou je také blízkost přírodního parku Prokopské údolí a velmi dobrá dostupnost MHD (tramvajová zastávka Geologická)


Byt je k dispozici ihned.

Energetická třída: G (průkaz nedodán).

Parametry bytu

Cena
20 000 Kč /za měsíc
Poznámka k ceně
vratná jistota Kč, náklady na bydlení 5.850Kč, poplatek za podnájem
Aktualizováno
13. 3. 2026
Adresa
Devonská, Praha
ID
N7432
Stavba
Cihlová
Stav objektu
Velmi dobrý
Patro
3. z 5
Vybaveno
Částečně
Typ objektu
Patrový
Vlastnictví
Osobní
Užitná plocha
44 m2
Podlahová plocha
44 m2
Elektřina
230V
Topení
Ústřední elektrické
Balkon
Sklep
Výtah

Kontaktovat makléře

Máte zájem o tento byt?

Tímto, v souladu s nařízením Evropského parlamentu a Rady (EU) 2016/679, v platném znění, prohlašuji, že mi je alespoň 16 let a uděluji tak svůj souhlas se zpracováním zadaných údajů (jméno, telefon, e-mail, ip adresa) společnosti B3 Technology, s.r.o., IČ: 07330600, se sídlem Novostavby 126/23, 435 11 Lom (správce dat), za účelem předání dotazu z tohoto formuláře Vámi vybranému inzerentovi a zpětného kontaktování mé osoby. Osobní údaje bude správce zpracovávat manuálně i automaticky přímo prostřednictvím svých zaměstnanců. Informace předané tímto formulářem budou uloženy v databázi správce maximálně po dobu 10 let. Odvolání souhlasu s uložením a zpracováním poskytnutých dat lze e-mailem na info@bydlisnami.cz. V případě podezření na neoprávněné použití Vámi poskytnutých údajů máte právo předat podnět k šetření Úřadu pro ochranu osobních údajů. Více informací
Chystáte se prodat nemovitost?
Pomůžeme Vám!

Inzerát si prohlédlo 0 lidí

Prodejce

Miloslava Kačerová

Miloslava Kačerová

Hlídací pes

Chcete dostávat emailem podobné nabídky pronájmu bytů 2+kk v Praze?

Podobné nemovitosti