Pronájem bytu 2+kk, Praha, Pujmanové, 40 m2

Pujmanové, Praha 4 - Podolí, okres Praha

19 700 Kč /za měsíc Získejte výhodnou HYPOTÉKU

(včetně provize RK)

Doporučené firmy v Praze 4

Stěhovací služby

Výkup a prodej starého nábytku

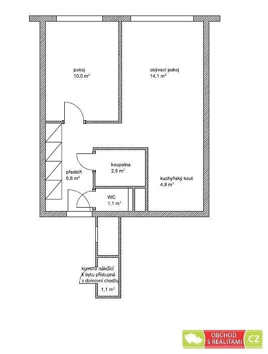
Informace k bytu

Praha 4 / Pankrác, byt 2+KK po úplné rekonstrukci

Bytová jednotka se nachází na adrese Pujmanové 879/31, Praha – Pankrác. 100 metrů od domu Centrální park Pankrác, přes který je možné pokračovat na Kavčí Hory, další oblíbené místo k procházkám! 300 metrů od domu Arkády Pankrác (nákupní centrum) nebo 500 metrů od domu vstup do stanice metra C Pankrác!
Byt prošel úplnou rekonstrukcí, která byla dokončena v roce 2022. Byt je vybavený moderní kuchyňskou linkou (pračka – umístěná v kuchyňské lince – je kombinovaná se sušičkou; v kuchyňské lince se též nachází myčka nádobí), dále vlastník byt dovybaví moderní volně stojící chladničkou. V předsíni se nachází velká vestavěná skříň, okna je možné zastínit žaluziemi, byt je kompletně vybavený moderním LED osvětlením. Přímo u vstupu do bytu se nachází praktická komora (možnost uložení úklidových prostředků apod. ). Byt je určen k dlouhodobému nájmu.
Nájemné činí 19.700 Kč / měsíc. Služby v domě 3.200 Kč / měsíc + spotřeba elektřiny a plynu, které si nájemce hradí samostatně (lze očekávat měsíční náklad v součtu okolo 1.500 Kč za obě energie). K dispozici dva poskytovatelé kabelové televize a internetu. Jistota (kauce) 30.000 Kč, odměna realitní kanceláře 19.700 Kč.

Parametry bytu

Cena
19 700 Kč /za měsíc
Poznámka k ceně
včetně provize RK
Aktualizováno
14. 3. 2026
Adresa
Pujmanové, Praha 4 - Podolí, okres Praha
ID
974654
Stavba
Panelová
Vybaveno
Částečně
Vlastnictví
Osobní
Užitná plocha
40 m2
Třída energetické náročnosti
D - Méně úsporná

Kontaktovat makléře

Máte zájem o tento byt?

Tímto, v souladu s nařízením Evropského parlamentu a Rady (EU) 2016/679, v platném znění, prohlašuji, že mi je alespoň 16 let a uděluji tak svůj souhlas se zpracováním zadaných údajů (jméno, telefon, e-mail, ip adresa) společnosti B3 Technology, s.r.o., IČ: 07330600, se sídlem Novostavby 126/23, 435 11 Lom (správce dat), za účelem předání dotazu z tohoto formuláře Vámi vybranému inzerentovi a zpětného kontaktování mé osoby. Osobní údaje bude správce zpracovávat manuálně i automaticky přímo prostřednictvím svých zaměstnanců. Informace předané tímto formulářem budou uloženy v databázi správce maximálně po dobu 10 let. Odvolání souhlasu s uložením a zpracováním poskytnutých dat lze e-mailem na info@bydlisnami.cz. V případě podezření na neoprávněné použití Vámi poskytnutých údajů máte právo předat podnět k šetření Úřadu pro ochranu osobních údajů. Více informací
Chystáte se prodat nemovitost?
Pomůžeme Vám!

Inzerát si prohlédlo 0 lidí

Prodejce

Michal Kocourek

Michal Kocourek

Hlídací pes

Chcete dostávat emailem podobné nabídky pronájmu bytů 2+kk v Praze 4?

Podobné nemovitosti