Prodej pozemku pro bydlení, Kostelec, 893 m2

Kostelec

2 150 000 Kč /za nemovitost HYPOTÉKA od 9 609 Kč /za měsíc

(Včetně projektu)

Doporučené firmy v Kostelci

Pojištění a finance

Informace k pozemku

Nabídka pozemku VČETNĚ PROJEKTU na výstavbu domu s garáží v Kostelci u Kyjova.
Nabízí se i PŘEVZETÍ HYPOTÉKY s nízkou úrokovou sazbou 2,19 %.
Rovinatý pozemek s orientací sever - jih se nachází na okraji obce, v nově budované zástavbě rodinných domů.
Obdélníkový tvar pozemku o šíři 11 m, délce 80 m a celkové ploše 893 m2 dostačuje pro stavbu domu, garáže a ještě zbyde pro zahradu.
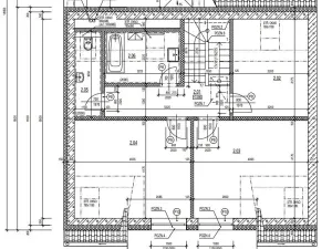
Dle územního plánu je pozemek vhodný pro stavbu přízemního domu s obytným podkrovím a tak je i dům navržen.
Dům bude s dispozicí 5+kk, užitná plocha domu 195 m2, užitná plocha garáže 34 m2.
Je navržena klasická zděná stavba z pórobetonových bloků Ytong, keramická střešní krytina, okna plastová trojkomorová.
Projektová dokumentace je k nahlédnutí a je zahrnuta v ceně.
Inženýrské sítě: přípojka elektřiny je na pozemku, vodovodní řád vede podél komunikace, odpad bude řešen domácí ČOV.
Přístupová cesta je v majetku obce a je částečně zpevněná.
Závazné informace a konzultace projektu poskytne hlavní architekt projektu, Odbor územního plánování a Stavební úřad v Kyjově.
Tento pozemek je ideální pro ty, kteří hledají klidné a příjemné bydlení.
Obec Kostelec je známá svým bohatým společenským životem a udržováním tradic.
Je zde obecní úřad, MŠ i 1.stupeň ZŠ, pošta a obchod se smíšeným zbožím.
Nedaleké pohoří Chřiby vybízí k pěším i cyklistickým výletům.
Vzdálenost do Kyjova, kde je rozšířená občanská vybavenost je pouhé 4km.
Zastihnete mě v kyjovské kanceláři Masarykovo náměstí 7 (v průchodu).
Prodávající si vyhrazuje právo vybrat kupujícího na základě jím zvolených kritérií.

Parametry pozemku

Cena
2 150 000 Kč /za nemovitost Spočítat hypotéku
Poznámka k ceně
Včetně projektu
Aktualizováno
28. 4. 2026
Adresa
Kostelec
ID
0163-NP04239
Lokalita objektu
Okraj obce
Plocha pozemku
893 m2
Komunikace
Zpevněná
Doprava
Silnice, Autobus

Kontaktovat makléře

Máte zájem o tento pozemek?

Tímto, v souladu s nařízením Evropského parlamentu a Rady (EU) 2016/679, v platném znění, prohlašuji, že mi je alespoň 16 let a uděluji tak svůj souhlas se zpracováním zadaných údajů (jméno, telefon, e-mail, ip adresa) společnosti B3 Technology, s.r.o., IČ: 07330600, se sídlem Novostavby 126/23, 435 11 Lom (správce dat), za účelem předání dotazu z tohoto formuláře Vámi vybranému inzerentovi a zpětného kontaktování mé osoby. Osobní údaje bude správce zpracovávat manuálně i automaticky přímo prostřednictvím svých zaměstnanců. Informace předané tímto formulářem budou uloženy v databázi správce maximálně po dobu 10 let. Odvolání souhlasu s uložením a zpracováním poskytnutých dat lze e-mailem na info@bydlisnami.cz. V případě podezření na neoprávněné použití Vámi poskytnutých údajů máte právo předat podnět k šetření Úřadu pro ochranu osobních údajů. Více informací
Chystáte se prodat nemovitost?
Pomůžeme Vám!
Theleadway banner

Inzerát si prohlédlo 4 lidí

Prodejce

Mgr. Veronika Šimečková

Mgr. Veronika Šimečková

Hlídací pes

Chcete dostávat emailem podobné nabídky prodeje pozemků pro bydlení v Kostelci (okr. Hodonín)?

Podobné nemovitosti