Pronájem bytu 2+kk, Znojmo, Jarošova, 45 m2

Jarošova, Znojmo

13 000 Kč /za měsíc Získejte výhodnou HYPOTÉKU

(bez poplatků, + provize RK)

Doporučené firmy v Znojmu

Informace k bytu

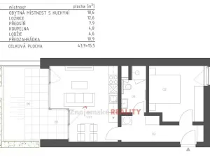
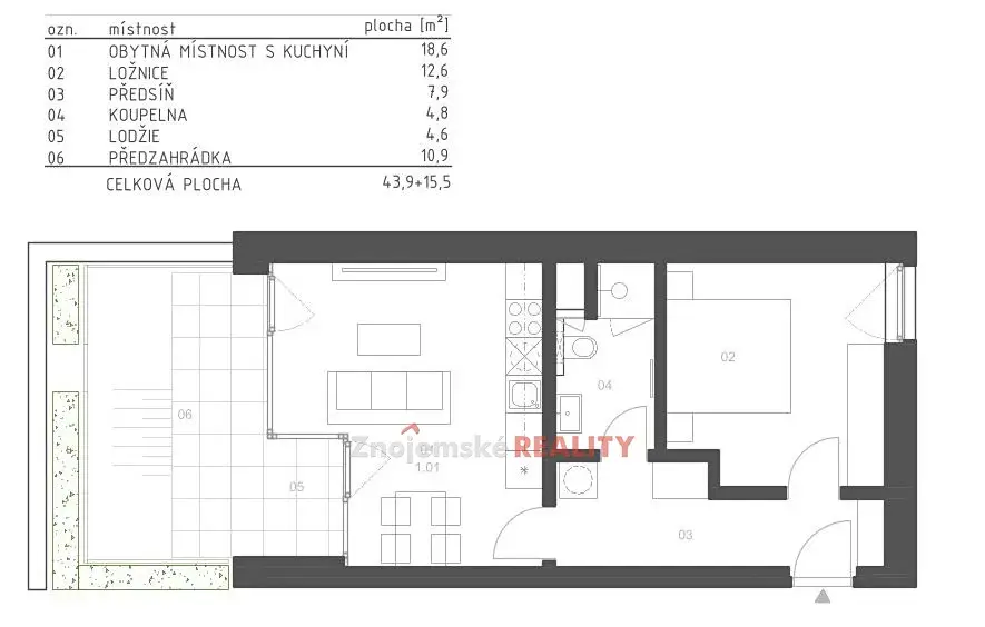
Pronájem moderního bytu 2+kk v Rezidenci Jarošova ve Znojmě nabízí skvělý domov pro pohodlný život. Byt se nachází v 1. NP a disponuje užitnou plochou 45 m². Skládá se ze vstupní chodby, obývacího pokoje s kuchyňským koutem, pokoje a koupelny s WC. Z obývacího pokoje je přímý vstup na terasu na kterou navazuje malá zahrádka. K dispozici je parkovací místo v garáži a sklepní kóje. V bytě naleznete novou kuchyňskou linku, vestavěné skříně a moderní koupelnu se sprchovým koutem. Díky své strategické poloze blízko veškeré občanské vybavenosti je tato nemovitost ideální pro zájemce, kteří hledají komfortní bydlení v klidné části města. Nezmeškejte tuto skvělou příležitost! Měsíční nájemné 13.000,-Kč + energie + kauce + RK. Více informací v RK.

Parametry bytu

Cena
13 000 Kč /za měsíc
Poznámka k ceně
bez poplatků, + provize RK
Aktualizováno
24. 3. 2026
Adresa
Jarošova, Znojmo
ID
3791
Stavba
Cihlová
Stav objektu
Novostavba
Patro
1.
Lokalita objektu
Centrum obce
Vlastnictví
Osobní
Užitná plocha
45 m2
Třída energetické náročnosti
G - Mimořádně nehospodárná
Elektřina
230V
Odpad
Veřejná kanalizace
Komunikace
Betonová, Dlážděná, Asfaltová
Doprava
Vlak, Silnice, MHD, Autobus
Voda
Vodovod
Topné těleso
Podlahové vytápění
Zdroj teplé vody
Elektrokotel
Sklep
Terasa
Parkování

Kontaktovat makléře

Máte zájem o tento byt?

Tímto, v souladu s nařízením Evropského parlamentu a Rady (EU) 2016/679, v platném znění, prohlašuji, že mi je alespoň 16 let a uděluji tak svůj souhlas se zpracováním zadaných údajů (jméno, telefon, e-mail, ip adresa) společnosti B3 Technology, s.r.o., IČ: 07330600, se sídlem Novostavby 126/23, 435 11 Lom (správce dat), za účelem předání dotazu z tohoto formuláře Vámi vybranému inzerentovi a zpětného kontaktování mé osoby. Osobní údaje bude správce zpracovávat manuálně i automaticky přímo prostřednictvím svých zaměstnanců. Informace předané tímto formulářem budou uloženy v databázi správce maximálně po dobu 10 let. Odvolání souhlasu s uložením a zpracováním poskytnutých dat lze e-mailem na info@bydlisnami.cz. V případě podezření na neoprávněné použití Vámi poskytnutých údajů máte právo předat podnět k šetření Úřadu pro ochranu osobních údajů. Více informací
Chystáte se prodat nemovitost?
Pomůžeme Vám!

Inzerát si prohlédlo 1 lidí

Prodejce

Zdeňka Uhlířová

Zdeňka Uhlířová

Hlídací pes

Chcete dostávat emailem podobné nabídky pronájmu bytů 2+kk v Znojmu?

Podobné nemovitosti