Soccer reality

Pronájem bytu 2+kk, Praha - Vysočany, Poděbradská, 49 m2

Poděbradská, Praha, Vysočany

19 000 Kč /za měsíc Získejte výhodnou HYPOTÉKU

(+ 4.422,- služby + elektřina na nájemce, + provize RK)

Doporučené firmy v Praze 9

Stěhovací služby

Výkup a prodej starého nábytku

Informace k bytu

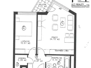
Dovolujeme si Vám nabídnout k dlouhodobému pronájmu pěkný, zařízený byt 2+kk cca 49m2, s velkým balkonem (3m2), ve 3.patře cihlového domu s výtahem na pražské Nové Harfě, Praha 9 Vysočany, ulice Poděbradská,
k bytu náleží vlastní parkovací stání v garážích, v suterénu domu.

Byt je orientovaný do klidného vnitrobloku na severozápad. Dispozičně se skládá z prostorné předsíně, komory, koupelny s vanou, wc a pračkou, dále ložnice a obývací pokoj s kuchyňským koutem, kde je linka, el.varná deska s toubou, digestoř a lednice.
K dispozici moderní nábytek, který je vidět na fotografiích - nelze vyklidit.

Topení i ohřev vody ústřední.

Byt je momentálně pronajatý, k nastěhování od 1.5.2026

Výborná občanská vybavenost i spojení MHD, pár kroků od domu je tramvajová zastávka Kabešova.

Parametry bytu

Cena
19 000 Kč /za měsíc
Poznámka k ceně
+ 4.422,- služby + elektřina na nájemce, + provize RK
Aktualizováno
21. 4. 2026
Adresa
Poděbradská, Praha, Vysočany
ID
IETP838581
Stavba
Skeletová
Stav objektu
Velmi dobrý
Patro
3. z 4
Vybaveno
Ano
Druh objektu
Řadový
Vlastnictví
Osobní
Užitná plocha
49 m2
Podlahová plocha
52 m2
Třída energetické náročnosti
C - Úsporná
Ukazatel energetické náročnosti
1721.8 kWh/m2 za rok
Balkon
Garáž
Výtah
Bezbarierový přístup
Parkování

Kontaktovat makléře

Máte zájem o tento byt?

Tímto, v souladu s nařízením Evropského parlamentu a Rady (EU) 2016/679, v platném znění, prohlašuji, že mi je alespoň 16 let a uděluji tak svůj souhlas se zpracováním zadaných údajů (jméno, telefon, e-mail, ip adresa) společnosti B3 Technology, s.r.o., IČ: 07330600, se sídlem Novostavby 126/23, 435 11 Lom (správce dat), za účelem předání dotazu z tohoto formuláře Vámi vybranému inzerentovi a zpětného kontaktování mé osoby. Osobní údaje bude správce zpracovávat manuálně i automaticky přímo prostřednictvím svých zaměstnanců. Informace předané tímto formulářem budou uloženy v databázi správce maximálně po dobu 10 let. Odvolání souhlasu s uložením a zpracováním poskytnutých dat lze e-mailem na info@bydlisnami.cz. V případě podezření na neoprávněné použití Vámi poskytnutých údajů máte právo předat podnět k šetření Úřadu pro ochranu osobních údajů. Více informací
Chystáte se prodat nemovitost?
Pomůžeme Vám!

Inzerát si prohlédlo 7 lidí

Prodejce

Jitka Horálková

Jitka Horálková

Hlídací pes

Chcete dostávat emailem podobné nabídky pronájmu bytů 2+kk v Praze 9?

Podobné nemovitosti