Pronájem výrobních prostor, Brno - Líšeň, Zaoralova, 1067 m2

Zaoralova, Brno, Líšeň

Cena na vyžádání /za metr čtvereční / měsíc Získejte výhodnou HYPOTÉKU
Doporučené firmy v Brně

Pojištění a finance

Informace k nemovitosti

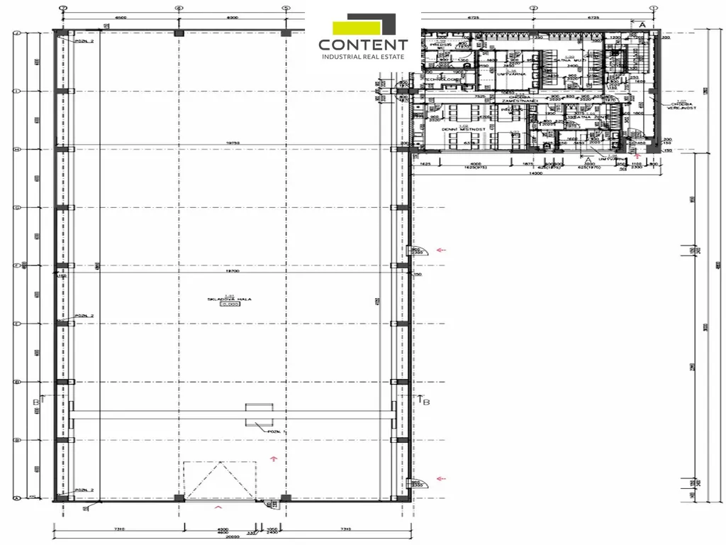
Pronájem výrobních prostor se zázemím v Brně Líšni.
V zastoupení majitele a bez provize nabízíme výrobní prostory umístěně v nově vznikajícím výrobně - logistickém parku v Brně.

- k nastěhování Q4/2026
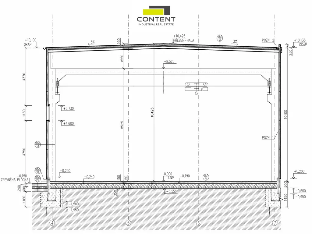
- výrobní hala o půdorysné ploše 1067 m²
- instalované patky na mostový jeřáb o nosnosti 5 tun
- světlá výška 10 m, pojezdová dráha je ve výšce 8 metrů
- bezprašné podlahy s nosností 5t/m²
- 1x Drive IN pro možnost vjezdu nákladních aut do haly
- všechny IS k dispozici
- Dostatečný příkon elektřiny

- kanceláře, showroom a sociální zázemí o celkové velikosti až 480 m²
- vhodné jako sídlo společnosti
- 20 parkovacích míst před halou
- výborná dostupnost pro osobní i nákladní dopravu
- dálnice D1 cca 3km
- MHD a občanská vybavenost je v docházkové vzdálenosti cca. 360 m

Cena je individuální dle konkrétních podmínek smlouvy.
Pro více informací nás kontaktujte.

Parametry nemovitosti

Cena
Cena na vyžádání
Aktualizováno
16. 4. 2026
Adresa
Zaoralova, Brno, Líšeň
ID
N7178
Stavba
Skeletová
Stav objektu
Novostavba
Typ objektu
Přízemní
Lokalita objektu
Rušná část obce
Užitná plocha
1067 m2
Třída energetické náročnosti
C - Úsporná
Parkování

Kontaktovat makléře

Máte zájem o tuto nemovistost?

Tímto, v souladu s nařízením Evropského parlamentu a Rady (EU) 2016/679, v platném znění, prohlašuji, že mi je alespoň 16 let a uděluji tak svůj souhlas se zpracováním zadaných údajů (jméno, telefon, e-mail, ip adresa) společnosti B3 Technology, s.r.o., IČ: 07330600, se sídlem Novostavby 126/23, 435 11 Lom (správce dat), za účelem předání dotazu z tohoto formuláře Vámi vybranému inzerentovi a zpětného kontaktování mé osoby. Osobní údaje bude správce zpracovávat manuálně i automaticky přímo prostřednictvím svých zaměstnanců. Informace předané tímto formulářem budou uloženy v databázi správce maximálně po dobu 10 let. Odvolání souhlasu s uložením a zpracováním poskytnutých dat lze e-mailem na info@bydlisnami.cz. V případě podezření na neoprávněné použití Vámi poskytnutých údajů máte právo předat podnět k šetření Úřadu pro ochranu osobních údajů. Více informací
Chystáte se prodat nemovitost?
Pomůžeme Vám!
Theleadway banner

Inzerát si prohlédlo 2 lidí

Prodejce

Martin Nenička

Martin Nenička

Hlídací pes

Chcete dostávat emailem podobné nabídky pronájmu výrobních prostor v Brně?

Podobné nemovitosti