Pronájem bytu 2+kk, Brno - Židenice, Mrkosova, 41 m2

Mrkosova, Židenice - Brno-Židenice

18 000 Kč /za měsíc Získejte výhodnou HYPOTÉKU

(vratná jistota, náklady na bydlení 3 700 Kč, poplatek za podnájem)

Doporučené firmy v Brně

Informace k bytu

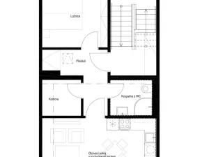
K dlouhodobému podnájmu nabízíme moderní, nově zrekonstruovaný byt o dispozici 2+kk na ulici Mrkosova v oblíbené brněnské městské části Židenice. Byt se nachází v menším domě, ve kterém jsou pouze tři bytové jednotky, což zajišťuje klidnou atmosféru a větší soukromí. Dispozice bytu zahrnuje obytný prostor s kuchyňským koutem, samostatnou ložnici, komoru, chodbu a koupelnu.

Byt je připraven k samostatnému užívání a jeho výhodou jsou individuální měřiče teplé i studené vody a zavedený internet. Kuchyňská linka je vybavena lednicí, elektrickou troubou, varnou deskou a digestoří. V koupelně se nachází sprchový kout, umyvadlo a toaleta. Ostatní část bytu se nabízí jako nezařízená, takže si ji nový podnájemník může vybavit podle vlastních představ.

Velkým benefitem je také samotná lokalita. Byt se nachází v klidném prostředí, ložnice je orientována do vnitrobloku a ostatní místnosti do slepé ulice, což přispívá k příjemnému a tichému bydlení. Nájemníci mohou využívat zahrádku s dvorkem, prostor pro uskladnění kol či kočárku a také společnou pračku. Tramvajová zastávka Buzkova je vzdálena přibližně 100 metrů od domu a na hlavní nádraží se dostanete tramvají zhruba za 8 minut. V okolí najdete restaurace, obchod s potravinami, wellness i workoutové hřiště.

Energetická třída je uvedena jako G, jelikož zatím nemáme k dispozici průkaz energetické náročnosti budovy (PENB).

Byt pronajímá Ideální nájemce – služba, se kterou budete bydlet bezstarostně a za férových podmínek. V případě jakékoli situace jsou k dispozici správci, kteří s Vámi vše vyřeší. Pomůžeme Vám s administrativou, nastavením plateb i zajištěním speciálního pojištění.

Parametry bytu

Cena
18 000 Kč /za měsíc
Poznámka k ceně
vratná jistota, náklady na bydlení 3 700 Kč, poplatek za podnájem
Aktualizováno
7. 4. 2026
Adresa
Mrkosova, Židenice - Brno-Židenice
ID
N4123
Stavba
Cihlová
Stav objektu
Po rekonstrukci
Patro
3. z 3
Vybaveno
Ne
Typ objektu
Patrový
Lokalita objektu
Klidná část obce
Vlastnictví
Osobní
Užitná plocha
41 m2
Podlahová plocha
41 m2
Elektřina
230V
Výtah
Parkování

Kontaktovat makléře

Máte zájem o tento byt?

Tímto, v souladu s nařízením Evropského parlamentu a Rady (EU) 2016/679, v platném znění, prohlašuji, že mi je alespoň 16 let a uděluji tak svůj souhlas se zpracováním zadaných údajů (jméno, telefon, e-mail, ip adresa) společnosti B3 Technology, s.r.o., IČ: 07330600, se sídlem Novostavby 126/23, 435 11 Lom (správce dat), za účelem předání dotazu z tohoto formuláře Vámi vybranému inzerentovi a zpětného kontaktování mé osoby. Osobní údaje bude správce zpracovávat manuálně i automaticky přímo prostřednictvím svých zaměstnanců. Informace předané tímto formulářem budou uloženy v databázi správce maximálně po dobu 10 let. Odvolání souhlasu s uložením a zpracováním poskytnutých dat lze e-mailem na info@bydlisnami.cz. V případě podezření na neoprávněné použití Vámi poskytnutých údajů máte právo předat podnět k šetření Úřadu pro ochranu osobních údajů. Více informací
Chystáte se prodat nemovitost?
Pomůžeme Vám!

Inzerát si prohlédlo 1 lidí

Prodejce

Miloslava Kačerová

Miloslava Kačerová

Hlídací pes

Chcete dostávat emailem podobné nabídky pronájmu bytů 2+kk v Brně?

Podobné nemovitosti