Pronájem skladu, Jirkov, Mostecká, 255 m2

Mostecká, Jirkov

19 125 Kč /za měsíc Získejte výhodnou HYPOTÉKU

(Cena nájmu činní 75kč/m2 jednorázová provize RK činní 30.000,-Kč.)

Doporučené firmy v Jirkově

Okna a dveře

Pojištění a finance

Informace k nemovitosti

Pronájem skladu, 255 m², Jirkov, ul. Mostecká

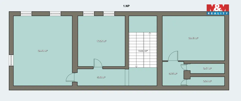
Nabízíme k pronájmu unikátní kombinovaný objekt v hlídaném areálu s přístupem 24/7 a vlastním ovládáním centrální brány. Tento prostor je ideálním řešením pro firmy, které potřebují administrativní zázemí přímo propojené s výrobou či skladem.

Dispozice objektu:

1. patro: Nacházejí se zde 3 samostatné světlé kanceláře (vybavené klimatizací a moderním osvětlením), které doplňuje kompletní sociální zázemí – koupelna se sprchovým koutem a samostatné WC.

Přízemí: Nabízí variabilní prostory s odolnou podlahou, ideální pro lehkou výrobu nebo skladování. Klíčovým benefitem je možnost přímé nakládky z venkovní strany skrze nákladová vrata, což výrazně usnadňuje logistiku.

Celý objekt je v udržovaném stavu, připraven k okamžitému využití v bezpečném a profesionálním prostředí průmyslové zóny. Pokud Vás nabídka zaujala, nevájete nás kontaktovat.

Parametry nemovitosti

Cena
19 125 Kč /za měsíc
Poznámka k ceně
Cena nájmu činní 75kč/m2 jednorázová provize RK činní 30.000,-Kč.
Aktualizováno
7. 5. 2026
Adresa
Mostecká, Jirkov
ID
938295
Stavba
Smíšená
Stav objektu
Dobrý
Vybaveno
Ne
Lokalita objektu
Okraj obce
Vlastnictví
Osobní
Užitná plocha
255 m2

Kontaktovat makléře

Realitní kancelář

Logo M&M reality

M&M reality

ulice Krakovská 583/9, Praha

Chystáte se prodat nemovitost?
Pomůžeme Vám!

Máte zájem o tuto nemovistost?

Tímto, v souladu s nařízením Evropského parlamentu a Rady (EU) 2016/679, v platném znění, prohlašuji, že mi je alespoň 16 let a uděluji tak svůj souhlas se zpracováním zadaných údajů (jméno, telefon, e-mail, ip adresa) společnosti B3 Technology, s.r.o., IČ: 07330600, se sídlem Novostavby 126/23, 435 11 Lom (správce dat), za účelem předání dotazu z tohoto formuláře Vámi vybranému inzerentovi a zpětného kontaktování mé osoby. Osobní údaje bude správce zpracovávat manuálně i automaticky přímo prostřednictvím svých zaměstnanců. Informace předané tímto formulářem budou uloženy v databázi správce maximálně po dobu 10 let. Odvolání souhlasu s uložením a zpracováním poskytnutých dat lze e-mailem na info@bydlisnami.cz. V případě podezření na neoprávněné použití Vámi poskytnutých údajů máte právo předat podnět k šetření Úřadu pro ochranu osobních údajů. Více informací
Chystáte se prodat nemovitost?
Pomůžeme Vám!
Theleadway banner

Inzerát si prohlédlo 6 lidí

Prodejce

Anna Fléglová

Anna Fléglová

Hlídací pes

Chcete dostávat emailem podobné nabídky pronájmu skladů v Jirkově?

Podobné nemovitosti