Soccer reality

Pronájem bytu 1+kk, Praha - Hloubětín, Poděbradská, 33 m2 (ID: 2601866)

Poděbradská, Praha 9 - Hloubětín

19 900 Kč /za měsíc Získejte výhodnou HYPOTÉKU

(včetně DPH, bez poplatků, + provize RK, včetně právního servisu)

Doporučené firmy v Praze 9

Stěhovací služby

Výkup a prodej starého nábytku

Informace k bytu

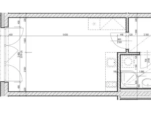
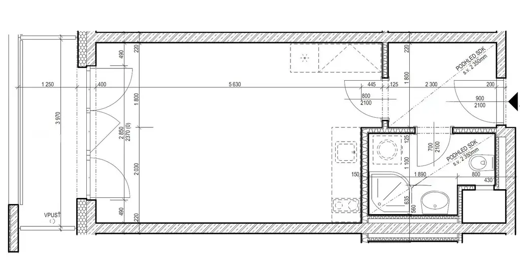
Nový moderní byt 1+kk s balkonem, rekuperací a luxusním vybavením Tesla Hloubětín, Praha 9

Hledáte moderní bydlení v novostavbě s výbornou dostupností do centra? Nabízíme k dlouhodobému pronájmu zcela nový byt 1+kk o velikosti cca 32,9 m² s prostorným balkonem v rezidenčním projektu Tesla Hloubětín, Praha 9.

Byt je kompletně připraven k okamžitému nastěhování – součástí je luxusní rozkládací sedačka s polohovatelnými opěrkami hlavy, vestavěný nábytek a nová pračka se sušičkou, což výrazně zvyšuje komfort bydlení.

Projekt Tesla Hloubětín je součástí proměny této části Prahy z původně industriální oblasti na moderní rezidenční lokalitu s kvalitní architekturou a příjemným prostředím pro život.

Hlavní výhody:
zcela nový byt – budete prvním nájemcem
prostorný balkon
rekuperace (zajišťuje stálý přívod čerstvého vzduchu)
vestavěný nábytek v předsíni
sklepní kóje
bezpečnostní dveře a vstup do domu na čip

️ Vybavení bytu:
moderní kuchyňská linka s vestavěnými spotřebiči
spotřebiče značek Bosch a Electrolux
indukční varná deska, trouba, mikrovlnná trouba, myčka, lednice
nová pračka se sušičkou
luxusní rozkládací sedačka
vestavěná skříň se šuplíky v předsíni

Koupelna:
sprchový kout
umyvadlo, WC
zrcadlo s osvětlením
nová pračka se sušičkou

Komfort a technologie:
rekuperační jednotka pro zdravé vnitřní prostředí
vstup do objektu na mikročip
bezpečnostní vstupní dveře

Parkování:
parkování na ulici v okolí domu
dostatek parkovacích míst

Projekt a okolí:

Součástí projektu je klidný vnitroblok se zelení, parkem a prostorem pro odpočinek. V okolí se nachází obchody, restaurace, služby i sportovní vyžití.

Dopravní dostupnost:

Tramvajová zastávka Hloubětín v bezprostřední blízkosti domu, metro B dostupné během několika minut. Výborné napojení na centrum i hlavní dopravní tahy.

Podmínky:

Nájem: 19 900 Kč / měsíc
Poplatky: cca 2 500 Kč / měsíc (velmi nízké)
Elektřina se převádí na nájemce

Kauce: 2× měsíční nájem
Provize RK: 1× měsíční nájem

Byt je k nastěhování ihned.

Závěr:

Doporučuji prohlídku – byty v tomto projektu jsou velmi žádané a rychle mizí z nabídky.

Parametry bytu

Cena
19 900 Kč /za měsíc
Poznámka k ceně
včetně DPH, bez poplatků, + provize RK, včetně právního servisu
Aktualizováno
10. 4. 2026
Adresa
Poděbradská, Praha 9 - Hloubětín
ID
00068
Stavba
Cihlová
Stav objektu
Novostavba
Vybaveno
Ano
Lokalita objektu
Klidná část obce
Vlastnictví
Osobní
Užitná plocha
33 m2
Třída energetické náročnosti
B - Velmi úsporná
Ukazatel energetické náročnosti
56 kWh/m2 za rok

Kontaktovat makléře

Máte zájem o tento byt?

Tímto, v souladu s nařízením Evropského parlamentu a Rady (EU) 2016/679, v platném znění, prohlašuji, že mi je alespoň 16 let a uděluji tak svůj souhlas se zpracováním zadaných údajů (jméno, telefon, e-mail, ip adresa) společnosti B3 Technology, s.r.o., IČ: 07330600, se sídlem Novostavby 126/23, 435 11 Lom (správce dat), za účelem předání dotazu z tohoto formuláře Vámi vybranému inzerentovi a zpětného kontaktování mé osoby. Osobní údaje bude správce zpracovávat manuálně i automaticky přímo prostřednictvím svých zaměstnanců. Informace předané tímto formulářem budou uloženy v databázi správce maximálně po dobu 10 let. Odvolání souhlasu s uložením a zpracováním poskytnutých dat lze e-mailem na info@bydlisnami.cz. V případě podezření na neoprávněné použití Vámi poskytnutých údajů máte právo předat podnět k šetření Úřadu pro ochranu osobních údajů. Více informací
Chystáte se prodat nemovitost?
Pomůžeme Vám!

Inzerát si prohlédlo 0 lidí

Prodejce

Mia Casa

Mia Casa

Hlídací pes

Chcete dostávat emailem podobné nabídky pronájmu bytů 1+kk v Praze 9?

Podobné nemovitosti