Pronájem garáže, Praha - Modřany, Komořanská, 12 m2

Komořanská, Praha 4, Modřany

1 990 Kč /za měsíc Získejte výhodnou HYPOTÉKU
Doporučené firmy v Praze 4

Stěhovací služby

Výkup a prodej starého nábytku

Informace k nemovitosti

Dovoluji si Vám nabídnout volné garážové stání v ulici Komořanská v pražských Modřanech k pronájmu!

Přístup ke garážovému stání je zajištěn po průjezdu vraty na dálkové ovládání. Vjezd i pohyb v prostoru garáží je velmi pohodlný, zvládne sem vjet i začátečník.

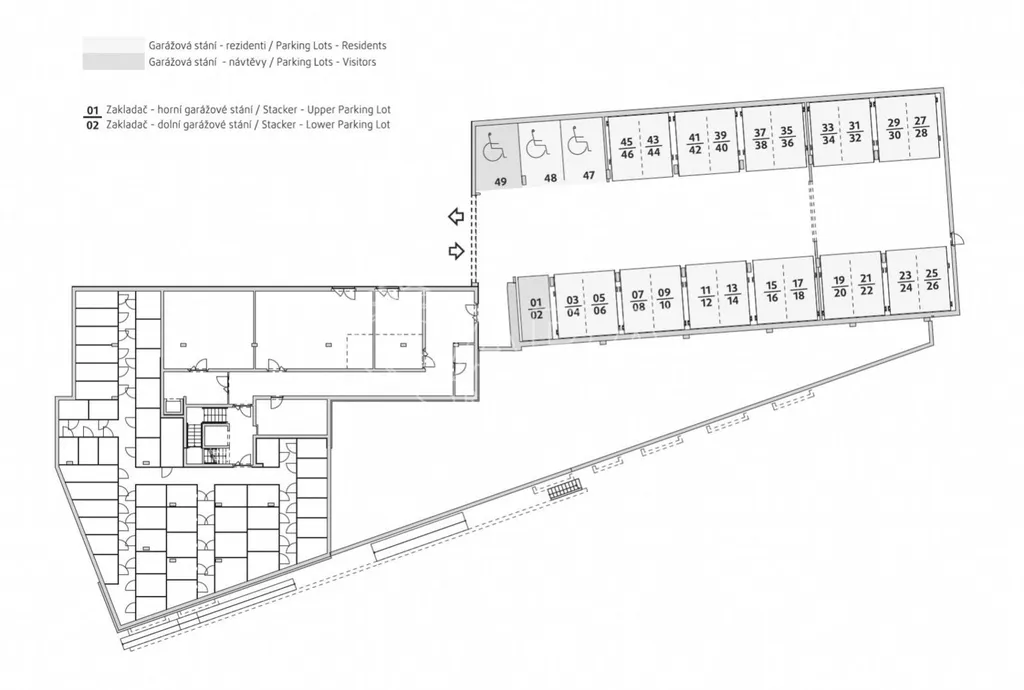
Garáže, v nichž se stání nachází, jsou na adrese Komořanská, v -2.PP. Prostor garáží je rozdělen do zakladačů, aby zde byl maximálně využit prostor. Na toto stání se pohodlně vejde standardně velký automobil.

Měsíční poplatky spojené s užíváním garáže, jako je společná elektrika, úklid a správa činí 550,-Kč/měsíčně. Nájemné včetně služeb a energií činí 2540,- Kč. Upřednostňujeme dlouhodobý pronájem. Kauce je ve výši jednoho měsíčního nájmu.

Volné ihned!

Parametry nemovitosti

Cena
1 990 Kč /za měsíc
Aktualizováno
13. 4. 2026
Adresa
Komořanská, Praha 4, Modřany
ID
13162
Stavba
Panelová
Stav objektu
Novostavba
Typ objektu
Patrový
Druh objektu
Samostatný
Užitná plocha
12 m2
Zastavěná plocha
603 m2
Plocha pozemku
603 m2
Elektřina
230V
Komunikace
Asfaltová
Bezbarierový přístup

Kontaktovat makléře

Realitní kancelář

Logo QARA, s.r.o.

QARA, s.r.o.

Šafaříkova 201/17, Praha

Chystáte se prodat nemovitost?
Pomůžeme Vám!

Máte zájem o tuto nemovistost?

Tímto, v souladu s nařízením Evropského parlamentu a Rady (EU) 2016/679, v platném znění, prohlašuji, že mi je alespoň 16 let a uděluji tak svůj souhlas se zpracováním zadaných údajů (jméno, telefon, e-mail, ip adresa) společnosti B3 Technology, s.r.o., IČ: 07330600, se sídlem Novostavby 126/23, 435 11 Lom (správce dat), za účelem předání dotazu z tohoto formuláře Vámi vybranému inzerentovi a zpětného kontaktování mé osoby. Osobní údaje bude správce zpracovávat manuálně i automaticky přímo prostřednictvím svých zaměstnanců. Informace předané tímto formulářem budou uloženy v databázi správce maximálně po dobu 10 let. Odvolání souhlasu s uložením a zpracováním poskytnutých dat lze e-mailem na info@bydlisnami.cz. V případě podezření na neoprávněné použití Vámi poskytnutých údajů máte právo předat podnět k šetření Úřadu pro ochranu osobních údajů. Více informací
Chystáte se prodat nemovitost?
Pomůžeme Vám!

Inzerát si prohlédlo 1 lidí

Prodejce

Ondřej Petr

Ondřej Petr

Hlídací pes

Chcete dostávat emailem podobné nabídky pronájmu garáží v Praze 4?

Podobné nemovitosti