Pronájem skladu, Ústí nad Labem, U Tonasa, 572 m2 (ID: 2607435)

U Tonasa, Ústí nad Labem, Neštěmice

Cena na vyžádání /za metr čtvereční / měsíc Získejte výhodnou HYPOTÉKU
Doporučené firmy v Ústí nad Labem

Okna a dveře

Rekonstrukce

Informace k nemovitosti

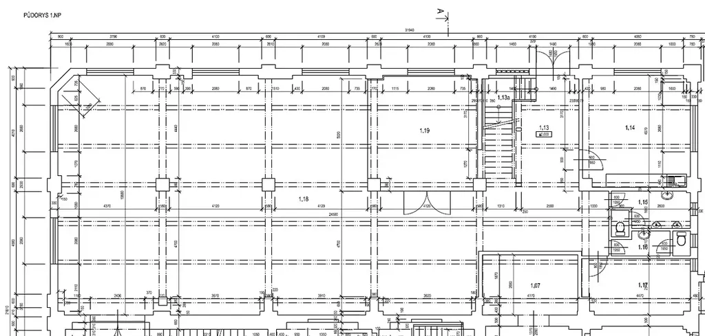
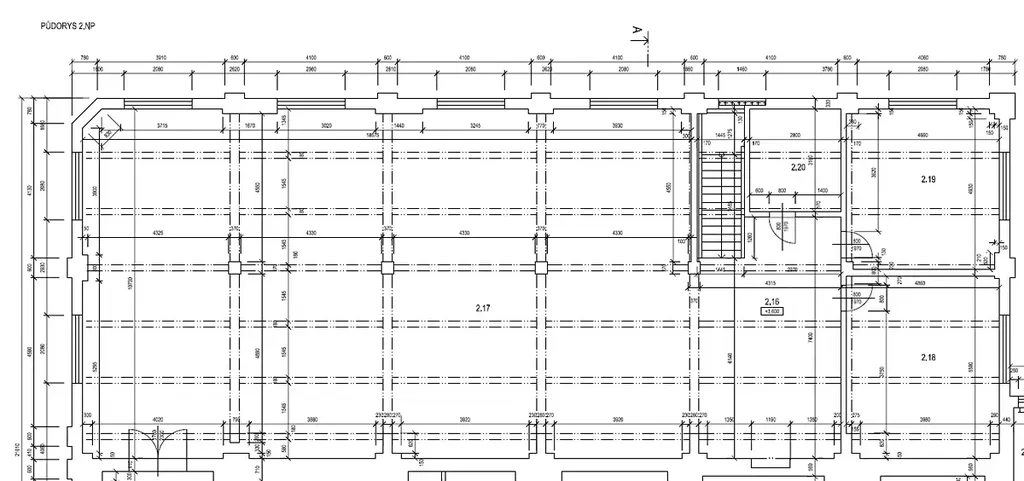
Pronajmeme výrobní nebi skladovací prostor v v 1.NP a 2.NP v budově č.g.310b. Budova se nachází v průmyslové zóně TONASO Neštěmice.

Stručný popis:
- Objekt bývalých měřičských dílen.
- Celková plocha ve dvou podlažích 572 m2.
- Elektřina, voda, kanalizace, plyn.
- Vytápění plynem.
- Možnost připojení k internetu.
- Vertikální manipulace mezi patry je možná pomocí nákladního výtahu.
- V prostoru jsou k dispozici kanceláře a sociální zázemí.
- U budovy je menší nákladní rampa.

Možnost i pronájmu dalších skladových nebo výrobních prostor, kanceláři a venkovních ploch nacházejících se v okolí haly.

Více informací poskytneme na osobní prohlídce.

Parametry nemovitosti

Cena
Cena na vyžádání
Aktualizováno
15. 4. 2026
Adresa
U Tonasa, Ústí nad Labem, Neštěmice
Stavba
Cihlová
Stav objektu
Dobrý
Patro
1. z 4
Lokalita objektu
Okraj obce
Užitná plocha
572 m2
Elektřina
230V, 400V
Plyn
Plynovod
Odpad
Veřejná kanalizace
Topení
Lokální plynové
Komunikace
Betonová, Dlážděná, Asfaltová
Telekomunikace
Telefon, Internet
Doprava
Vlak, Silnice, MHD, Autobus
Voda
Vodovod
Zdroj topení
WAW
Výtah

Kontaktovat makléře

Realitní kancelář

TONASO Holding

U Tonasa 172/2, Ústí nad Labem

Chystáte se prodat nemovitost?
Pomůžeme Vám!

Máte zájem o tuto nemovistost?

Tímto, v souladu s nařízením Evropského parlamentu a Rady (EU) 2016/679, v platném znění, prohlašuji, že mi je alespoň 16 let a uděluji tak svůj souhlas se zpracováním zadaných údajů (jméno, telefon, e-mail, ip adresa) společnosti B3 Technology, s.r.o., IČ: 07330600, se sídlem Novostavby 126/23, 435 11 Lom (správce dat), za účelem předání dotazu z tohoto formuláře Vámi vybranému inzerentovi a zpětného kontaktování mé osoby. Osobní údaje bude správce zpracovávat manuálně i automaticky přímo prostřednictvím svých zaměstnanců. Informace předané tímto formulářem budou uloženy v databázi správce maximálně po dobu 10 let. Odvolání souhlasu s uložením a zpracováním poskytnutých dat lze e-mailem na info@bydlisnami.cz. V případě podezření na neoprávněné použití Vámi poskytnutých údajů máte právo předat podnět k šetření Úřadu pro ochranu osobních údajů. Více informací
Chystáte se prodat nemovitost?
Pomůžeme Vám!

Inzerát si prohlédlo 1 lidí

Prodejce

TONASO Holding

TONASO Holding

Hlídací pes

Chcete dostávat emailem podobné nabídky pronájmu skladů v Ústí nad Labem?

Podobné nemovitosti