Pronájem bytu 2+kk, Praha - Liboc, Za vokovickou vozovnou, 50 m2

Za Vokovickou vozovnou, Praha, Liboc

21 000 Kč /za měsíc Získejte výhodnou HYPOTÉKU

(zálohově poplatky 2.872,-Kč + el. a plyn)

Doporučené firmy v Praze 6

Stěhovací služby

Výkup a prodej starého nábytku

Informace k bytu

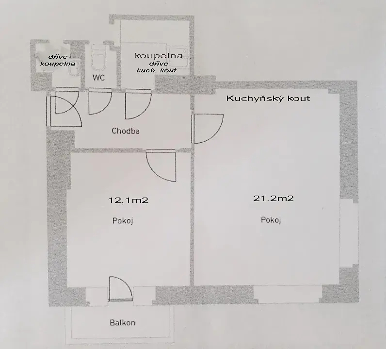
Pronájem nezařízeného bytu 2+kk ( 1+1 ) 49,8m2 ( byt 47,4m2 + balkon 2.4m2 ) v ul. Za Vokovickou vozovnou, v Praze 6 - Liboc, nacházejícího se v 1. patře ( 2.NP ) v pěkném cihlovém domě po rekonstrukci. Byt je zařízen kuchyňskou linkou , má plastová okna s orientací oken na severní a východní stranu ( obývací pokoj s kuch koutem ) a pokojem s balkonem na východní stanu. V bytě jsou nové rozvody vody a elektřiny. Soc. zařízením po rekonstrukci, v koupelně je sprchový kout, wc je samostatné, topení je prostřednictvím plynového kotle umístěného v bytě. V pokojích na podlaze je nová plovoucí podlaha.

Obývací pokoj s kuch. koutem 21,2m²
pokoj 12,1m
chodba 5,3m²,
koupelna ( původně kuchyň ) 3,3m²
wc 1m²
místnost s umyvadlem –původně koupelna- 1,1m²
svislé konstrukce 3,4m²
balkon 2,4m²
Žádaná lokalita, v blízkosti krajinná oblast Divoká Šárka .
Dobrá dostupnost do centra města, tramvaj i bus na metro Dejvická, či Petřiny.
Atraktivní lokalita v blízkosti parku Divoká Šárka.

Nabídka není určena pro zájemce co mají exekuci nebo insolvenci.

Parametry bytu

Cena
21 000 Kč /za měsíc
Poznámka k ceně
zálohově poplatky 2.872,-Kč + el. a plyn
Náklady na bydlení
zálohově poplatky 2.872,-Kč + el. a plyn
Aktualizováno
15. 4. 2026
Adresa
Za Vokovickou vozovnou, Praha, Liboc
Stavba
Cihlová
Stav objektu
Dobrý
Patro
2.
Vlastnictví
Osobní
Užitná plocha
50 m2
Třída energetické náročnosti
D - Méně úsporná
Zdroj topení
Plynový kotel
Zdroj teplé vody
Plynový kotel
Balkon

Kontaktovat makléře

Máte zájem o tento byt?

Tímto, v souladu s nařízením Evropského parlamentu a Rady (EU) 2016/679, v platném znění, prohlašuji, že mi je alespoň 16 let a uděluji tak svůj souhlas se zpracováním zadaných údajů (jméno, telefon, e-mail, ip adresa) společnosti B3 Technology, s.r.o., IČ: 07330600, se sídlem Novostavby 126/23, 435 11 Lom (správce dat), za účelem předání dotazu z tohoto formuláře Vámi vybranému inzerentovi a zpětného kontaktování mé osoby. Osobní údaje bude správce zpracovávat manuálně i automaticky přímo prostřednictvím svých zaměstnanců. Informace předané tímto formulářem budou uloženy v databázi správce maximálně po dobu 10 let. Odvolání souhlasu s uložením a zpracováním poskytnutých dat lze e-mailem na info@bydlisnami.cz. V případě podezření na neoprávněné použití Vámi poskytnutých údajů máte právo předat podnět k šetření Úřadu pro ochranu osobních údajů. Více informací
Chystáte se prodat nemovitost?
Pomůžeme Vám!

Inzerát si prohlédlo 0 lidí

Prodejce

Vít Kadlec

Vít Kadlec

Hlídací pes

Chcete dostávat emailem podobné nabídky pronájmu bytů 2+kk v Praze 6?

Podobné nemovitosti