Pronájem bytu 1+kk, Bystřice pod Hostýnem, Sídliště, 75 m2 (ID: 2613934)

Sídliště, Bystřice pod Hostýnem

13 000 Kč /za měsíc Získejte výhodnou HYPOTÉKU

(+ služby a energie)

Doporučené firmy v Bystřici pod Hostýnem

Informace k bytu

Pronájem nových již dokončených bytů v Bystřici pod Hostýnem – Sídliště.

Nabízíme moderní byty v nově zrekonstruovaném bytovém domě v ulici Sídliště, Bystřice pod Hostýnem.

Dům je po kompletní a zdařilé rekonstrukci dosahuje energetické třídy A, což zaručuje nízké provozní náklady a komfortní bydlení.

K dispozici jsou byty různých dispozic od 1+kk po 3+kk – ideální pro jednotlivce, páry i rodiny.

Standard vybavení:

- moderní PVC podlahy v obytných místnostech + dlažba,
- kuchyňská linka na míru včetně spotřebičů (lednice, sporák, digestoř, trouba i myčka),
- podlahové teplovodní vytápění,
- rekuperace pro stálý přísun čerstvého vzduchu,
- ke každému bytu je přiřazený sklep v 1PP,
- k některým bytům pohodlné terasy.

Možnost pronájmu parkovacího stání za 500 Kč/měsíc.

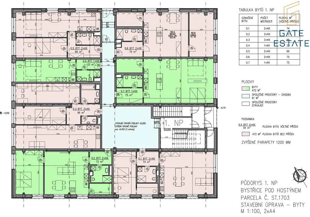
V tomto inzerátu uvádím byt 1kk, 75m2 + sklep, umístěný v 1NP. Byt je vybavený kuchyňskou linkou na míru vč. spotřebičů výše uvedených. V barevném půdorysu, který uvádíme ve fotografiích, se jedná o byt č. 0.6. V půdorysu není příčka která by tvořila dispozici 2kk, je to tedy dispozice 1kk.

Platební podmínky - měsíčně:
Nájem činí 13.000,-Kč + služby a energie (1.400,-Kč elektřina, 1.200,-Kč topení, úklid a osvětlení spol. prostor 350,-Kč, studená voda 600,-Kč/os, ohřev TV 300,-Kč/os, ). Nutno zmínit, že byty jsou nové a nikdo v těchto bytech ještě nebydlel. Zálohy na služby a energie jsou tedy odhadované a po určitém čase užívání se upraví dle reálné spotřeby aby nevznikaly větší přeplatky či nedoplatky). V tuto chvíli jsme zvolili zálohy na stranu bezpečnou.

Vratná kauce je ve výši dvou nájmů. Jednorázová provize činí jeden nájem + DPH.
Preferovaný je dlouhodobý pronájem bez domácích mazlíčků (psi a kočky).

K nastěhování od 1. 5. 2026.

V případě zájmu o jakékoliv informace mě prosím kontaktujte, rád se s Vámi sejdu, projdeme si byt (nebo více bytů) a zodpovím veškeré dotazy.

Parametry bytu

Cena
13 000 Kč /za měsíc
Poznámka k ceně
+ služby a energie
Aktualizováno
21. 4. 2026
Adresa
Sídliště, Bystřice pod Hostýnem
ID
019
Stavba
Cihlová
Stav objektu
Po rekonstrukci
Patro
1. z 3
Vybaveno
Částečně
Vlastnictví
Osobní
Užitná plocha
75 m2
Zastavěná plocha
666 m2
Podlahová plocha
75 m2
Třída energetické náročnosti
A - Mimořádně úsporná
Ukazatel energetické náročnosti
56 kWh/m2 za rok
Komunikace
Asfaltová
Doprava
Vlak, Silnice, Autobus
Topné těleso
Podlahové vytápění
Zdroj topení
Tepelné čerpadlo
Zdroj teplé vody
Tepelné čerpadlo

Kontaktovat makléře

Máte zájem o tento byt?

Tímto, v souladu s nařízením Evropského parlamentu a Rady (EU) 2016/679, v platném znění, prohlašuji, že mi je alespoň 16 let a uděluji tak svůj souhlas se zpracováním zadaných údajů (jméno, telefon, e-mail, ip adresa) společnosti B3 Technology, s.r.o., IČ: 07330600, se sídlem Novostavby 126/23, 435 11 Lom (správce dat), za účelem předání dotazu z tohoto formuláře Vámi vybranému inzerentovi a zpětného kontaktování mé osoby. Osobní údaje bude správce zpracovávat manuálně i automaticky přímo prostřednictvím svých zaměstnanců. Informace předané tímto formulářem budou uloženy v databázi správce maximálně po dobu 10 let. Odvolání souhlasu s uložením a zpracováním poskytnutých dat lze e-mailem na info@bydlisnami.cz. V případě podezření na neoprávněné použití Vámi poskytnutých údajů máte právo předat podnět k šetření Úřadu pro ochranu osobních údajů. Více informací
Chystáte se prodat nemovitost?
Pomůžeme Vám!

Inzerát si prohlédlo 1 lidí

Prodejce

Mgr. Jiří Kaňa, MBA

Mgr. Jiří Kaňa, MBA

Hlídací pes

Chcete dostávat emailem podobné nabídky pronájmu bytů 1+kk v Bystřici pod Hostýnem?

Podobné nemovitosti