Pronájem obchodního prostoru, Hradec Králové, Víta Nejedlého, 400 m2

Víta Nejedlého, Hradec Králové, Slezské Předměstí

50 000 Kč /za měsíc Získejte výhodnou HYPOTÉKU
Doporučené firmy v Hradci Králové

Informace k nemovitosti

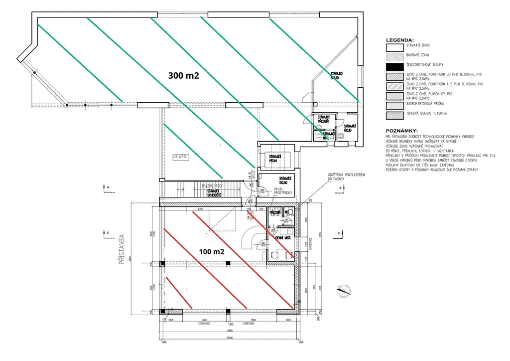
Nabízíme Vám k pronájmu příjemné, moderní, plně klimatizované prostory s vlastním parkováním a velkým výtahem (bezbariérový přístup) umístěné v 1. patře prodejního, obchodního centra v ulici Víta Nejedlého. K dispozici jsou dva prostory, které lze pronajmout společně, nebo každý zvlášť. Prostor A mám 300 m² a prostor B má 100 m². Budova je nekuřácká, internetové připojení je zajištěno.

Základní informace:
Dispozice:
Prostor A jeden velký prostor (možnost úpravy), 2 x sklad s technickým zázemím, výtah, kuchyňka, WC
celková plocha nabízeného prostoru je 300 m²
u budovy je dostatek vlastních parkovacích míst
Showroom je v 1. patře se samostatným vchodem a přístupem po schodišti
výtah je určený pro potřeby nájemce
podlaha: dlažba
volný dle dohody ihned

Prostor B jeden velký prostor (možnost úpravy), výtah, kuchyňka, WC
celková plocha nabízeného prostoru je 100 m²
u budovy je dostatek vlastních parkovacích míst
Showroom je v 1. patře se samostatným vchodem a přístupem po schodišti
výtah je určený pro potřeby nájemce
podlaha: dlažba
volný cca od 06/2026

Finanční podmínky:
Prostor A měsíční nájemné: 70.000, Kč + DPH , elektrická energie se přepisuje na nájemce, teplo se vyúčtovává podílem s druhým nájemcem celkové měsíční náklady cca 5.000, Kč
Prostor B měsíční nájemné: 50.000, Kč + DPH , elektrická energie se přepisuje na nájemce, teplo se vyúčtovává podílem s druhým nájemcem celkové měsíční náklady cca 2.000, Kč
Na střeše objektu je vybudována fotovoltaika.
vratná jistota: dle dohody
provize zprostředkovatele ve výši jednoho nájmu
platby měsíční

Parametry nemovitosti

Cena
50 000 Kč /za měsíc
Aktualizováno
27. 4. 2026
Adresa
Víta Nejedlého, Hradec Králové, Slezské Předměstí
ID
979137
Stavba
Cihlová
Stav objektu
Novostavba
Patro
2.
Užitná plocha
400 m2
Zastavěná plocha
320 m2
Třída energetické náročnosti
B - Velmi úsporná
Elektřina
230V
Plyn
Plynovod
Odpad
Veřejná kanalizace
Komunikace
Asfaltová
Doprava
Dálnice, Silnice, MHD
Voda
Vodovod
Výtah
Bezbarierový přístup
Parkování

Kontaktovat makléře

Realitní kancelář

reality VAŠATOVÁ, s.r.o.

Veverkova 1343/1, Hradec Králové

Chystáte se prodat nemovitost?
Pomůžeme Vám!

Máte zájem o tuto nemovistost?

Tímto, v souladu s nařízením Evropského parlamentu a Rady (EU) 2016/679, v platném znění, prohlašuji, že mi je alespoň 16 let a uděluji tak svůj souhlas se zpracováním zadaných údajů (jméno, telefon, e-mail, ip adresa) společnosti B3 Technology, s.r.o., IČ: 07330600, se sídlem Novostavby 126/23, 435 11 Lom (správce dat), za účelem předání dotazu z tohoto formuláře Vámi vybranému inzerentovi a zpětného kontaktování mé osoby. Osobní údaje bude správce zpracovávat manuálně i automaticky přímo prostřednictvím svých zaměstnanců. Informace předané tímto formulářem budou uloženy v databázi správce maximálně po dobu 10 let. Odvolání souhlasu s uložením a zpracováním poskytnutých dat lze e-mailem na info@bydlisnami.cz. V případě podezření na neoprávněné použití Vámi poskytnutých údajů máte právo předat podnět k šetření Úřadu pro ochranu osobních údajů. Více informací
Chystáte se prodat nemovitost?
Pomůžeme Vám!

Inzerát si prohlédlo 0 lidí

Prodejce

Romana Kellner

Romana Kellner

Hlídací pes

Chcete dostávat emailem podobné nabídky pronájmu obchodních prostor v Hradci Králové?

Podobné nemovitosti