Pronájem bytu 2+kk, Praha - Stodůlky, Blattného, 43 m2 (ID: 2622417)

Blattného, Stodůlky - Praha 13

17 900 Kč /za měsíc Získejte výhodnou HYPOTÉKU

(vratná jistota, náklady na bydlení 4.400,-Kč, poplatek za podnájem)

Doporučené firmy v Praze 5

Stěhovací služby

Výkup a prodej starého nábytku

Informace k bytu

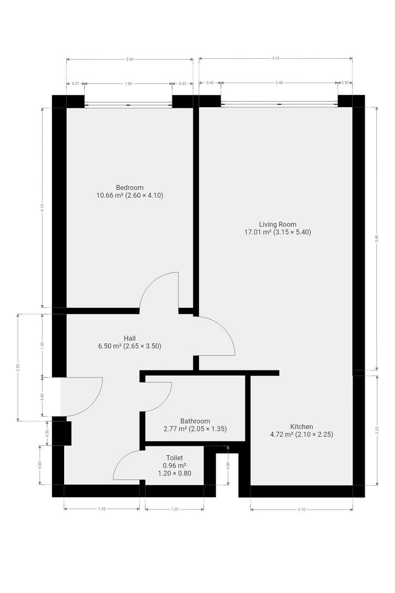
K dlouhodobému podnájmu nabízíme světlý byt o dispozici 2+kk v klidné lokalitě Praha 13 - Stodůlky. Byt o celkové výměře 43 m² se nachází v 5. patře udržovaného panelového domu s výtahem.

Skládá se z centrální vstupní chodby zařízené šatní skříní, samostatné koupelny vybavené sprchovým koutem, umyvadlem a pračkou, oddělené toalety a dvou pokojů - ložnice a obývacího pokoje, který je společný s kuchyňským koutem. Ten je vybavena malou lednicí, sklokeramickou varnou deskou, troubou a digestoří. Součástí kuchyně je také jídelní stůl.

Dále se byt nabízí nezařízený a vybavit si jej tak můžete plně dle svých představ a potřeb.

V okolí domu se nachází kompletní občanská vybavenost – nákupní centrum Galerie Nové Butovice, pošta, lékárna, zdravotní služby i možnosti sportovního vyžití.
Pro volný čas jsou ideální Centrální park a Přírodní park Košíře, které jsou vzdáleny jen pár minut chůze. Výbornou dopravní dostupnost zajišťuje stanice metra B – Hůrka (5 minut chůze )a autobusové zastávky v blízkosti domu.

Zálohové platby již obsahují elektřinu a pojištění domácnosti.

Byt je k dispozici ihned.

Parametry bytu

Cena
17 900 Kč /za měsíc
Poznámka k ceně
vratná jistota, náklady na bydlení 4.400,-Kč, poplatek za podnájem
Aktualizováno
30. 4. 2026
Adresa
Blattného, Stodůlky - Praha 13
ID
N7659
Stavba
Panelová
Stav objektu
Velmi dobrý
Patro
5. z 7
Vybaveno
Částečně
Typ objektu
Patrový
Vlastnictví
Osobní
Užitná plocha
43 m2
Podlahová plocha
43 m2
Třída energetické náročnosti
F - Velmi nehospodárná
Elektřina
230V
Topení
Ústřední dálkové
Doprava
Vlak, Dálnice, Silnice, MHD, Autobus
Sklep
Výtah
Bezbarierový přístup

Kontaktovat makléře

Máte zájem o tento byt?

Tímto, v souladu s nařízením Evropského parlamentu a Rady (EU) 2016/679, v platném znění, prohlašuji, že mi je alespoň 16 let a uděluji tak svůj souhlas se zpracováním zadaných údajů (jméno, telefon, e-mail, ip adresa) společnosti B3 Technology, s.r.o., IČ: 07330600, se sídlem Novostavby 126/23, 435 11 Lom (správce dat), za účelem předání dotazu z tohoto formuláře Vámi vybranému inzerentovi a zpětného kontaktování mé osoby. Osobní údaje bude správce zpracovávat manuálně i automaticky přímo prostřednictvím svých zaměstnanců. Informace předané tímto formulářem budou uloženy v databázi správce maximálně po dobu 10 let. Odvolání souhlasu s uložením a zpracováním poskytnutých dat lze e-mailem na info@bydlisnami.cz. V případě podezření na neoprávněné použití Vámi poskytnutých údajů máte právo předat podnět k šetření Úřadu pro ochranu osobních údajů. Více informací
Chystáte se prodat nemovitost?
Pomůžeme Vám!

Inzerát si prohlédlo 1 lidí

Prodejce

Miloslava Kačerová

Miloslava Kačerová

Hlídací pes

Chcete dostávat emailem podobné nabídky pronájmu bytů 2+kk v Praze 5?

Podobné nemovitosti