Pronájem obchodního prostoru, Velká Bíteš, 101 m2

Velká Bíteš

30 300 Kč /za měsíc Získejte výhodnou HYPOTÉKU

(Včetně energii a DPH.)

Doporučené firmy v Velké Bíteši

Informace k nemovitosti

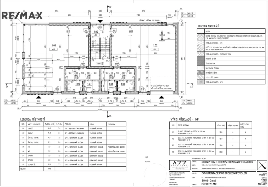
Hledáte reprezentativní prostor pro své služby – zubní ordinaci, masážní studio, kadeřnictví, pedikúru nebo jiné péče o klienty? Ve Velké Bíteši nabízíme k pronájmu přízemní prostor o celkové výměře 101 m² v uzavřeném a udržovaném areálu.
Prostor (označení 1.01, 1.03, 1.05 a 1.07) je možné flexibilně rozdělit na několik samostatných místností – například čekárnu a ordinaci, dvě až tři samostatné pracovny, kosmetický a masážní box apod. Dispozici lze přizpůsobit podle konkrétního typu provozu i požadavků hygieny. Díky přízemnímu umístění je zajištěn pohodlný přístup pro klienty všech věkových kategorií.
Měsíční nájemné činí 30 300 Kč a zahrnuje nájem, topení, elektřinu i vodu, což umožňuje jednoduché plánování nákladů bez nečekaných výdajů.
Součástí moderní budovy jsou společné toalety a kuchyňka. Uzavřený areál nabízí dostatek parkovacích míst přímo u objektu, klidné prostředí a příjemné okolí se zelení – ideální pro služby, kde je důležitý komfort a soukromí klientů.
Areál se nachází v blízkosti dálnice D1 (exit Devět Křížů), což zajišťuje snadnou dostupnost nejen z Velké Bíteše, ale i z širšího okolí. Celková plocha areálu činí 6 189 m² a tvoří jej dvě moderní dvoupatrové budovy s celkovou podlahovou plochou 1 100 m². Je možné pronajmout jednotlivé jednotky, větší část budovy nebo celý objekt podle rozsahu vašeho podnikání.
Prostor je vhodný zejména pro zdravotní a estetické služby, poradenské činnosti či jiné klientsky orientované provozy, kde je důležitá dostupnost, parkování a příjemné prostředí.
Pro více informací nebo domluvení prohlídky mě neváhejte kontaktovat. Prodávající si vyhrazuje právo vybrat kupujícího na základě jím zvolených kritérií.

Parametry nemovitosti

Cena
30 300 Kč /za měsíc
Poznámka k ceně
Včetně energii a DPH.
Aktualizováno
12. 3. 2026
Adresa
Velká Bíteš
ID
144-NP02899
Stavba
Cihlová
Stav objektu
Novostavba
Patro
1. z 2
Typ objektu
Patrový
Lokalita objektu
Klidná část obce
Užitná plocha
101 m2
Třída energetické náročnosti
B - Velmi úsporná
Elektřina
230V, 400V
Odpad
Veřejná kanalizace
Komunikace
Asfaltová
Telekomunikace
Internet, Kabelové rozvody
Doprava
Vlak, Dálnice, Silnice, Autobus
Voda
Vodovod
Převod do OV
Parkování

Kontaktovat makléře

Realitní kancelář

Logo RE/MAX Stars

RE/MAX Stars

Karlovo nám. 15/9, Třebíč

Chystáte se prodat nemovitost?
Pomůžeme Vám!

Máte zájem o tuto nemovistost?

Tímto, v souladu s nařízením Evropského parlamentu a Rady (EU) 2016/679, v platném znění, prohlašuji, že mi je alespoň 16 let a uděluji tak svůj souhlas se zpracováním zadaných údajů (jméno, telefon, e-mail, ip adresa) společnosti B3 Technology, s.r.o., IČ: 07330600, se sídlem Novostavby 126/23, 435 11 Lom (správce dat), za účelem předání dotazu z tohoto formuláře Vámi vybranému inzerentovi a zpětného kontaktování mé osoby. Osobní údaje bude správce zpracovávat manuálně i automaticky přímo prostřednictvím svých zaměstnanců. Informace předané tímto formulářem budou uloženy v databázi správce maximálně po dobu 10 let. Odvolání souhlasu s uložením a zpracováním poskytnutých dat lze e-mailem na info@bydlisnami.cz. V případě podezření na neoprávněné použití Vámi poskytnutých údajů máte právo předat podnět k šetření Úřadu pro ochranu osobních údajů. Více informací
Chystáte se prodat nemovitost?
Pomůžeme Vám!

Inzerát si prohlédlo 15 lidí

Prodejce

Miroslav Prokeš

Miroslav Prokeš

Hlídací pes

Chcete dostávat emailem podobné nabídky pronájmu obchodních prostor v Velké Bíteši?

Podobné nemovitosti