Pronájem obchodního prostoru, Praha - Vokovice, K lánu, 184 m2

K lánu, Praha 6

52 000 Kč /za měsíc Získejte výhodnou HYPOTÉKU

(52 000 Kč nájem, 10 000 Kč zálohy, 1 nájem provize RK.)

Doporučené firmy v Praze 6

Stěhovací služby

Výkup a prodej starého nábytku

Informace k nemovitosti

Pronájem obchodního objektu, 184 m², Praha

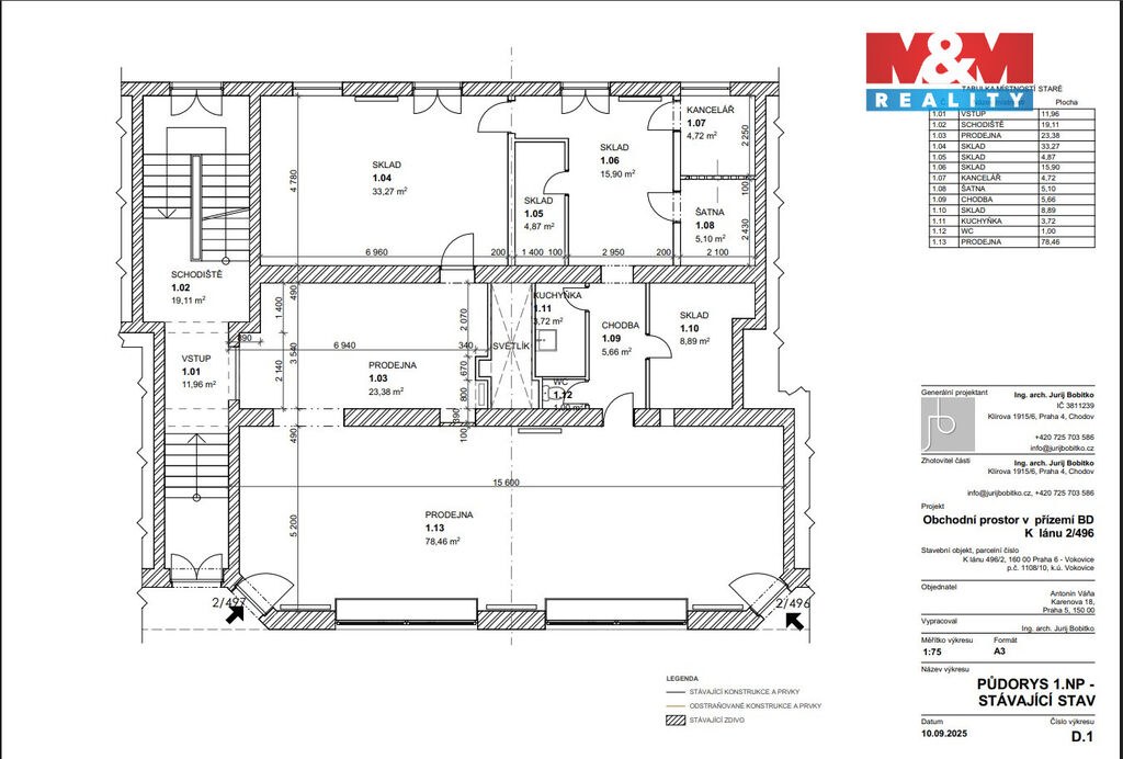
Jedinečný obchodní prostor o velikosti 184 m² nabízíme k pronájmu v atraktivní lokalitě Prahy 6 – Vokovice. Tento cihlový objekt se nachází v klidné části obce a je ideální pro různé podnikatelské záměry. Prostor je umístěn v přízemí čtyřpodlažního domu s jedním podzemním podlažím, má celkem 4 místnosti a je ve stavu před rekonstrukcí, což umožňuje budoucímu nájemci přizpůsobit si jej dle vlastních potřeb a představ. Klidná lokalita a snadná dostupnost činí z této nabídky ideální volbu pro vaše podnikání. Prostor je možné rozdělit na dva samostatné s vlastním vstupem. Je zde i zadní vstup pro zásobování. Neváhejte nás kontaktovat pro více informací a prohlídku!

Parametry nemovitosti

Cena
52 000 Kč /za měsíc
Poznámka k ceně
52 000 Kč nájem, 10 000 Kč zálohy, 1 nájem provize RK.
Aktualizováno
3. 10. 2025
Adresa
K lánu, Praha 6
ID
921414
Stavba
Cihlová
Stav objektu
Před rekonstrukcí
Vybaveno
Ne
Lokalita objektu
Klidná část obce
Vlastnictví
Osobní
Užitná plocha
184 m2

Kontaktovat makléře

Realitní kancelář

Logo M&M reality

M&M reality

ulice Krakovská 583/9, Praha

Chystáte se prodat nemovitost?
Pomůžeme Vám!

Máte zájem o tuto nemovistost?

Tímto, v souladu s nařízením Evropského parlamentu a Rady (EU) 2016/679, v platném znění, prohlašuji, že mi je alespoň 16 let a uděluji tak svůj souhlas se zpracováním zadaných údajů (jméno, telefon, e-mail, ip adresa) společnosti B3 Technology, s.r.o., IČ: 07330600, se sídlem Novostavby 126/23, 435 11 Lom (správce dat), za účelem předání dotazu z tohoto formuláře Vámi vybranému inzerentovi a zpětného kontaktování mé osoby. Osobní údaje bude správce zpracovávat manuálně i automaticky přímo prostřednictvím svých zaměstnanců. Informace předané tímto formulářem budou uloženy v databázi správce maximálně po dobu 10 let. Odvolání souhlasu s uložením a zpracováním poskytnutých dat lze e-mailem na info@bydlisnami.cz. V případě podezření na neoprávněné použití Vámi poskytnutých údajů máte právo předat podnět k šetření Úřadu pro ochranu osobních údajů. Více informací
Chystáte se prodat nemovitost?
Pomůžeme Vám!

Inzerát si prohlédlo 1 lidí

Prodejce

Miloš Nezbeda

Miloš Nezbeda

Hlídací pes

Chcete dostávat emailem podobné nabídky pronájmu obchodních prostor v Praze 6?

Podobné nemovitosti