Pronájem obchodního prostoru, Praha, Štúrova, 115 m2

Štúrova, Praha 4

360 Kč /za metr čtvereční / měsíc Získejte výhodnou HYPOTÉKU

(+ služby a elektroměr)

Doporučené firmy v Praze 4

Stěhovací služby

Výkup a prodej starého nábytku

Informace k nemovitosti

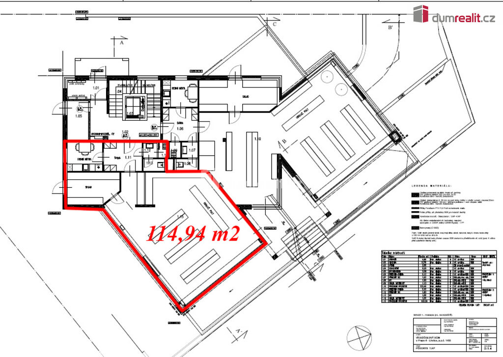
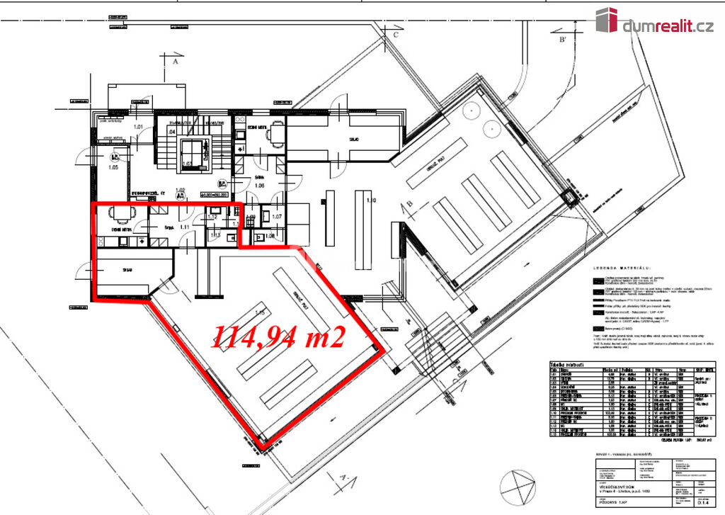
Dumrealit.cz Vám zprostředkuje exkluzivně pronájem zcela nového komerčního prostoru o velikosti 114,94 m², v nově stavěné budově (PENB – B) přímo u budoucí stanice metra D - Nové Dvory (přes ulici Štúrova), která bude dokončena v druhé polovině roku 2026. Tento prostor se nachází v přízemí třípatrové nízkoenergetické budovy, kde v přízemí je nabízený prostor o velikosti 143,18 m², který bude mít hlavní vstup z ulice Štúrova přímo od zastávky MHD / Bus – Tempo, vstup bude přes schodiště a také bude plně bezbariérový. Prostor 114,94 m² může být jako obchodní (např. kavárna, prodejna, pekárna) nebo jako kancelář / showroom nebo i ordinace, výběr je plně na klientovi. Prostor lze plně modifikovat, lze ho rozšířit o další prostor nabízený k pronájmu o velikosti 143,18 m² s vlastním zázemím a samostatným vstupem. K dispozici bude toaleta, šatna, předsíň a úklidová místnost. K prostoru lze dopronajmout venkovní terasu a menší zahrádku, dále parkovací stání a popř. sklepy. V domě bude 12 parkovací stání v suterénu domu, 6 x sklep a dále lze pronajmout až 3 venkovní parkovací stání. Aktuálně se v domě instalují okna, sdk příčky a klimatizace. Tato budova bude dokončena a zkolaudována v druhé polovině roku 2026, již nyní mohou probíhat prohlídky a úpravy prostor před dokončením přímo na přání nového nájemce. Velmi doporučuji všem zájemcům, kteří již nyní hledají atraktivní prostor u budoucí stanice metra D – Nové Dvory, v ulici Štúrova, Praha 4. Ev. číslo: 652666.

Parametry nemovitosti

Cena
360 Kč /za metr čtvereční / měsíc
Poznámka k ceně
+ služby a elektroměr
Aktualizováno
25. 11. 2025
Adresa
Štúrova, Praha 4
ID
653280
Stavba
Skeletová
Stav objektu
Novostavba
Typ objektu
Patrový
Užitná plocha
115 m2
Zastavěná plocha
258 m2
Třída energetické náročnosti
B - Velmi úsporná
Ukazatel energetické náročnosti
60 kWh/m2 za rok
Topení
Lokální tuhá paliva
Garáž
Parkování

Kontaktovat makléře

Máte zájem o tuto nemovistost?

Tímto, v souladu s nařízením Evropského parlamentu a Rady (EU) 2016/679, v platném znění, prohlašuji, že mi je alespoň 16 let a uděluji tak svůj souhlas se zpracováním zadaných údajů (jméno, telefon, e-mail, ip adresa) společnosti B3 Technology, s.r.o., IČ: 07330600, se sídlem Novostavby 126/23, 435 11 Lom (správce dat), za účelem předání dotazu z tohoto formuláře Vámi vybranému inzerentovi a zpětného kontaktování mé osoby. Osobní údaje bude správce zpracovávat manuálně i automaticky přímo prostřednictvím svých zaměstnanců. Informace předané tímto formulářem budou uloženy v databázi správce maximálně po dobu 10 let. Odvolání souhlasu s uložením a zpracováním poskytnutých dat lze e-mailem na info@bydlisnami.cz. V případě podezření na neoprávněné použití Vámi poskytnutých údajů máte právo předat podnět k šetření Úřadu pro ochranu osobních údajů. Více informací
Chystáte se prodat nemovitost?
Pomůžeme Vám!

Inzerát si prohlédlo 10 lidí

Prodejce

Ing. Jiří Doskočil

Ing. Jiří Doskočil

Hlídací pes

Chcete dostávat emailem podobné nabídky pronájmu obchodních prostor v Praze 4?

Podobné nemovitosti