Pronájem bytu 1+kk, Brno, Cejl, 29 m2 (ID: 2435750)

Cejl, Brno

14 000 Kč /za měsíc Získejte výhodnou HYPOTÉKU

(vratná jistota, náklady na bydlení 3300, poplatek za podnájem)

Doporučené firmy v Brně

Informace k bytu

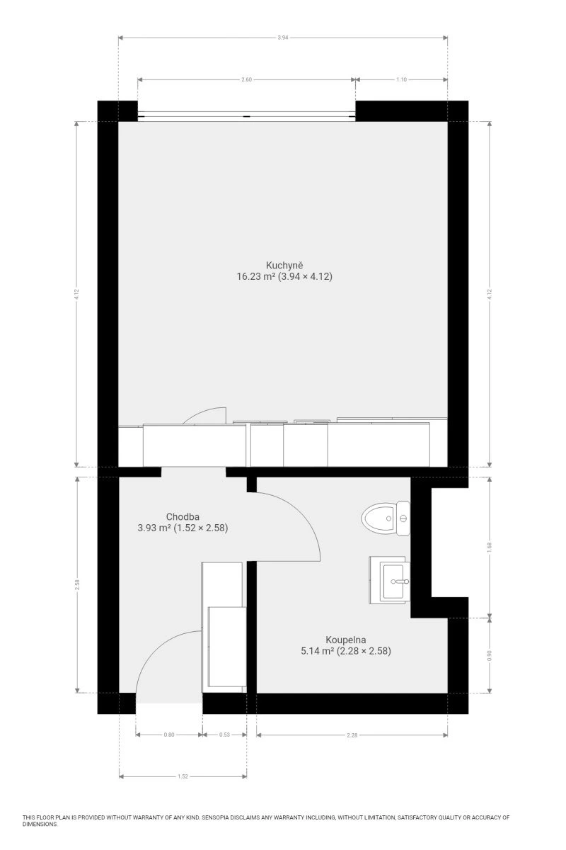
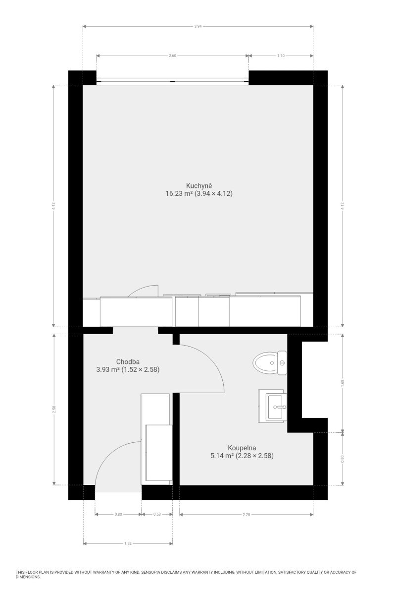
Nabízíme k dlouhodobému podnájmu moderní byt o dispozici 1+kk, který se nachází v novostavbě na ulici Cejl v Brně. Byt má celkovou plochu 29 m² a je umístěn ve 4. patře domu s výtahem. Klidná poloha ve vnitrobloku zajišťuje pohodlné bydlení.

Kuchyň je plně vybavena spotřebiči, včetně digestoře, varné desky, lednice a elektrické trouby. Součástí bytu jsou také venkovní žaluzie, které poskytují optimální regulaci světla a soukromí.

Stylová koupelna se pyšní elegantními velkoformátovými obklady v přírodních tónech, prostorným sprchovým koutem s černými designovými armaturami, závěsným WC a praktickou umyvadlovou skříňkou s úložným prostorem. LED podsvícení dodává koupelně moderní atmosféru.

V bytě je položena kvalitní vinylová podlaha, která kombinuje estetiku s praktičností díky snadné údržbě. Bezpečnostní vstupní dveře přispívají k vyšší ochraně a pohodlí nájemníka.

Byt se nachází v lokalitě s plnou občanskou vybaveností. V blízkém okolí najdete obchody, restaurace, kavárny a další služby. Dopravní spojení je výborné – zastávky MHD v blízkosti domu umožňují rychlý a snadný přístup do centra Brna i dalších částí města.

Byt je připraven k nastěhování od 1. 1. 2026 Pro více informací či sjednání prohlídky nás neváhejte kontaktovat.

Byt pronajímá Ideální nájemce – služba, která vám zajistí bezstarostné bydlení za férových podmínek. Když se něco přihodí, jsou k dispozici správci, kteří s vámi vše vyřeší. Pomůžeme vám s veškerou administrativou, nastavením plateb a zajistíme speciální pojištění. Pojďte bydlet s námi a užijte si život v pohodlném a moderním bytě na ulici Cejl v Brně!

Parametry bytu

Cena
14 000 Kč /za měsíc
Poznámka k ceně
vratná jistota, náklady na bydlení 3300, poplatek za podnájem
Aktualizováno
18. 11. 2025
Adresa
Cejl, Brno
ID
N5821
Stavba
Cihlová
Stav objektu
Novostavba
Patro
4. z 6
Vybaveno
Ne
Typ objektu
Patrový
Vlastnictví
Osobní
Užitná plocha
29 m2
Podlahová plocha
29 m2
Elektřina
230V
Výtah

Kontaktovat makléře

Máte zájem o tento byt?

Tímto, v souladu s nařízením Evropského parlamentu a Rady (EU) 2016/679, v platném znění, prohlašuji, že mi je alespoň 16 let a uděluji tak svůj souhlas se zpracováním zadaných údajů (jméno, telefon, e-mail, ip adresa) společnosti B3 Technology, s.r.o., IČ: 07330600, se sídlem Novostavby 126/23, 435 11 Lom (správce dat), za účelem předání dotazu z tohoto formuláře Vámi vybranému inzerentovi a zpětného kontaktování mé osoby. Osobní údaje bude správce zpracovávat manuálně i automaticky přímo prostřednictvím svých zaměstnanců. Informace předané tímto formulářem budou uloženy v databázi správce maximálně po dobu 10 let. Odvolání souhlasu s uložením a zpracováním poskytnutých dat lze e-mailem na info@bydlisnami.cz. V případě podezření na neoprávněné použití Vámi poskytnutých údajů máte právo předat podnět k šetření Úřadu pro ochranu osobních údajů. Více informací
Chystáte se prodat nemovitost?
Pomůžeme Vám!

Inzerát si prohlédlo 5 lidí

Prodejce

Miloslava Kačerová

Miloslava Kačerová

Hlídací pes

Chcete dostávat emailem podobné nabídky pronájmu bytů 1+kk v Brně?

Top nabídky

Podobné nemovitosti