Pronájem obchodního prostoru, Liberec, 334 m2

Liberec

250 Kč /za metr čtvereční / měsíc Získejte výhodnou HYPOTÉKU
Doporučené firmy v Liberci

Rekonstrukce

Úklidové služby

Informace k nemovitosti

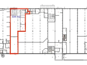
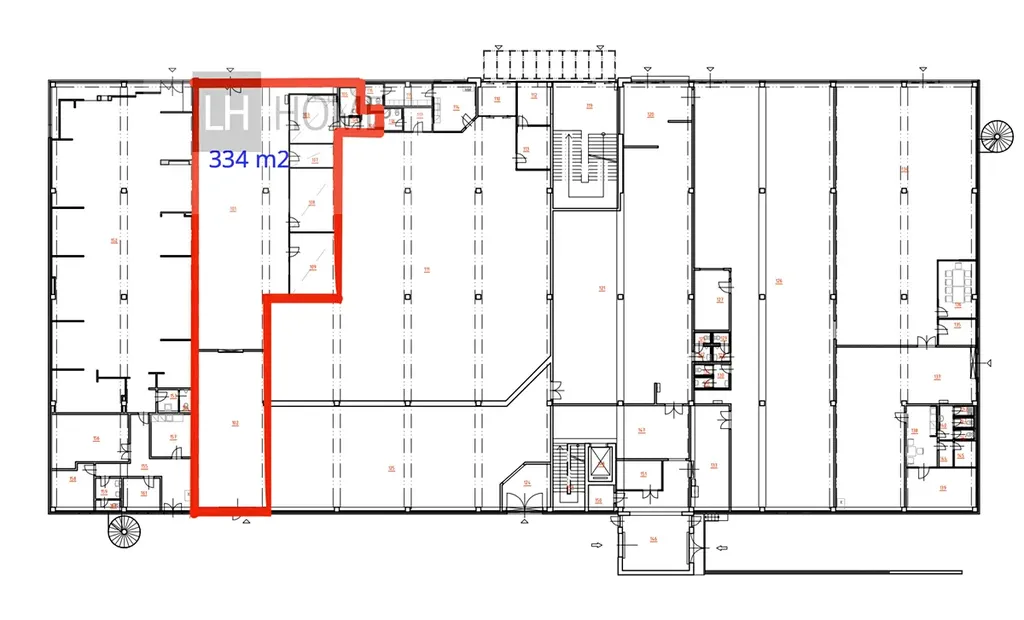
Nabídka k pronájmu nebytových obchodních prostor v Liberci o výměře 334 m2.

Součástí nebytového prostoru je vlastní kuchyňka a sociální zařízení, šatna, kanceláře. V zadní části se nachází sklad s garážovými vraty.
Obchodní prostory se nachází v OD SPECTRUM a jsou situovány vedle známého obchodního centra NISA Liberec. Vlastní parkoviště se 70 místy. Nabízíme výhodné podmínky pronájmu.

V obchodním centru NISA a jeho okolí jsou tito nájemci:
Sconto nábytek, McDonald, hypermarket Albert, Datart, iWant, Orsay, Deichmann, Bambule, DM Drogerie, Baťa, Uncle Sam, CCC, Cinestar, Reserved, HM, Tescoma, Pompo, New Yorker, A3 Sport, Intersport, Martes sport, Alpinepro a mnoho dalších.

Nájemné: 250,-Kč/m2 bez DPH (celkem 83.500,-Kč bez DPH)

Energie a služby jsou dle skutečné spotřeby.

Parametry nemovitosti

Cena
250 Kč /za metr čtvereční / měsíc
Aktualizováno
8. 12. 2025
Adresa
Liberec
ID
Liberec
Stavba
Smíšená
Stav objektu
Velmi dobrý
Vybaveno
Ne
Užitná plocha
334 m2
Zastavěná plocha
334 m2
Třída energetické náročnosti
B - Velmi úsporná

Kontaktovat makléře

Realitní kancelář

Luxury Home s.r.o.

Tepelská 137/3, Mariánské Lázně

Chystáte se prodat nemovitost?
Pomůžeme Vám!

Máte zájem o tuto nemovistost?

Tímto, v souladu s nařízením Evropského parlamentu a Rady (EU) 2016/679, v platném znění, prohlašuji, že mi je alespoň 16 let a uděluji tak svůj souhlas se zpracováním zadaných údajů (jméno, telefon, e-mail, ip adresa) společnosti B3 Technology, s.r.o., IČ: 07330600, se sídlem Novostavby 126/23, 435 11 Lom (správce dat), za účelem předání dotazu z tohoto formuláře Vámi vybranému inzerentovi a zpětného kontaktování mé osoby. Osobní údaje bude správce zpracovávat manuálně i automaticky přímo prostřednictvím svých zaměstnanců. Informace předané tímto formulářem budou uloženy v databázi správce maximálně po dobu 10 let. Odvolání souhlasu s uložením a zpracováním poskytnutých dat lze e-mailem na info@bydlisnami.cz. V případě podezření na neoprávněné použití Vámi poskytnutých údajů máte právo předat podnět k šetření Úřadu pro ochranu osobních údajů. Více informací
Chystáte se prodat nemovitost?
Pomůžeme Vám!

Inzerát si prohlédlo 17 lidí

Prodejce

Pavel Vakeš

Pavel Vakeš

Hlídací pes

Chcete dostávat emailem podobné nabídky pronájmu obchodních prostor v Liberci?

Podobné nemovitosti