Pronájem bytu 2+kk, České Budějovice - České Budějovice 2, Plukovníka Malého, 51 m2

Plukovníka Malého, České Budějovice 2

15 000 Kč /za měsíc Získejte výhodnou HYPOTÉKU

(+ energie 3500Kč měsíčně)

Doporučené firmy v Českých Budějovicích

Výkup a prodej starého nábytku

Informace k bytu

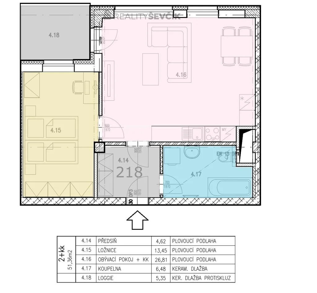
Nabízíme k pronájmu krásný slunný byt 2+kk o výměře 51,36 m2 + terasa 5,35 m2 v novostavbě bytového domu v ul. Plukovníka Malého v Českých Budějovicích. Byt sestává z předsíně, koupelny se sprchovým koutem, WC, dále pak obývacího pokoj s kuchyňským koutem s vestavnými spotřebiči(trouba, mikrovlnná trouba, sklokeramická deska, digestoř, myčka, lednice) a dále pak ložnice. Z obývacího pokoje je vstup na terasu s orientací na západ. V koupelně je skříňka pod umyvadlem, v předsíni botník a šatní stěna, v kuchyni je barový stolek s židlemi. Byt je vybaven světly a žaluziemi v oknech. K bytu náleží sklep o výměře 4 m2 v 1.patře domu a dále pak parkovací stání přímo před domem. Byt volný od 1.3.2026. Majitel požaduje jistotu ve výši Kč 30.000,--. Majitel si nepřeje žádná domácí zvířata.
Platby k bytu: nájemné 15.000,-- měsíčně, zálohy na služby 3.500,-- měsíčně (elektřina, odběr studené a teplé vody, vytápění, odvoz domovního odpadu, osvětlení a úklid společných prostor domu, zajištění televizní antény, provoz výtahu a vodoměru), jistota 30.000,--, provize RK 15.000,--.
Bližší informace v RK.

Parametry bytu

Cena
15 000 Kč /za měsíc
Poznámka k ceně
+ energie 3500Kč měsíčně
Aktualizováno
20. 1. 2026
Adresa
Plukovníka Malého, České Budějovice 2
ID
N02292
Stavba
Cihlová
Stav objektu
Velmi dobrý
Patro
3. z 7
Lokalita objektu
Sídliště
Vlastnictví
Osobní
Užitná plocha
51 m2
Podlahová plocha
57 m2
Třída energetické náročnosti
C - Úsporná
Elektřina
230V
Odpad
Veřejná kanalizace
Telekomunikace
Internet
Doprava
Silnice, MHD
Sklep
Terasa
Výtah
Bezbarierový přístup
Parkování

Kontaktovat makléře

Realitní kancelář

Logo Reality Ševčík s.r.o.

Reality Ševčík s.r.o.

Jírovcova 1790/4, České Budějovice

Chystáte se prodat nemovitost?
Pomůžeme Vám!

Máte zájem o tento byt?

Tímto, v souladu s nařízením Evropského parlamentu a Rady (EU) 2016/679, v platném znění, prohlašuji, že mi je alespoň 16 let a uděluji tak svůj souhlas se zpracováním zadaných údajů (jméno, telefon, e-mail, ip adresa) společnosti B3 Technology, s.r.o., IČ: 07330600, se sídlem Novostavby 126/23, 435 11 Lom (správce dat), za účelem předání dotazu z tohoto formuláře Vámi vybranému inzerentovi a zpětného kontaktování mé osoby. Osobní údaje bude správce zpracovávat manuálně i automaticky přímo prostřednictvím svých zaměstnanců. Informace předané tímto formulářem budou uloženy v databázi správce maximálně po dobu 10 let. Odvolání souhlasu s uložením a zpracováním poskytnutých dat lze e-mailem na info@bydlisnami.cz. V případě podezření na neoprávněné použití Vámi poskytnutých údajů máte právo předat podnět k šetření Úřadu pro ochranu osobních údajů. Více informací
Chystáte se prodat nemovitost?
Pomůžeme Vám!

Inzerát si prohlédlo 0 lidí

Prodejce

Martin Ševčík

Martin Ševčík

Hlídací pes

Chcete dostávat emailem podobné nabídky pronájmu bytů 2+kk v Českých Budějovicích?

Podobné nemovitosti