Prodej rodinného domu, Teplice - Trnovany, Máchova, 180 m2

Máchova, Teplice, Trnovany

6 900 000 Kč /za nemovitost HYPOTÉKA od 30 839 Kč /za měsíc
Doporučené firmy v Teplicích

Okna a dveře

Rekonstrukce

Informace k domu

Nabízíme Vám zprostředkování prodeje třípodlažního řadového rodinného domu v obci Teplice, část obce Trnovany. Zkolaudovaný dům z roku 1978 byl průběžně rekonstruován a je postaven na pozemku o celkové výměře 266 m2, zastavěná plocha domu činí 84 m2. Nemovitost se nachází v atraktivní, klidné a současně nezátopové části obce Trnovany, ul. Máchova.
Parkování je možné ve vlastní garáži pod domem nebo na vlastním pozemku přímo před domem, kde se vejdou dvě auta. Zahrada byla dosud využívána pro pěstování zeleniny. Na přilehlou zeď domu lze vybudovat soukromou pergolu nebo venkovní posezení s markýzou. Na zahradě je k dispozici prostorný sklep vhodný pro uskladnění ovoce nebo jako vinný sklípek. Na zahradu je možné jeřábem z ulice instalovat bazén.
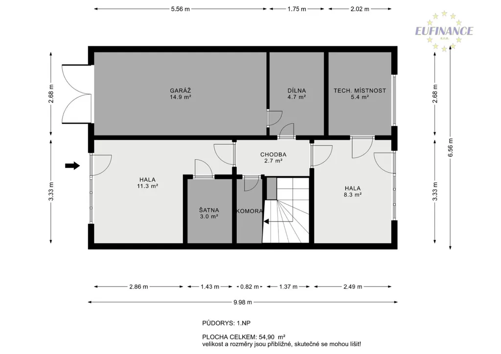
Dle přiložených půdorysů si můžete prohlédnout dispozice všech tří podlaží a současně si v klidu díky virtuální prohlídce projděte celý dům. Vlevo dole je rovněž ikona metru, díky kterému uvidíte přesné výměry jednotlivých místností a také si můžete poměřit různé vzdálenosti kvůli nábytku.
V domě v roce 2000 proběhla větší rekonstrukce: rekonstrukce střechy vč. izolačního nátěru, která je pravidelně servisována a udržována. Dále v tom samém roce byla na podlahy položena nová plovoucí podlaha, plastová okna (dvojskla), nové přední i zadní bezpečnostní dveře. V roce 2007 bylo obvodové zdivo s tloušťkou 30 cm navíc zatepleno 10 cm polystyrenovou izolací. V roce 2017 zde byl instalován nový úsporný plynový kondenzační kotel zn. Junkers vč. nového bojleru a současně do celého domu osazeny nové radiátory vč. termo hlavic, nová revize komína, nové rozvody vody v plastu a elektřiny v mědi.
Do domu jsou napojené veškeré inženýrské sítě: plyn, obecní kanalizace i vodovod, elektřina 230 a 400 V, telefonní linka, internet vzduchem, nicméně v ulici se bude budovat optický kabel.
V okolí domu v docházkové vzdálenosti je k dispozici veškerá občanská vybavenost, supermarket COOP, restaurace, lékaři, lesopark, dětská hřiště, autobusová zastávka za rohem, Aquapark 600m, vlakové nádraží 1,5km.
Dům je kompletně vyklizen a připraven k nastěhování. Právní servis vč. vyřízení hypotéky ZDARMA.

Parametry domu

Cena
6 900 000 Kč /za nemovitost Spočítat hypotéku
Náklady na bydlení
Měsíční poplatky: 4 500,-
Aktualizováno
20. 1. 2026
Adresa
Máchova, Teplice, Trnovany
ID
151
Stavba
Cihlová
Stav objektu
Velmi dobrý
Typ objektu
Patrový
Druh objektu
Řadový
Lokalita objektu
Klidná část obce
Užitná plocha
180 m2
Zastavěná plocha
84 m2
Podlahová plocha
180 m2
Plocha pozemku
266 m2
Plocha zahrady
182 m2
Třída energetické náročnosti
G - Mimořádně nehospodárná
Elektřina
230V, 400V
Plyn
Plynovod
Odpad
Veřejná kanalizace
Topení
Lokální plynové
Komunikace
Asfaltová
Telekomunikace
Telefon, Internet
Doprava
Vlak, Silnice, MHD, Autobus
Voda
Místní zdroj vody
Topné těleso
Radiátory
Zdroj topení
Plynový kondenzační kotel
Zdroj teplé vody
Plynový kondenzační kotel
Balkon
Garáž
Sklep
Výtah
Bezbarierový přístup
Parkování

Kontaktovat makléře

Realitní kancelář

Logo EUFINANCE, s.r.o.

EUFINANCE, s.r.o.

Tylova 735, Kralupy nad Vltavou

Chystáte se prodat nemovitost?
Pomůžeme Vám!

Máte zájem o tento dům?

Tímto, v souladu s nařízením Evropského parlamentu a Rady (EU) 2016/679, v platném znění, prohlašuji, že mi je alespoň 16 let a uděluji tak svůj souhlas se zpracováním zadaných údajů (jméno, telefon, e-mail, ip adresa) společnosti B3 Technology, s.r.o., IČ: 07330600, se sídlem Novostavby 126/23, 435 11 Lom (správce dat), za účelem předání dotazu z tohoto formuláře Vámi vybranému inzerentovi a zpětného kontaktování mé osoby. Osobní údaje bude správce zpracovávat manuálně i automaticky přímo prostřednictvím svých zaměstnanců. Informace předané tímto formulářem budou uloženy v databázi správce maximálně po dobu 10 let. Odvolání souhlasu s uložením a zpracováním poskytnutých dat lze e-mailem na info@bydlisnami.cz. V případě podezření na neoprávněné použití Vámi poskytnutých údajů máte právo předat podnět k šetření Úřadu pro ochranu osobních údajů. Více informací
Chystáte se prodat nemovitost?
Pomůžeme Vám!

Inzerát si prohlédlo 0 lidí

Prodejce

Ivo Loskot

Ivo Loskot

Hlídací pes

Chcete dostávat emailem podobné nabídky prodeje rodinných domů v Teplicích?

Podobné nemovitosti