Pronájem bytu 2+kk, Jindřichův Hradec, nám. Míru, 39 m2

nám. Míru, Jindřichův Hradec I

12 500 Kč /za měsíc Získejte výhodnou HYPOTÉKU

(Záloha na dodávku energií a služeb pro 1 osobu +2.500,– Kč/měsíc, každá další osoba +150,– Kč/měsíc. Vratná kauce 25.000,- Kč. Provize pro RK 10.000,-)

Doporučené firmy v Jindřichově Hradci

Výkup a prodej starého nábytku

Informace k bytu

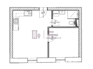
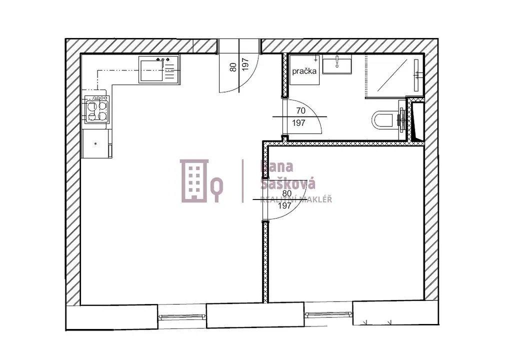
Pronájem bytu o dispozici 2+kk v prvním patře bytového domu s výhledem na rybník Vajgar na adrese náměstí Míru, Jindřichův Hradec.
Podlahová plocha 39 m2 nabízí pokoj s kuchyňským koutem a koupelnu s toaletou a sprchovým koutem.
Byt je vybavený kuchyňskou linkou, elektrickou troubou, varnou deskou a digestoří.
Dům splňuje standardy moderního bydlení, celá budova se vyznačuje nízkou energetickou náročností.
Možnost parkování přímo u domu za příplatek +500,- Kč/měsíc.
Záloha na dodávku energií a služeb pro 1 osobu +2.500,– Kč/měsíc, každá další osoba +150,– Kč/měsíc. Vratná kauce 25.000,- Kč. Provize pro RK 10.000,- Kč.
Pronajímatel si vyhrazuje výběr nájemce dle svých vlastních kritérií.
K nastěhování od 1. listopadu 2025.

Parametry bytu

Cena
12 500 Kč /za měsíc
Poznámka k ceně
Záloha na dodávku energií a služeb pro 1 osobu +2.500,– Kč/měsíc, každá další osoba +150,– Kč/měsíc. Vratná kauce 25.000,- Kč. Provize pro RK 10.000,-
Aktualizováno
3. 2. 2026
Adresa
nám. Míru, Jindřichův Hradec I
ID
2026016
Stavba
Cihlová
Stav objektu
Velmi dobrý
Patro
2. z 3
Lokalita objektu
Centrum obce
Vlastnictví
Osobní
Užitná plocha
39 m2
Podlahová plocha
39 m2
Třída energetické náročnosti
B - Velmi úsporná
Elektřina
230V
Plyn
Plynovod
Odpad
Veřejná kanalizace
Topení
Ústřední plynové
Komunikace
Dlážděná
Doprava
Vlak, Silnice, MHD
Voda
Vodovod
Topné těleso
Podlahové vytápění
Zdroj topení
Plynový kotel
Terasa
Výtah
Bezbarierový přístup

Kontaktovat makléře

Máte zájem o tento byt?

Tímto, v souladu s nařízením Evropského parlamentu a Rady (EU) 2016/679, v platném znění, prohlašuji, že mi je alespoň 16 let a uděluji tak svůj souhlas se zpracováním zadaných údajů (jméno, telefon, e-mail, ip adresa) společnosti B3 Technology, s.r.o., IČ: 07330600, se sídlem Novostavby 126/23, 435 11 Lom (správce dat), za účelem předání dotazu z tohoto formuláře Vámi vybranému inzerentovi a zpětného kontaktování mé osoby. Osobní údaje bude správce zpracovávat manuálně i automaticky přímo prostřednictvím svých zaměstnanců. Informace předané tímto formulářem budou uloženy v databázi správce maximálně po dobu 10 let. Odvolání souhlasu s uložením a zpracováním poskytnutých dat lze e-mailem na info@bydlisnami.cz. V případě podezření na neoprávněné použití Vámi poskytnutých údajů máte právo předat podnět k šetření Úřadu pro ochranu osobních údajů. Více informací
Chystáte se prodat nemovitost?
Pomůžeme Vám!

Inzerát si prohlédlo 2 lidí

Prodejce

Filip Vereš

Filip Vereš

Hlídací pes

Chcete dostávat emailem podobné nabídky pronájmu bytů 2+kk v Jindřichově Hradci?

Podobné nemovitosti