Pronájem skladu, Plzeň, 301 m2

Plzeň

50 000 Kč /za měsíc Získejte výhodnou HYPOTÉKU

(elektřina na nájemce, + provize RK)

Doporučené firmy v Plzni

Stěhovací služby

Informace k nemovitosti

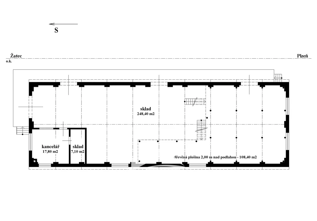
Nabízíme k pronájmu zděnou budovu blízko Jateční ulice v Plzni. Budova prošla částečnou rekonstrukcí, nová elektrika s velkým množstvím zásuvek, nové osvětlení, nová lepenka na střeše, vymalování, apod. Nabízí zděnou kancelář ( 17,8 m² ), sklad ( 7,1 m² ) a kromě skladové plochy na betonové podlaze ( 248,4 m² ) je zde možné jí navýšit v 1,5 m výšky o poschodí až 108,4 m² velké . Výška prostoru je 3,8 m. Vstupní vrata z rampy mají rozměry : výška 2,4 m a šířka 2,6 m . podél budovy s rampou je železniční vlečka. Kanalizace a voda v blízkosti objektu. Vhodné pro sklad nebo lehkou výrobu. Volné ihned, volejte makléři nebo napište na odpovědní formulář u inzerce.

Parametry nemovitosti

Cena
50 000 Kč /za měsíc
Poznámka k ceně
elektřina na nájemce, + provize RK
Aktualizováno
26. 2. 2026
Adresa
Plzeň
ID
00203
Stavba
Cihlová
Stav objektu
Dobrý
Patro
1.
Vybaveno
Ne
Typ objektu
Přízemní
Druh objektu
Samostatný
Lokalita objektu
Centrum obce
Užitná plocha
301 m2
Zastavěná plocha
301 m2
Podlahová plocha
381 m2
Plocha pozemku
301 m2
Třída energetické náročnosti
G - Mimořádně nehospodárná
Elektřina
230V
Odpad
Veřejná kanalizace
Komunikace
Betonová
Doprava
Silnice

Kontaktovat makléře

Máte zájem o tuto nemovistost?

Tímto, v souladu s nařízením Evropského parlamentu a Rady (EU) 2016/679, v platném znění, prohlašuji, že mi je alespoň 16 let a uděluji tak svůj souhlas se zpracováním zadaných údajů (jméno, telefon, e-mail, ip adresa) společnosti B3 Technology, s.r.o., IČ: 07330600, se sídlem Novostavby 126/23, 435 11 Lom (správce dat), za účelem předání dotazu z tohoto formuláře Vámi vybranému inzerentovi a zpětného kontaktování mé osoby. Osobní údaje bude správce zpracovávat manuálně i automaticky přímo prostřednictvím svých zaměstnanců. Informace předané tímto formulářem budou uloženy v databázi správce maximálně po dobu 10 let. Odvolání souhlasu s uložením a zpracováním poskytnutých dat lze e-mailem na info@bydlisnami.cz. V případě podezření na neoprávněné použití Vámi poskytnutých údajů máte právo předat podnět k šetření Úřadu pro ochranu osobních údajů. Více informací
Chystáte se prodat nemovitost?
Pomůžeme Vám!

Inzerát si prohlédlo 2 lidí

Prodejce

Miroslav Kovářík

Miroslav Kovářík

Hlídací pes

Chcete dostávat emailem podobné nabídky pronájmu skladů v Plzni?

Top nabídky

Podobné nemovitosti